image 96437 25 v1
Galéria(10)

Aktívny dom v Dánsku

V mestečku Solbjerg na predmestí druhého najväčšieho dánskeho mesta Aarhus sa na jar tohto roku konala výstava domov budúcnosti, v rámci ktorej bol predstavený aj reálny aktívny dom s energetickými parametrami budúcnosti A2020. Pochádza od spoločnosti KFS Boligbyg, ktorá systematicky pripravuje pre svojich užívateľov aktívne domy. Dispozícia bungalova s prehľadným pôdorysom priniesla mnoho svetla a priestoru.

132627 01 L
132629 01 XXL KFS I8A5128
132642 01 XXL KFS I8A5238
132644 01 XXL KFS I8A5264
132645 01 XXL KFS I8A5276
132651 01 XXL KFS I8A5470
132660 01 XXL KFS I8A5527
132661 01 XXL KFS I8A5536

Aktívne domy znamenajú aktivitu v spotrebe energie, čo znamená, že v priebehu kalendárneho roka viac energie vyrobia, ako spotrebujú. Vytvárajú zdravšie a pohodlnejšie vnútorné podmienky a vďaka optimalizovaným vzťahom k svojmu okoliu a využívaniu prírodných zdrojov kladne vplývajú na životné prostredie. Sú to rodinné domy tretieho tisícročia, ktoré ľudstvo posúvajú o krok bližšie k čistejšiemu a zdravšiemu životnému prostrediu.

Vo svojej koncepcii sledujú Smernicu Európskeho parlamentu a rady 2010/31/EU z roku 2010 o energetickej náročnosti budov, ktorá hovorí aj o tom, že je potrebné prijímať opatrenia na zníženie energetickej náročnosti a emisií oxidu uhličitého. Na tento účel by členské štáty mali vypracovať vnútorné plány na zvýšenie počtu budov s takmer „nulovou spotrebou energie“ do roku 2020. Dáni sú teda na vlne európskeho trendu. 

Príroda to urobí za nás

Pri realizácii aktívnych rodinných domov treba využiť súhru architektonického návrhu, ktorý optimálne využíva podmienky daného prostredia, a moderných technológií prenesených do kvalitných výrobkov. Práve tie svojim zákazníkom ponúka spoločnosť VELUX, ktorej produkty sa uplatnili aj pri rodinnom dome v dánskom Solbjergu.

Akntívny dom v dánskom Solbjergu ponúka vskutku bývanie budúcnosti, a to veľmi príjemnej budúcnosti.

Akntívny dom v dánskom Solbjergu ponúka vskutku bývanie budúcnosti, a to veľmi príjemnej budúcnosti.

Ako teda docieliť, aby sa človek v dome cítil dobre, mohol si dopriať krásny výhľad, a pritom spotreboval na vykurovanie len minimum energie? Odpoveď je jednoduchá – nechať prírodu, aby to urobila zaňho. Stačí pustiť slnko do aktívnych rodinných domov a využiť teplo i svetlo slnečných lúčov.

Práve toto dokážu budovy novej generácie, ktoré šetria energiou, chránia životné prostredie a zároveň poskytujú príjemnú a zdravú vnútornú klímu. S týmito vlastnosťami aktívneho domu počítali aj tvorcovia typového domu Futura od spoločnosti KFS Boligbyg.

Textúra tehlovej fasády je v kontraste s drevenými profilmi a čiernymi rámami okien a dverí.

Textúra tehlovej fasády je v kontraste s drevenými profilmi a čiernymi rámami okien a dverí.

Pri slove typový možno niekto zdvihne obočie, ale architektúra budúcnosti je už ďalej a má všetko premyslené, navyše je v nej príchuť originality. Obsahuje to, o čom sníva väčšina rodín: dômyselnú architektúru s modernou plochou strechou, funkčný dekor, výhodnú polohu v strede prírody, minimálnu údržbu a vďaka vysokým stropom so svetlíkmi a veľkorozmerným oknám aj intenzívne presvetlený interiér.

Svetlo je až na prvom mieste

Už prvý pohľad do interiéru domu napovedá, že osvetlenie je prioritou. Svetelný komfort vytvárajú aj štyri veľké okná VELUX, z toho dve s diaľkovým ovládaním. Svetlíky na strope zase pôsobia na čarovnú atmosféru, ktorú v iných typových domoch nenájdete. Ich svetlo je rozptýlené, s pozitívnym vplyvom na každodenný život.

Obývacia izba, v ktorej sa nachádza knižnica použiteľná aj ako odkladací priestor.

Obývacia izba, v ktorej sa nachádza knižnica použiteľná aj ako odkladací priestor.

Zvonka vyzerá dom nenápadne, akoby bol trochu ponorený do terénu, pričom zdôrazňuje textúru tehlovej fasády v kontraste s drevenými profilmi a čiernymi rámami okien i dverí vedúcich na terasu. Je však dostatočne nad úrovňou terénu preto, aby boli z neho pôsobivé výhľady na okolitú prírodu s veľkým jazerom.

Zvonka vyzerá dom nenápadne, akoby bol ponorený do terénu. Je však dostatočne nad úrovňou terénu, aby boli z neho pôsobivé výhľady na okolitú prírodu.

Zvonka vyzerá dom nenápadne, akoby bol ponorený do terénu. Je však dostatočne nad úrovňou terénu, aby boli z neho pôsobivé výhľady na okolitú prírodu.

Biele steny a akustické stropy v interiéri zase harmonizujú s teplými tónmi drevených podláh a dlažieb. V dome sa nachádza aj motív surových tehál, ktoré v kombinácii s pastelovou farebnosťou stien evokujú domáce, až rustikálne prostredie.

Svetlo zo strešných svetlíkov je rozptýlené, čo pozitívne vplýva na každodenný život.

Svetlo zo strešných svetlíkov je rozptýlené, čo pozitívne vplýva na každodenný život.

Na streche sú nainštalované solárne panely, ktoré pomáhajú zaradeniu do energetickej triedy budúcnosti v roku 2020. Dom je certifikovaný spoločnosťou Active House, čiže výrobky na báze dreva sa používajú s pečaťou FSC – Forest Stewardship Council.

Ide o medzinárodný neziskový certifikačný systém a vďaka jednoduchému značeniu ho zákazníci ľahko rozoznajú a môžu mu veriť. Označuje výrobky z lesov s udržateľným obhospodarovaním. 

Na streche sú nainštalované solárne panely, ktoré prispievajú k zaradeniu budovy do energetickej triedy budúcnosti v roku 2020.

Na streche sú nainštalované solárne panely, ktoré prispievajú k zaradeniu budovy do energetickej triedy budúcnosti v roku 2020.

Aktívny dom v dánskom Solbjergu ponúka naozaj bývanie budúcnosti, a to veľmi príjemnej budúcnosti. Jednoduchými, a pritom účinnými prostriedkami. Aktívne a zároveň nenásilne. S nízkonákladovým komfortom a s mohutným presvetlením interiéru. V dotyku s prírodou a súčasne neďaleko mesta. Čo viac si možno od rodinného domu priať?

AKTÍVNY DOM

Miesto: Solbjerg, Dánsko
Investor, projektant: KFS Boligbyg A/S 
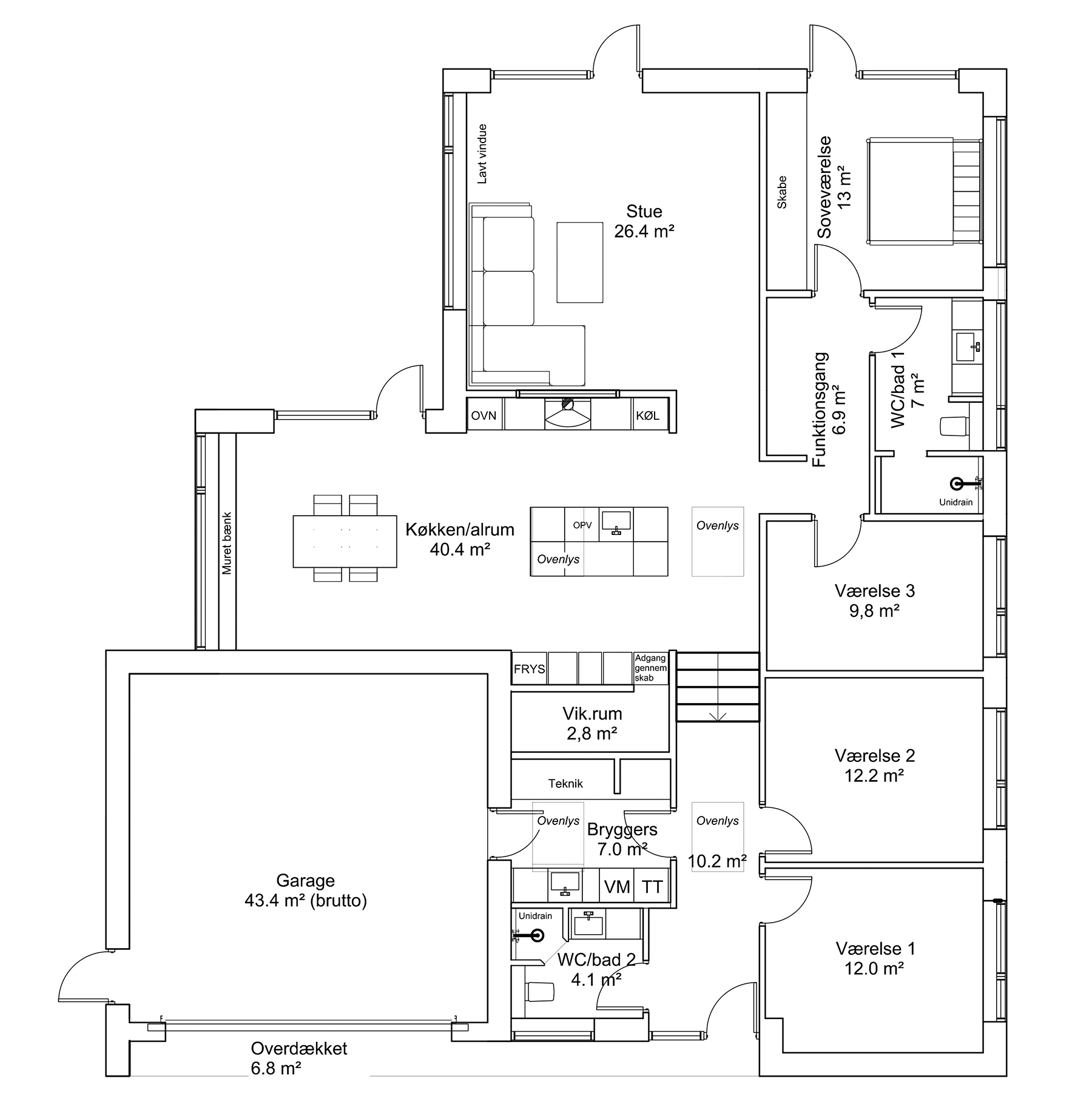
Úžitková plocha: 184,3 m2
Plocha garáže + krytý vchod: 43,4 m2 + 6,8 m2
Realizácia: 2016/marec 2017
Energetická trieda: A2020

Pôdorys

Pôdorys

TEXT: Ľudovít Petránsky
FOTO: Torben Eskerod Photography

Článok bol uverejnený v časopise ASB špeciál 2017