Nízkoenergetický bungalov – rekonštrukcia zo šesťdesiatych rokov
Bungalov zo šesťdesiatych rokov zvyčajne nepredstavuje príjemné bývanie vyhovujúce moderným kritériám. A práve to bol dôvod na rekonštrukciu takéhoto bungalova, ktorú riešilo belgické architektonické štúdio Urbain Architectencollectief.
Cieľom rekonštrukcie (projektu, ktorému architekti dali názov bungaLOW) bolo nielen rozšírenie domu, ale aj zabezpečenie jeho nízkoenergetického štandardu.
Presvetlenie a kontakt so záhradou
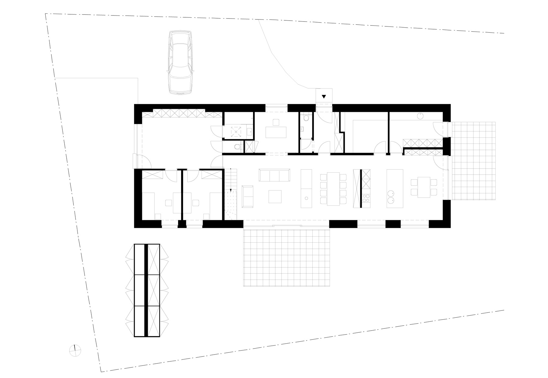
Nový triezvy plán rekonštrukcie domu vychádzal z maximálneho prepojenia bungalova so záhradou. Z existujúcich izieb pri severnej fasáde domu bol vytvorený funkčný pás, ktorý slúži ako vstupná hala, kúpeľňa a skladovací priestor. Miesto tu majú aj vlastné kancelárske priestory – pracovňa. Obytné priestory boli premiestnené k južnej fasáde, kde môžu ťažiť z výhod veľkých okien poskytujúcich dostatok svetla i upokojujúci výhľad. Zároveň vytvárajú predtým chýbajúce prepojenie medzi terasou a záhradou.
Otvorený priestor rozdeľuje nábytok
Otvorený priestor v interiéri delia dva nábytkové prvky, a to kozub a kuchynská linka. V mnohých moderných projektoch sú využité časti nábytku alebo moduly na predelenie priestoru a vyčlenenie jednotlivých častí podľa ich funkcie. Je to nielen moderné, ale aj veľmi praktické riešenie. V tomto prípade je najvýraznejším deliacim prvkom kuchynská linka, resp. skriňa na ukladanie kuchynských potrieb, oproti ktorej stojí samostatný pracovný pult s drezom.
Jedáleň od obývacej miestnosti opticky oddeľuje nižšia drevená stena s televízorom. Podobných prvkov je v dome použitých viac.
Z garáže sa stali detské izby, ktorým nechýba herňa
Nemenej dôležitou premenou z hľadiska obytného priestoru prešla bývalá garáž. Architekti v nej vybudovali dve detské izby, ktoré sa otvárajú do herne. Spálne na poschodí prakticky doplnili o kúpeľňu a šatňu. Novovybudovaný priestor pod plochou strechou s viditeľnými trámami dáva interiéru charakter a rytmus.
Fasáda starne s domom
Zvonku je bungalov opatrený izolačným plášťom a pokrytý obkladom z tepelne upraveného dreva. Hlboké okenné šachty s oknami siahajúcimi až po úroveň podlahy sú oproti pôvodnému stavu taktiež prospešnou a estetickou inováciou. Fasáda z termodreva dodáva prerobenému starému bungalovu moderný vzhľad a vekom pracuje – stáva sa jednoduchou sivou. To dodá domu zaujímavý vzhľad i v budúcnosti (rovnako aj v súvislosti s použitými hliníkovými profilmi).
Rekonštrukcia bungalovu v kocke
Architekti: Urbain Architectencollectief
Hlavní architekti: David Niville, David Claus, Dieter Delbaere
Lokalita: Sint-Denijs-Westrem, Belgicko
Rok dokončenia: 2016
Hrubá zastavaná plocha: 240 m2
Text: Sabína Zavarská
Foto: Filip Dujardin, Ghent, Belgicko



















