V duchu európskej drevostavby
Nový dom pre mladú rodinu zo severnej Moravy mal spĺňať dve základné požiadavky – pohodlie a minimálnu spotreba energie. Pri výbere vhodného projektu kládli dôraz na modernú architektúru a skúsenosti projektanta s navrhovaním a výstavbou energeticky úsporných drevených domov. Nakoniec sa rozhodli pre návrh Ing. arch. Michaela Kocycha.
Drevený dom má tvar základného geometrického telesa – kvádra. Jednoduchý tvar totiž prispieva k jeho energetickej úspornosti (minimalizoval sa tým ochladzovaný povrch v pomere k vyhrievanému objemu) a účelnosti.Vďaka jednoduchej forme zároveň dom zapadol do bezprostredného okolia a priveľmi sa nelíši od okolitej zástavby. V základnom telese domu sa nachádzajú obytné miestnosti, ktoré sú náročnejšie na vykurovanie, ku kvádru potom prilieha jednopodlažná časť rozširujúca dispozíciu prízemia o hospodárske zázemie. Dom na rovinatom pozemku je situovaný tak, aby bola väčšina zasklených plôch obytných miestností obrátená na juh. Solárne zisky južných okien majú totiž v zimných mesiacoch veľký vplyv na úsporu energie.

Kombinácia drevostavby (trojradový systém two by four, teda 2 × 4) s masívnymi akumulačnými múrmi v interiéri zaručuje minimalizáciu tepelných mostov a zároveň zabezpečuje aj tepelnú stabilitu domu. V centre stavby s ľahkou drevenou konštrukciou je murované jadro (murované konštrukcie vymedzujú priestor technickej miestnosti) situované tak, aby sa zabezpečila maximálna akumulácia tepla pri preslnení a minimálne tepelné straty.

Vnútorný obklad tvoria sadrokartónové dosky, kým zvonka je dom obložený zaveseným fasádnym obkladom Cetris v kombinácii so smrekovcovým drevom a titanzinkom. Medzi nosnou konštrukciou steny a vonkajším obkladom je ponechaná vzduchová odvetrávacia medzera. Obvodové konštrukcie domu sa zrealizovali ako difúzne otvorené, čím sa zabezpečila dlhšia životnosť stavby.
Dom nemá klasické vykurovanie. Vybavili ho riadeným vetraním s rekuperáciou od firmy Atrea, pričom sa vzduch do interiéru privádza cez zemný kolektor, v ktorom sa v zime predhreje a v lete ochladí. V systéme je integrovaný aj zásobník tepla – energiu doň dodávajú solárne panely, teplovodný kozub alebo elektrické vykurovacie vložky.
Päť kolektorov plne postačí na ohrev vody v lete, v zime ju domáci dohrievajú kozubom alebo elektricky. Sami užívatelia domu dnes hodnotia svoje bývanie ako pohodlné, zdravé a energeticky nenáročné, uvažujú však ešte o doplnení technického zariadenia o fotovoltické články tak, aby si mohli sami vyrábať aj elektrinu.
![]() |
![]() |
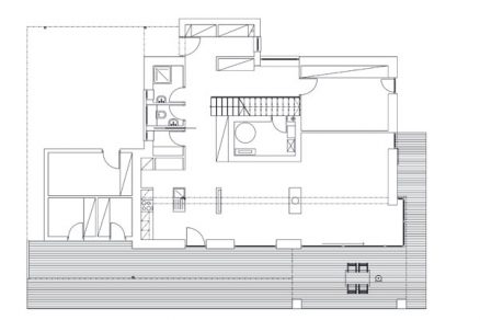
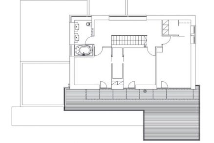
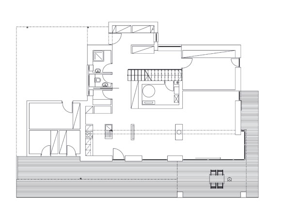
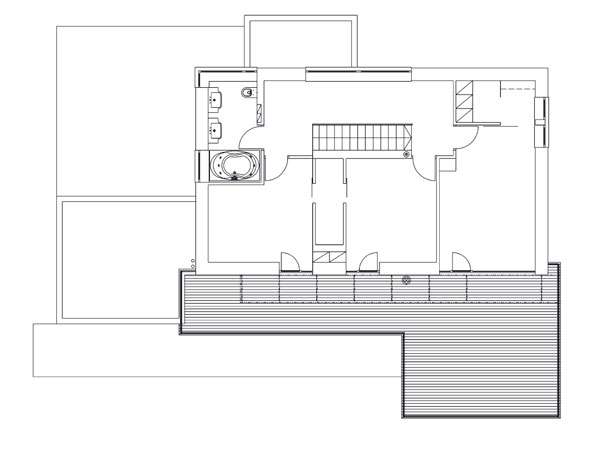
| Pôdorys 1.NP | Pôdorys 2.NP |
Technické údaje:
|
Andrea Mičková
Foto: Robert Žákovič











