Drevený minisvet
„Koncepcia a architektonická forma je odpoveďou na požiadavky energetickej úspornosti, nie však na úkor optimálneho prevádzkového riešenia. Škôlka musí vyhovovať ekologickým princípom, mnohým predpisom, ale predovšetkým deťom,“ hovorí architekt Pavel Šmelhaus, jeden z autorov materskej školy v Mrači, ktorá nedávno získala titul Nízkoenergetická a pasívna stavba roka. Ekologická drevostavba voniaca lesom je s jej veselými farebnými interiérmi minisvetom, do ktorého sa deti aj ich rodičia radi vracajú.
Nájsť dobrú materskú školu, z ktorej sa tešia deti aj rodičia, nebýva ľahké. Dvojica mladých rodičov si preto povedala, že škôlku podľa svojich predstáv si postaví sama. Nápad sa počas minulého roka postupne premenil na skutočnosť a v polovici novembra získal jednu z hlavných cien v súťaži Český energetický a ekologický projekt. Voľba drevostavby bola jasná – chceli mať stavbu dokončenú čo najskôr, aby mohla prevádzka začať od 1. septembra 2009. Zároveň ju však chceli mať ekologicky šetrnú so zdravým vnútorným prostredím. Rozpletanie siete vyhlášok
Keď sa manželia Kuckovci rozhodli postaviť vlastnú materskú školu, so svojimi požiadavkami sa prostredníctvom dodávateľa stavby – spoločnosti AWIK House Production – obrátili na skúseného architekta v oblasti nízkoenergetickej a drevenej výstavby Pavla Šmelhausa z pražského ateliéru ARS a architektku Kateřinu Rottovú. „Predstavovali sme si drevostavbu v nízkoenergetickom štandarde, ktorú by bolo možné postaviť v čo najkratšom čase,“ hovorí Petr Kucek. S pomocou architektov získala ich predstava konkrétne obrysy a po vyhotovení projektu sa v priebehu šiestich mesiacov dokončila.


„Predvlani nadobudla platnosť vyhláška o technických podmienkach požiarnej ochrany stavieb, ktorá prípravu stavieb s konštrukciou na báze dreva komplikuje,“ hovorí Pavel Šmelhaus, ale vzápätí optimisticky dodáva: „Ak sa však urobí maximum pre to, aby sa požadovaný bezpečnostný štandard dodržal, šanca pre drevostavby tu je.“
Montovaná drevostavba
Aby sa naplnila požiadavka investorov, teda rýchle vyhotovenie a nie príliš nákladná nízkoenergetická stavba, architekti navrhli mračskú škôlku ako montovanú drevostavbu z prefabrikovaných veľkoplošných dielcov na železobetónových základoch murovaného suterénu. Obvodový plášť tvorí panel s nosnou konštrukciou doplnenou vonkajším vystužením a vnútorným obkladom zo sadrovláknitých dosiek s parozábranou. Prevetrávaný fasádny zatepľovací plášť s minerálnou vlnou vkladanou do roštu sa zakryl protiveternou zábranou a dreveným palubovkovým obkladom.
Aj v interiéri sa použili čisto prírodné a na pohľad príjemné materiály, ako sú drevo, nefarebný kov či sklo. Určité ústupky však boli potrebné vzhľadom na zmenu vyhlášky o požiarnych predpisoch: „V interiéri sa preto objavuje menej dreva, ako sme si pôvodne predstavovali,“ podotýka architekt.
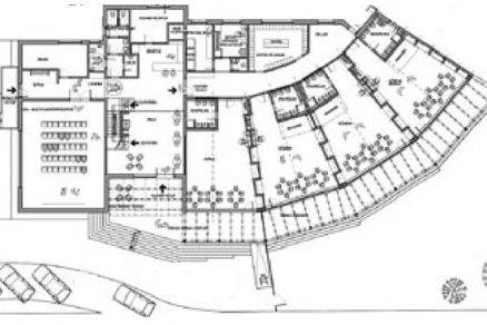
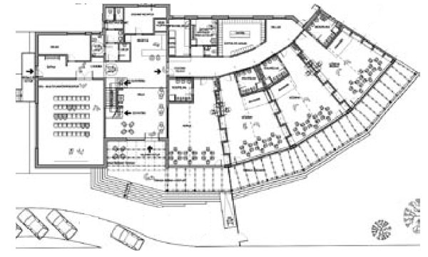
Aj keď architektom a investorom išlo predovšetkým o vhodné ekologické a ekonomické riešenie, nejde o stavbu esteticky nevýraznú a fádnu. „Škôlka má tvar, ktorý optimálne reaguje na miestne podmienky a nízkoenergetické požiadavky. Triedy sú otočené na juhovýchod a maximálne zasklené, s tienenými presahmi striech, žalúziami a zastrešením terás,“ hovorí autor projektu. Dominantou stavby je stredná prevýšená vstupná časť, ku ktorej prilieha blok s učebňami z východnej strany. Tá sa od zvyšku škôlky odlišuje segmentovou strechou s charakteristickým oblúkom viditeľným z ulice. „Objekt mal byť predovšetkým výnimočný, aby nezapadol do sivosti jednoduchých stavieb, mal mať charakteristickú architektonickú formu, aby sa s ním dokázali deti identifikovať,“ vysvetľuje architekt a výsledná stavba jeho slová potvrdzuje.

Materská škola v Mrači je originálna nielen vďaka svojej drevenej konštrukcii a ekologickému riešeniu; ponúka v Čechách ojedinelý koncept škôlky ako komunitného centra, s ktorým sa môžeme stretnúť napríklad v Škandinávii či krajinách západne od našich hraníc. Ich dvere sa otvárajú aj rodičom, ktorí môžu navštevovať večerné cvičenie a strážiť svoje deti. Konajú sa tu rozličné kurzy pre verejnosť, napríklad výučba anglického jazyka pre školákov a predškolákov či hry na hudobné nástroje. Tento Minisvet, ako škôlku nazvali majitelia, sa stal univerzálnym miestom spoločenského života rodičov predškolákov a zároveň oživil dianie v malej obci.
Celý objekt sa člení na zónu tried materskej školy, verejnú zónu zahŕňajúcu detský klub a kaviareň vo vstupnej hale a zónu spoločenskú s viacúčelovou sálou na kultúrne a športové aktivity pre verejnosť. Do oboch zón sa vstupuje priestrannou halou, zasahujúcou až na úroveň druhého podlažia, kde sa nachádza kancelária riaditeľky školy, izba na lekárske prehliadky a jedna malá izbička pre prípad, keby niektoré z detí ochorelo. Po schodisku vo vstupnej hale sa dá zísť do suterénu, v ktorom je sauna, výtvarná dielňa s vlastnou pecou na vypaľovanie keramiky (z dôvodu bezpečnosti v samostatnej miestnosti), kuchyňa a prevádzkové a technologické zázemie. To zabezpečuje vykurovanie, ohrev pitnej vody a vetranie. Hlavným zdrojom tepla je tepelné čerpadlo zem – voda so siedmimi hĺbkovými vrtmi na pozemku. Nútené vetranie všetkých tried, herne a sály zabezpečujú vzduchotechnické jednotky s rekuperáciou tepla.


Architekti na základe vlastných skúseností, ktoré získali ako rodičia malých detí, dobre premysleli každý detail. Pavel Šmelhaus sumarizuje hlavnú myšlienku, ktorá autorov pri projektovaní viedla: „Cieľom nebolo navrhnúť superškôlku, ale čo najkvalitnejšie prostredie – aby škôlka fungovala a vykazovala priaznivé ekonomické parametre.“
![]() |
![]() |
| Materská škola Minisvet Mrač Investor: Monika a Petr Kuckovci Architekti / Architects: Atelier ARS – Kateřina Rottová, Pavel Šmelhaus Energetický koncept / Energy concept: Atelier ARS, s. r. o. Dokumentácia / Documentation: SOF. Architekti – Jana Halenková, Martin Žižka Spolupráca / Cooperation: Tomáš Vinopal Zakladanie, statika / Building footings, statics: B2K Design, s. r. o., Ing. Martin Beneš Vodovod, kanalizácia / Water and sewage piping: Gaňo Stojanov Vzduchotechnika / Air conditioning: Martin Beneš Vykurovanie / Heating: Pavel Rous Elektro / Electric technologies: Petr Aschenbrenner Meranie a regulácia / Measuring and regulation: ESPLAN, Jiří Bláha Požiarnobezpečnostné riešenie / Fire safety system: Daniel Jech Projekt sadových úprav / Landscaping: Štěpánka Šmídová Generálny dodávateľ / General contractor: AWIK House Production, s. r. o. Projekt / Project: 07 – 11/2008 Realizácia / Execution: 12/2008 – 08/2009 |
Autor: Kateřina Kotalová
Foto: archív Atelieru ARS
Článok bol uverejnený v časopise ASB















