Dom, v ktorom sa pamätalo na budúcnosť
Keď plánovali svoj vysnívaný dom, boli Gablasovci nadšení ideami pasívnej výstavby. Oslovila ich najmä možnosť takého fungovania domu, ktoré nezanechá budúcim generáciám pamiatku v podobe skleníkového efektu a zničenej prírody. Navyše sľuboval prevádzku finančne nenáročnú, ktorá bude únosná, aj keď už nebudú ekonomicky aktívni. Postupne však prichádzali na detaily, ktoré im na pasívnom dome nevyhovovali, a tak sa rozhodli ísť vlastnou cestou. Chceli predsa dom na celý život. Taký, ktorý splní ich predstavy o rodinnom bývaní, a zároveň bude úsporný, pohodlný a praktický.
Do domu sa vchádza krátkou chodbičkou, v ktorej si môžete odložiť kabáty: „Vstupné dvere nie sú špeciálne, ale uzatvorená predsieň tvorí chladnú, prechodovú zónu,“ naznačuje hneď na začiatku domáci pán logiku tepelného zónovania domu. Až za druhými dverami sa teda pred návštevníkom otvorí obytný priestor – cez svetlom zaliatu halu s galériou a schodiskom možno vidieť do otvorenej kuchyne a obývačky.

Ktovie, ako sa budeme o pár rokov dívať na to, čo je teraz supermoderné,“ vysvetľuje pán Gablas. „Preto sme si za základ zvolili neutrálnu farebnosť – tieto farby sú praktické a človeka tak rýchlo neomrzia. Na farebnosť sme si nechali urobiť aj štúdiu feng-šuej. Podľa týchto odporúčaní sme vybrali napríklad odtieň podlahy či dominantnú farbu pre doplnky do jednotlivých miestností.“ Okrem hlavných denných priestorov sú na prízemí ešte hosťovská izba, momentálne využívaná ako pracovňa, a technologická miestnosť, akási strojovňa a serverovňa v jednom. V nej sa nachádza ovládanie inteligentnej elektroinštalácie, riadiaca jednotka pre vykurovací systém, tepelné čerpadlo aj akumulačná nádrž na teplú vodu a vykurovanie.

Poschodie je vyhradené pre pokojnú nočnú zónu, teda detským izbám a spálni, ktoré dopĺňajú šatníky a kúpeľne; na otvorenej galérii sa plánuje čitáreň s knižnicou. Na poschodí je, trochu netypicky, aj práčovňa alebo, lepšie povedané, miestnosť na domáce práce. „Hoci sa väčšinou robí práčovňa na prízemí alebo v pivnici, my sme si v tomto nechali poradiť od architektov,“ vysvetľuje pán Gablas.
„Bielizeň treba prať najbližšie k jej „zdroju“ – oblečenie si vyzliekame v spálňach, teda na poschodí, a tu sa aj ukladá čistá do skríň alebo šatníkov. Nie je teda dôvod nosiť ju hore-dolu na pranie.“ V tejto miestnosti sa počíta s práčkou, sušičkou a miestom na sušenie bielizne, domáca pani tu bude mať aj svoj stôl na šitie. „Toto je jedna z vecí, ktoré ešte nie sú celkom dokončené. Dom si pýta veľa času aj peňazí, takže niečo musí ešte chvíľu počkať,“ uzatvára domáci pán.
Dom spojený so záhradou

Pre pána Gablasa bol v tomto prípade prvoradý manželkin sen o príjemnom rodinnom bývaní, i keď bol len ťažko zlučiteľný s pasívnou výstavbou. „Posuvné a skladacie zasklené dvere sa reálne nedali zaizolovať a utesniť tak, aby spĺňali požiadavky pasívneho štandardu, takže som sa snažil nájsť nejaké prijateľné riešenie. Terasa, alebo skôr zimná záhrada, preto tvorí akýsi medzipriestor či prechodovú zónu, pokiaľ ide o vykurovanie. Tepelná izolácia sa teda zlepšila tým, že sme pridali ďalšiu bariéru. Predpokladám, že keď bude vonku –10, na terase bude asi +5 °C. Ešte presne neviem, ako sa dom bude správať. Na podobné otázky mi totiž u nás nikto nevedel jednoznačne odpovedať. Jediná možnosť bola vyskúšať to. Už po roku používania som prišiel na veľa vecí, niektoré sa ešte ukážu neskôr.“
Nielen o šetrení
V tomto dome si jeho majitelia mnoho vecí robili sami: „Iste, dá sa tak dosť ušetriť, ak je človek trochu zručný,“ uznáva domáci pán, „ale úspora peňazí nebola prvoradá. Veľmi dôležitý bol pre nás aj dobrý pocit a hrdosť na veci, ktoré sme dokázali urobiť – s manželkou sme tapetovali, sami sme si navrhli a zrealizovali celé vnútorné vybavenie šatníkov, spolu so svokrom sme urobili terasu… Občas sme sa aj pohádali, ale väčšinou na maličkostiach, ktorým sa teraz zasmejeme, i keď v tom okamihu vyzerali ako najdôležitejšie na svete. Človek to občas potrebuje, je to taká psychohygiena. Dôležitá pre nás bola aj rodinná spolupatričnosť. Myslím, že rodinu to zblíži, keď majú ľudia za sebou kus peknej roboty a spoločné chvíle, ktoré sú strávené naozaj intenzívne, nie len existovaním vedľa seba. Budeme mať na čo spomínať.“

Gablasovci plánujú vo svojom dome prežiť ešte mnoho rokov, a podľa toho si ho aj navrhli – okrem toho, že sa pokúsili zhmotniť si v ňom čo najviac zo svojich snov o príjemnom bývaní, mysleli aj na to, koľko ich bude stáť jeho prevádzka. Pamätali na pohodlie, aj na účty, ktoré budú platiť z dôchodku. „Snažili sme sa urobiť rôzne opatrenia, aby nás prevádzka domu stála čo najmenej,“ vysvetľuje domáci pán. „Okrem šetrenia energiami na vykurovanie a ohrev pitnej vody napríklad zvádzame dažďovú vodu do trativodnej šachty, vďaka čomu menej platíme vodárňam.“ Ďalším úsporným a zároveň ekologickým opatrením je triedenie odpadu: „Vzadu v záhrade je veľký kompostér. Má asi šesť kubíkov a predpokladám, že sa naplní za tri roky. Takýto dom vyprodukuje obrovské množstvo odpadu, napríklad už len pri kosení.“
Domáci pán však myslel na budúcnosť aj iným spôsobom – všade v dome sú pripravené rozvody tak, aby ho v budúcnosti neprekvapila žiadna nová požiadavka. Napríklad v detských izbách je niekoľko zásuvkových líšt s pripojením na televízor aj na počítač: „Sú všade, kde by potenciálne tieto zariadenia mohli byť, aby sa nemuseli ťahať káble cez miestnosť, pripravené sú aj káble na reproduktory – napríklad na hry. Káble ma vyšli rádovo na stovky korún, a do stien sa zabudovali v rámci ostatných stavebných prác. Takáto príprava teda stála len minimum oproti tomu, koľko problémov mi môže ušetriť v budúcnosti.“
Podobné myslenie o krok dopredu uplatnil pán Gablas aj v záhrade: „Pôvodná studňa je pripojená na vodovodnú šachtu, v ktorej sa zbiehajú všetky zdroje vody. Takže sa môžem rozhodnúť, či budem polievať vodou zo studne alebo mestskou vodou, či použijem „šedú vodu“ na splachovanie záchodov a podobne. Teplú vodu z kolektorov môžem v budúcnosti využiť v záhradnej sprche alebo v bazéne – keď bude čas a potreba, môžem ich jednoducho doplniť. Investícia do takejto prípravy je zanedbateľná v porovnaní s tým, čo by ma stálo robiť rozvody dodatočne. Keď už bol trávnik rozkopaný z dôvodu zavlažovania, pridal som len zopár izolovaných hadíc. Nech čakajú, kým príde ich čas.“
Inteligentné znamená pohodlné aj úsporné

V dnešných autách sa bežne využívajú inteligentné elektroinštalácie, tak prečo ich nemať aj v rodinnom dome? Vďaka nim sa dajú logicky previazať rôzne funkcie: napríklad, keď sa zotmie a v miestnosti rozsvietim, automaticky sa zatiahnu žalúzie; v spálni sa žalúzie automaticky vytiahnu cez týždeň o pol siedmej a cez víkend o pol ôsmej; jedným tlačidlom na poschodí pri spálni sa dajú zhasnúť všetky svetlá na prízemí, aby som pre zhasínanie nemusel večer behať po dome… Ide o pohodlie. Mnohé veci, čo si človek vymyslí, sa dajú naprogramovať.“

Je to pasívny dom?
Pôvodne ste chceli postaviť pasívny dom, ako to teda nakoniec dopadlo? Podarilo sa vám splniť všetky kritériá? Nedalo mi nespýtať sa. A odpoveď domáceho pána bola úprimná: „Nechceli sme ísť hlavou proti múru a postaviť pasívny dom za každú cenu. Dôležitejšie pre nás bolo, aby sa nám v dome príjemne žilo. Aj za cenu toho, že nesplníme striktne a do bodky všetky požiadavky na energeticky pasívny dom. Takže je to dom inšpirovaný pasívnou výstavbou – niektoré veci sa nám páčili na pasívnych domoch a tie sme použili, iné nám nevyhovovali. Hľadali sme strednú cestu, ktorou sme sa snažili priblížiť energetickej úspornosti pasívneho domu.
Je to teda nízkoenergetický dom veľmi vysokej kvality a hoci nespĺňa všetky kritériá na to, aby mohol byť označený ako energeticky pasívny, jeho spotreba energie je naozaj veľmi nízka. Ja osobne som presvedčený, že meranie skutočnej spotreby tepla na vykurovanie preukáže, že sme dosiahli 15 kWh/m2 a rok, čo je kritériom pre označenie domu za energeticky pasívny. Ale to sa uvidí až v marci, presne po roku meraní.“
![]() |
![]() |
| V technologickej miestnosti na prízemí je ovládanie inteligentnej elektroinštalácie aj riadiaca jednotka pre vykurovací systém. Zdrojom tepla sú jednak slnečné kolektory, jednak tepelné čerpadlo zem – voda. Čerpadlo odoberá teplo zo studne s celoročnou teplotou okolo 10 °C alebo zo zeme pod domom, ktorá zároveň slúži ako akumulačný zásobník prebytočného tepla zo solárneho zariadenia. Systém sa automaticky prepína podľa momentálnej potreby a situácie. Nielen na priamy odber, ale aj pre podlahové a stropné vykurovanie (stropné sa môže v lete využívať aj na chladenie) sa voda ohrieva v akumulačnej nádrži – kúrenie je tak plynulejšie. Inteligentné systémy v celom dome – od otvárania brány až po internet – možno ovládať pomocou dotykového displeja umiestneného v obývačke. |
|
Tri zo štyroch
Dom Gablasovcov spĺňa tri zo štyroch kritérií pre energeticky pasívne domy – má kvalitné okná (Ug = 0,7), mimoriadne dobre tepelne izolované obvodové konštrukcie (25 cm polystyrénu) s minimalizovaním tepelných mostov a využíva riadené vetranie s rekuperáciou tepla. „Jediná podmienka, ktorú sme nesplnili, je vzduchotesnosť,“ kompletizuje výpočet vlastností domu pán Gablas.

Jeho negatívny vplyv na vzduchotechniku sa prejaví len v najchladnejších obdobiach roka, keď sa v kozube bude kúriť, čím sa tepelné straty nahradia,“ zdôvodňuje svoje rozhodnutie domáci pán. Reálna potreba tepla v dome je teda možno vyššia než stanovuje požiadavka na energeticky pasívny štandard, ale spotreba energie bude určite mimoriadne nízka – a o to Gablasovcom išlo.
Na rozdiel od typických energeticky pasívnych domov tu kúrenie nenechali len na vzduchotechniku a ani na kozub, do ktorého sa môže, ale nemusí prikladať. Zdrojom tepla je aj stropné a podlahové vykurovanie (stropy sa v lete môžu použiť na chladenie), do ktorého sa voda ohrieva buď kolektormi, alebo tepelným čerpadlom – podľa momentálnej situácie všetko riadi počítač.
„Použili sme veľkoplošné vykurovacie systémy, aby mohla byť teplota vykurovacieho média čo najnižšia. Privádzaný čerstvý vzduch, predhriaty v zemnom výmenníku a dohriaty rekuperáciou, má asi 18 °C, vykurovacia voda má teplotu 28 °C, a bežná teplota v dome je okolo 23 °C. Nikdy tu teda nie je „trenírková teplota“. No pocit tepelnej pohody nezávisí len od teploty vzduchu. Keď steny nesálajú chlad, nemáte pocit chladu ani vtedy, ak priestor nie až taký vykúrený,“ delí sa o svoje skúsenosti domáci pán. Vďaka kombinácii vykurovania teplým vzduchom a sálavého vykurovania, a tiež vďaka inteligentným systémom, sa dá dosiahnuť v jednotlivých miestnostiach rôzna teplota, čo nie je pre pasívne domy bežné: „Ak chceme mať napríklad v spálni chladnejšie, vieme bez kúrenia udržať teplotu okolo 18 °C, a kde treba, dokúrime podlahovým vykurovaním asi na 23 °C.
Stavba ako dôkaz

„Samozrejme, výpočty sú výpočty, ale prax môže byť iná. Výpočty sú robené na ideálny stav a v skutočnosti je možné, že zateplenie nie je vyhotovené dostatočne kvalitne, že sú tu tepelné mosty, ktoré neboli identifikované… To všetko spolu s netesnosťami zvyšuje spotrebu. Okrem toho pomerne intenzívne využívame terasu, takže aj tepelné straty pri otváraní dverí sú dosť veľké. Kozub je však nielen náš prehrešok proti vzduchotesnosti, ale aj naša poistka – keď priložíme, za hodinu je dom vyhriaty, pretože vzduchotechnika roznesie teplo rovnomerne do všetkých izieb.“
Pán Gablas je však presvedčený, že sa mu aj napriek prehreškom proti teoretickým predpokladom podarí dokázať meraním skutočnej spotreby, že splnil najdôležitejšie kritériá pre energeticky pasívny dom, ktoré súvisia s mimoriadne nízkou spotrebu energie – do 15 kWh/m2 a rok na kúrenie, do 50 kWh/m2 a rok na kúrenie a teplú vodu.
„Objektívne merania podľa mňa hovoria za všetko,“ vraví. „Meriame presne energiu spotrebovanú v tepelnom cykle. I keď nedokážem presne oddeliť energiu na vykurovanie od energie na ohrev teplej vody, takže konečný ukazovateľ úspornosti 15 kWh/m2 a rok nebudem môcť aplikovať, ale podľa dnešných odhadov sa celková spotreba domu bude pohybovať v rozpätí od 30 do 40 kWh/m2 a rok, čo je veľmi dobré číslo. V tom je, samozrejme, zahrnutá aj príprava teplej vody. Spotrebu energie meriame špeciálnym elektromerom, ktorý som nainštaloval v marci 2008. V marci 2009, teda presne o rok, tak budem presne vedieť, aká je reálna ročná spotreba energie v dome. Cieľom je predsa dosiahnuť minimálnu spotrebu a všetky výpočty by mali byť len prostriedkom, ako sa k tomuto cieľu dostať,“ uzatvára nakoniec.
A na záver ešte skúsenosť príjemnej pani domácej zo šiestich mesiacov bývania vo vysnívanom dome: „V lete tu bolo veľmi príjemne. Dom sa neprehrieval a vďaka prívodu vzduchu cez zemný register tu aj v tých najväčších horúčavách bola príjemná teplota aj čerstvý vzduch. Keď sa na jeseň tak prudko ochladilo, bola tu na návšteve moja mama. Prišla z bytu, v ktorom sa nekúrilo a bola veľmi prekvapená, ako tu máme bez kúrenia príjemne. Je to iste vďaka tomu, že dom je dobre zaizolovaný a tiež vďaka riadenému vetraniu a ďalším opatreniam. Ale prvá ozajstná zima je ešte len pred nami, takže tá najdôležitejšia skúška na dom ešte len čaká.“
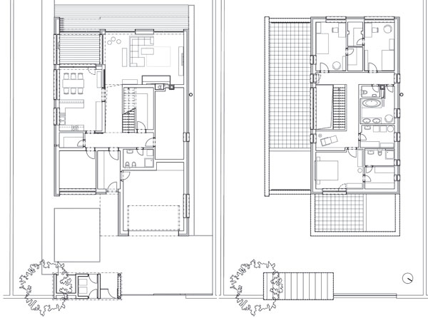
Pôdorys prízemia/poschodia
Autori projektu
Ing. arch. Vladimír Zigo
Narodený v roku 1953 vo Zvolene, ukončil Fakultu architektúry SVŠT Bratislava (1979).
Ing. arch. Marusia Zigová
Narodená v roku 1973 v Bardejove, ukončila Fakultu architektúry STU Bratislava (1997)
Kontakt: AZ ateliér, architekt.zigo@stonline.sk
Výber z realizácií:
- Bytový dom na Galvaniho ulici v Bratislave (realizácia 2007)
- Polyfunkčný dom na Poštovej ulici v Bratislave (realizácia 2006)
- Rodinný dom na Novosvetskej ulici v Bratislave (realizácia 2004)
- Mestská bytová vila na Malinovej ulici v Bratislave (realizácia 2003)
- Rodinný dom v Rusovciach (realizácia 2003)
- Bytový dom na Búdkovej ulici v Bratislave (realizácia 2000)
Erika Kuhnová
Foto: Soňa Sadloňová














