Červený a modrý
Na týchto dvoch rodinných domoch si chcel staviteľ overiť menej častý typ vnútorných izolácií, vetrania a vykurovania. „Vyskúšali sme tu niektoré veci, o ktorých väčšina investorov vôbec neuvažuje, napr. rekuperačnú jednotku so zemným registrom,“ hovorí. Stavbe sa venoval do všetkých detailov. Jeho zámerom bolo postaviť dva pomerne lacné domy, ktoré by sa svojimi parametrami priblížili stavbám s pasívnym spôsobom vykurovania, čiže s minimálnou spotrebou energie.

S týmto riešením staviteľ počítal už od začiatku a zdá sa, že jeho výpočty boli správne: „Dosiahli sme to, že tento dom má tepelné straty 2,5 kW, čo je celkom slušný výsledok,“ hovorí.
Šikovne a premyslene
Pôvodným zámerom investora a zároveň i dodávateľa stavby bolo teda postaviť domy, ktoré by sa priblížili ku kategórii tzv. pasívnych stavieb. „Energiu zo slnka prijímame naozaj len pasívne – veľkými oknami. Slnečné kolektory sme nakoniec neinštalovali.
Je to však azda jediný moment, ktorý nás od tejto kategórie domov delí,“ hovorí Miroslav Šuman. So svojím kolegom Patrikom Tichavom premysleli hádam naozaj všetko, od izolácií až po zelenú strechu, ktorá sa v lete nikdy nerozpáli ako bežná strešná krytina a v zime, naopak, dom izoluje.
„Pri pasívnych domoch sa predpokladá, že budú mať tepelné izolácie 30 až 50 cm. My máme 30 cm izolácie v stenách, izolované sú však aj podlahy a stropy – samozrejme, bez tepelných mostov. Do okien sme dali podľa mňa tie najlepšie sklá Heat Mirror. Konštrukčne ide o trojsklo, ale namiesto stredného skla je použitá fólia, ktorá má vynikajúce vlastnosti v tepelnoizolačnom priestupe. Odráža teplo z oboch smerov, z ktorých prichádza. V zime ho teda udržiava v interiéri, v lete ho zase neprepustí z exteriéru dovnútra. Okrem toho tento typ okien oba domy účinne izoluje pred hlukom z ulice.“

|
Obvodové nosné murivo z betónových škrupinových tvárnic hrubých 200 mm je z vnútornej strany doplnené tepelnou izoláciou PPS hrubou 300 mm a SDK.
Fasády sú z dreveného obkladu s náterom. Priečky sú z presných sadrových blokov hrubých 80 mm. Strop monolitický, rebrový, stratené debnenie je zo skladaných polystyrénových debniacich stropných dosiek – typ JS. Strecha je sedlová so sklonom 35°. Namiesto krytiny je použité extenzívne zazelenanie rozchodníkmi. Krov tvoria drevené krokvy v kombinácii s oceľovou konštrukciou. V podlahách prízemia je tepelná izolácia PPS hrubá 200 mm. Odvodnenie strechy sa rieši systémom drenáží pod porastom rozchodníkov. Dažďové zvody sú zasadené do tvárnic a prekryté dreveným obkladom. Okná a vstupné dvere sú plastové, zasklenie systémom Heat Mirror. Všetky obytné miestnosti sú kontinuálne vetrané a vykurované vzduchotechnikou. Predohrev a v lete predchladenie vzduchu sa uskutočňuje v zemnom kanáli dlhom 35 m. Kozubové kachle v obývacej izbe slúžia v prechodnom období na vykurovanie. Vypočítaná tepelná strata domu je 2,5 kW. |
Izolácia
Použila sa technológia obrátených tepelných izolácií. Obvodové murivo je nosné, z dutinových tvárnic, tepelná izolácia sa vkladala zvnútra. Podobný princíp sa používa napr. vo Francúzsku, Španielsku a na juhu Nemecka. „Vo chvíli, keď vyriešite problém tepelných mostov, stáva sa tento spôsob izolácie zaujímavým,“ vysvetľuje staviteľ. „Použili sme penový polystyrén a napr. stropy nás vyšli mierne drahšie, ako keby sme ich zhotovili z porothermu, ale zateplenie sa neskôr oplatí. Tvárnice majú vzduchové medzery, ďalšia vzduchová medzera je medzi nimi a dreveným obkladom. Tento prvok je účinný najmä v lete, prúdiaci vzduch dom ochladzuje.“
Tepelná izolácia na stropoch zároveň zaručuje dobrú zvukovú izoláciu – nepočuť kroky ani iný hluk z poschodia. Krátko k skladbe stropov a podláh: nosná konštrukcia je z betónu, na nej je polystyrén, OSB doska a nakoniec parkety.
Dom už má za sebou dve zimy, aj tú nezabudnuteľnú ľadovú na prelome rokov 2005 a 2006. „Skoro celú zimu sme kúrili na dva kilowatty a stálo nás to zhruba 4 000 Kč,“ uzatvára stavebník, staviteľ a zároveň aj obyvateľ jedného z domov.
„Naša pôvodná predstava o výške investície bola dva milióny korún, ale už počas prípravy stavby bolo jasné, že túto sumu prekročíme. Nakoniec sme vynaložili okolo 2,7 milióna Kč na jeden dom bez oplotenia a záhrady.“
|
|
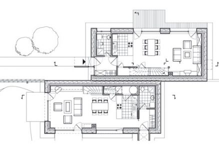
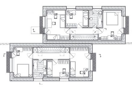
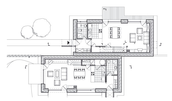
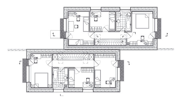
| Pôdorys 1. NP | Pôdorys 2. NP |
|
| Rezy |
Novostavba nízkoenergetických rodinných domov Stehelčeves, Praha-západ
Autorský návrh: Ing. arch. Dagmar Koišová
Zodpovedný projektant: Ing. arch. Luboš Sejkora
Dodávateľ stavby: Šuman a Tichava (združenie fyzických osôb)
Rozmery každého domu: 12,7 × 5,8 m
Zastavaná plocha: asi 74 m2
Úžitková plocha bytu: asi 100 m2
Hana Vinšová
Foto: Dagmar Koišová











