Nízkoenergetická drevostavba od ateliéru Sporadical
Na zvažujúcom sa pozemku neďaleko Plzne vyrástol ďalší prírastok do rodiny „kockatých“. Ide o dôstojného reprezentanta, charakterizovaného nenútenou eleganciou a serióznym výrazom, ktorý pod nanajvýš modernou drevenou šupkou skrýva prekvapivé artefakty z nábytkárskej belle époque.
„Ako mnoho mladých rodín, aj my sme pôvodne iba hľadali väčší byt pre rozrastajúcu sa rodinu,“ začína príbeh kocky majiteľka. „Lenže potom sme zistili, že za rovnaké alebo len o málo väčšie peniaze kúpime aj rodinný dom.“ Rozhodnutie musíme pochváliť. Navyše si vybrali miesto s dobrou dostupnosťou do centra a dostatočne veľký pozemok, ktorý je zárukou, že si so susedmi nebudú „nazerať do hrncov“.Pre svoj zámer našli parcelu na okraji obce, na miernom svahu, sčasti porastenú vysokými stromami – náletmi, ktoré tu ostali ako pripomienka predošlých „hospodárov“ z neudržiavanej záhrady. Spomínaný odstup od susedov pomáha zachovať aj pôvodná stavba – zanedbaná murovaná hospodárska budova na hranici parcely, ktorú majitelia získali spolu s pozemkom ako ďalšie dedičstvo po svojich predchodcoch. Po zrelej úvahe sa rozhodli stavbu ponechať a opraviť. Bude slúžiť ako sklad záhradného náradia a zároveň vytvorí prirodzenú optickú aj zvukovú bariéru zo strany najbližších susedov.

Stavba upúta hneď na prvý pohľad výraznou tmavou farbou drevenej fasády. „Predstava investora o vzhľade domu bola už na začiatku pomerne konkrétna – tmavý drevený obklad, inšpirovaný starými stodolami v horských oblastiach,“ popisuje jej zrod architekt Aleš Kubalík z ateliéru Sporadical.
„Pomerne rýchlo sme našli spoločnú reč. Zhodli sme sa na drevenej kocke so vzdušným interiérom, ktorú časom obklopí záhrada-lúka s novými stromami.“ Podobu stavby určil ešte jeden dôležitý faktor: „Pozemok je v územnom pláne obce vedený ako záhrada, z čoho vyplynula zákonom definovaná maximálna zastavaná plocha – v tomto prípade to znamenalo rozlohu 100 m2. Takáto veľkosť domu však celkom zodpovedala predstavám investora ako z hľadiska účelu, tak aj plánovanej výšky investície,“ dopĺňa architekt. Nepodpivničená dvojpodlažná drevostavba s plochou strechou je teda oficiálne rekreačným objektom určeným na bývanie.
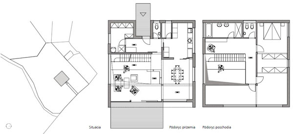
| Údaje o stavbe označenie: rekreačný objekt architekt: Aleš Kubalík, architektonická kancelária SPORADICAL projektant: AV Servis, Lukáš Vrtiška projekt: 2008 – 2009 realizácia: 2009 – 2010 plocha pozemku: 2 176 m2 zastavaná plocha: 100 m2 celkový obstavaný priestor: 845 m3 celková podlahová plocha: 172,5 m2 |
Zvnútra von
Uličná fasáda domu – kocky je strohá, až prísna, iba s malým počtom neveľkých okien a vstupnými dverami. Pre väčšiu otvorenosť smerom na ulicu nebol dôvod, skôr naopak, a ani severovýchodná orientácia uličnej fasády, ani vnútorná dispozícia domu si v tejto časti nežiadali väčšie presvetlenie. O to viac je kocka otvorená svetu zo strán obrátených k zapadajúcemu slnku. Severozápadná fasáda upúta veľkoplošným oknom, ktoré sa tiahne sa cez dve poschodia, juhozápadná sa dvoma horizontálnymi zasklenými pásmi otvára do rodiacej sa záhrady a navyše, vďaka zvažujúcemu sa pozemku ponúka aj krásny výhľad na okolitú krajinu.
![]() |
![]() |
Otvorenosť, logika a história
Interiér domu charakterizuje najmä voľnosť v dispozícii, dominantná je predovšetkým obývacia časť otvorená cez dve poschodia. Spodné podlažie je klasicky denné – s obývacou a jedálenskou časťou v otvorenom priestore a čiastočne oddelenou kuchyňou, technickou miestnosťou a WC, na hornom sú izby, kúpeľňa a pracovný kút s knižnicou na pôsobivej otvorenej galérii. „Chceli sme, aby vnútorné usporiadanie domu rešpektovalo naše potreby – sme mladá rodina, ktorá sa možno bude ešte rozrastať,“ popisuje sympatická majiteľka. Aj preto vznikla na hornom poschodí detská izba, ktorú možno neskôr v prípade potreby rozdeliť na dve menšie.
Ďalšia podmienka bola omnoho špecifickejšia: „Našim rodinným striebrom je historický nábytok v štýle art déco. Potrebovali sme preň nielen nájsť miesto, ale aj celkovo navrhnúť interiér tak, aby sa s nábytkom vhodne dopĺňal. Architekti teda mali konkrétne zadanie na umiestnenie konkrétnych kusov,“ poodhaľuje rúško tajomstva drevenej kocky hostiteľka.
Dom tak zvnútra pripomína čisté biele plátno, narušené iba veľkými okennými otvormi, ktoré sem vpúšťajú denné svetlo. Nenájdete tu žiadne farebné orgie, interiér je len nenápadným a zároveň funkčným prostredím pre starožitné artefakty. Tie si s otvoreným priestorom zjavne rozumejú – dôkazom súhry starého s novým sú aj naše fotografie. Čerešničkou na torte sú lustre, ktoré majitelia dokupovali v starožitníctvach, z rovnakého zdroja sú aj rámy zrkadiel. Lustre nájdete najmä na prekvapivých miestach – trebárs v kúpeľni či na toalete. „Historické svietidlá tu vytvárajú zaujímavý kontrast s inak stroho poňatým interiérom,“ vysvetľuje majiteľka.
![]() |
![]() |
Od podlahy
Podlaha na prízemí má dve výškové úrovne – hlavná obytná časť je v porovnaní so vstupom „o schod“ nižšie. Architekti tak vyriešili osadenie domu na zvažujúcej sa parcele a navyše vytvorili efektnú dennú časť, kde sa potrebný stupeň uplatnil ako prirodzené miesto na sedenie. Vďaka tomu nie je potrebné zahlcovať interiér obligátnymi televíznymi pohovkami či kreslami. Podlahy sú z betónu, zaliate čírou polyuretánovou stierkou.
„Pôvodne mala byť úplne číra, ale remeselníci, nepoznajúc toto riešenie, nám čerstvo zaliatu podlahu pošliapali,“ popisuje zrod unikátneho dekoru majiteľka. „Vzniknuté stopy sme potom nechali odstrániť – brúsili ich a čistili, až sa premenili na neurčitý vzor, ktorý sa nám nakoniec zdal zaujímavejší než pôvodné riešenie. Na poschodí sme sa potom snažili vytvoriť rovnaký vzor zámerne, ale už sa nám to až tak nedarilo.“ Dominantné oceľové schodisko je zas dielom rodinného známeho – umeleckého kováča.
![]() |
![]() |
Drevostavba
Farbené smrekové dosky na povrchu prevetrávanej fasády ukrývajú rovnako drevenú konštrukčnú podstatu domu. Celodrevený montovaný objekt je založený na betónových základových pásoch, zvislé drevené konštrukcie v interiéri dopĺňa železobetónová stena, ktorej úlohou je jednak stuženie objektu, jednak akumulácia tepla.
Drevená konštrukcia je v mieste najväčšieho rozponu podporená aj oceľovým stĺpom a prievlakmi. Vďaka bielym omietkam by ste však v interiéri len ťažko hľadali dôkaz dreveného konštrukčného systému. Na drevo paradoxne najviac odkazuje spomínaná akumulačná stena – hobľované dosky debnenia odtlačené v betóne sú asi najzrejmejšou pripomienkou prírodného konštrukčného materiálu. Nosnú drevenú konštrukciu má aj plochá strecha. Chráni ju tepelná izolácia z polystyrénu s kašírovanou asfaltovou lepenkou, finálnu povrchovú úpravu tvorí strešná krytina z asfaltovaných pásov.
![]() |
![]() |
Nízkoenergetický dom
Dom je charakterizovaný ako nízkoenergetický – je zateplený 30 cm hrubou vrstvou polystyrénu (EPS), okná sú zasklené izolačným trojsklom. Vykurovanie (klasický horizontálny systém je tu kombinovaný s podlahovým) aj ohrev vody zabezpečuje v prvom rade moderný plynový kotol, keď však prituhne, alebo si chcú len večer vytvoriť príjemnú atmosféru, môžu si domáci prikúriť aj v pôvabnej liatinovej piecke.
Podlahové vykurovanie dopĺňajú v obývačkovej časti otvoreného priestoru aj podlahové konvektory, umiestnené pred zasklenou stenou. Aby dosiahli úspornejšiu prevádzku, počítali už vopred majitelia aj s tým, že na plochú strechu sa časom nainštalujú fotovoltické panely. To už však považujú skôr za príjemné starosti. Dôležité je, že dnes už bývajú vo svojom, v príjemnom dome so skvelou atmosférou, kde sa jeden štýl dopĺňa s druhým. Taký dom je potom radosť napĺňať tým podstatným – životom.
TEXT: Matej Šišolák
FOTO: Dano Veselský




















