Najskôr orech, potom terasa a dom až nakoniec
Jednoduchý domček so sedlovou strechou v Chorvátsku ťaží z výhod, ktoré mu poskytuje miesto na pozemku. Je vsadený do mierneho svahu, a kým z jednej strany pôsobí ako jednopodlažný dom, z opačného pohľadu sa vynára ešte jedno nižšie podlažie – suterén, používaný ako skladový priestor. Ďalším momentom, z ktorého architekt Tomislav Soldo ťažil, je vysoký strom – orech. Tento strom bol nakoniec dôvodom vzniku samotného domu a bez neho by tento nápad zrejme ani neskrsol. Prečo?
Na počiatku bol orech
„Úplne na začiatku, skôr ako všetko ostatné, tu stál vyrastený orech, ktorý poskytuje dokonalý prirodzený tieň a miesto, kde je príjemné relaxovať. V priebehu istého obdobia sa okolo stromu najskôr formovala terasa, až nakoniec sa objavila myšlienka na stavbu domu.
Naklonený terén s panoramatickým výhľadom na neďaleké lesy a hory boli spolu s pozíciou už existujúcej terasy určujúcimi prvkami v procese návrhu tohto vidieckeho domu,“ vysvetľuje podstatu myšlienky a vzniku čierneho domčeka, ako projekt sám nazýva, architekt Tomislav Soldo.
Spací priestor na medziposchodí
Povahu domu predurčili aj okolité stavby a tradície v prostredí, a tak bolo jasné, že bude stáť na kopci, bude mať predĺženú terasu, šikmú strechu a bude opláštený drevenou fasádou.
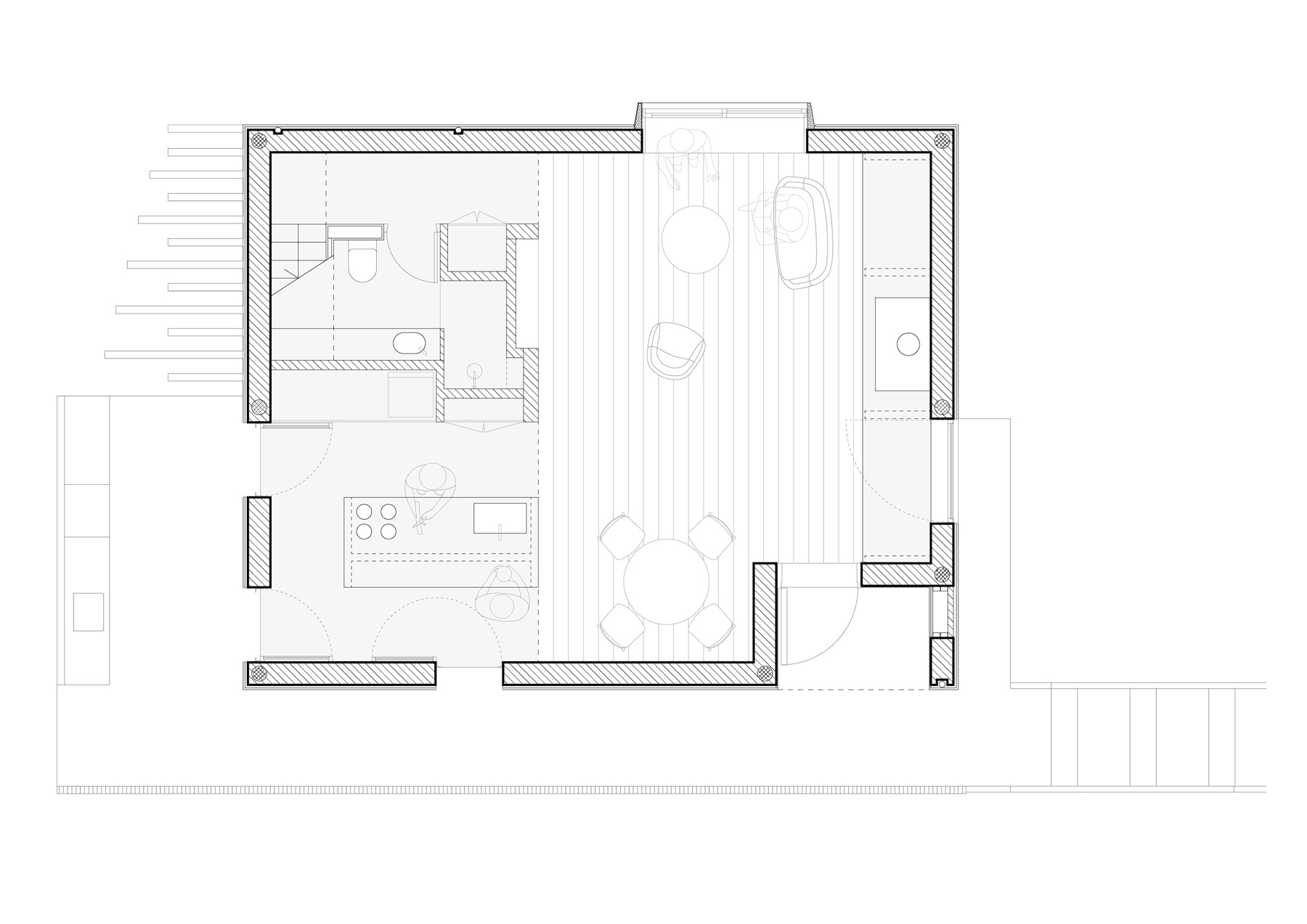
Na úrovni suterénu sa nachádza malý sklad, prízemie patrí otvorenej obývacej izbe s kuchyňou a jedálenským kútom, na medziposchodí sú priestory na spanie. Medziposchodie je umiestnené nad kuchyňou a hygienickým zázemím, hlavná obývacia časť je otvorená až po strechu.
Z interiérovej kuchyne rovno do letnej
Zámerom architekta bolo vytvoriť čo najintenzívnejšie spojenie interiéru s exteriérom, čo sa podarilo v kuchynskej časti prízemia. Tá sa dá otvorením zasklených dverí jednoducho spojiť s letnou vonkajšou kuchyňou a samotnou terasou. Príjemným prvkom v hlavnom obytnom priestore je tiež pohodlné posedenie vytvorené priamo v oknách či pri nich po obvode miestnosti.
Ako je riešená konštrukcia?
Na rozdiel od suterénu a betónových základov je samotný dom vytvorený z pórobetónových blokov, ktoré výrazne urýchlili výstavbu na danom mieste. Vonkajšie steny z pórobetónových tvárnic sú 30 centimetrov hrubé a plnia všetky požiadavky na stavebnú fyziku, pričom netreba žiadnu dodatočnú izoláciu. Vetraná fasáda zo sibírskeho smrekovca pomáha v lete proti nežiaducemu prehriatiu a v zime minimalizuje tepelné straty.
Čierna fasáda a hra so svetlom
Drevená fasáda je natretá dvoma vrstvami čierneho dechtu, ktorý preniká hlboko do dreva a chráni ho dlhý čas. Vzhľad čiernej kompaktnej a zdanlivo monolitickej konštrukcie sa mení vo večerných hodinách s ustupujúcim svetlom. Okenice s pravidelnými šikmými ryhami nechávajú aj počas dňa zaujímavým spôsobom prenikať svetlo do interiéru, vytvárajúc efekt slnečných lúčov.
Čierny dom pri orechu v kocke
Architektonický ateliér: PRO-S, Tomislav Soldo
Lokalita: Gorski kotar, Chorvátsko
Podlahová plocha: 100 m2
Rozloha pozemku: 4 500 m2
Realizácia: 2016
Text: Sabína Zavarská
Foto: Jure Živković



















