Na rozhraní lesa a lúky
Keď sa počas stavby rodinného domu stanú z investora a architekta priatelia, dielo sa azda ani nemôže nepodariť. A ak navyše ide o úspešného podnikateľa a o spoluautora slávneho pražského Tancujúceho domu, potom je osobitosť stavby aj spokojnosť majiteľov zaručená.
Bolo by vhodné zdôrazniť, že investor domu, juhočeský podnikateľ František Hnojna, by sa pokojne mohol starať o svoje štyri vnúčatá a chodiť napríklad chytať ryby, ktorých má, napokon, v jednom z troch jazierok na svojom pozemku požehnane. Hoci je vo veku, keď si mnohí užívajú často vytúžený dôchodok, stále podniká, a to úspešne, na niekoľkých frontoch. A aby toho nebolo málo, pred niekoľkými rokmi začal so stavbou veľkolepého domu.
„Kúpili sme hektár nádherného pozemku, časť bývalého lesoparku. Bolo jasné, že taký veľký a úžasný kus zeme nemôžeme zničiť nejakou malou a priemernou stavbou. Priatelia sa čudovali, že som tu nepostavil niečo na spôsob statku. Nie som však zástancom sedliackeho spôsobu života iba tak naoko a žiadne hospodárstvo sme rozhodne nechceli,“ začína rozprávanie František Hnojna. Do nového sídla sa spolu s manželkou presťahovali až prednedávnom.
Na začiatku bol list
Pán Hnojna v poslednom roku tisícročia oslovil architekta Vlada Milunića listom. „Prišiel mi od Františka nádherný, veľmi láskavý list. Videl v istom časopise jeden z mojich domov v Chocni a požiadal ma o spoluprácu na jeho dome. Požiadavkou bolo okrem iného, ako v Chocni, široké použitie dreva, čoho som sa veľmi rád ujal,“ spomína Vlado Milunić. Zadanie znelo: viacgeneračný dom, v ktorom bude dominovať ústredný priestor obývacej izby, a k tomu stavba, ktorá bude ctiť krásny lesopark.

Ako hovorí architekt: „Dom je zvonku malý, ale zvnútra veľký.“ Je v ňom skutočne miesto pre všetkých.Na prízemí je veľká obývacia izba, kuchyňa, dve spálne, jedna prepojená s kúpeľňou, rezervná kúpeľňa, dve pracovne a zatiaľ nezariadená garsoniéra pre sestru majiteľa. O poschodie vyššie sú ďalšie štyri izby – pre každé z vnúčat.
Najvyššie položená je „trucovňa“, kde bude môcť pán domu nerušene rozjímať – postačí vytiahnuť rebrík, po ktorom sa do nej lezie. Tá je však zatiaľ tiež bez zariadenia. Z oboch spální na prízemí možno po kovovom schodisku zísť do záhrady, horné izby vnúčat rovnako ako trucovňa majú výstup na samostatné terasy. Vonkajšia terasa s kozubom zároveň nadväzuje veľkou zasklenou stenou s dverami na obývacie izby. Ako hlavný vchod do domu slúži zasklené zádverie.
Dom socha
„Napriek tomu, že obytná plocha je značná, priestorom sa nemrhá. Všetky miestnosti sú skôr menšie a slúžia svojmu účelu, iba obývacia izba je rozľahlá. Majiteľ je veľmi spoločenský, podniká a športuje. Vo voľnom čase dokonca režíruje divadlo. Chcel, aby sa u neho mohli schádzať divadelníci a priatelia bez toho, aby sa cítili stiesnene. Dojem priestrannosti zároveň zvýrazňujú premyslené priehľady – dom je vďaka zaskleným stenám, oknám a početným dverám všetkými smermi transparentný,“ opisuje architekt Milunić.

Keď sa Vlada Milunića spýtate, kde a ako sa zrodil nápad na túto stavbu, odpovedá bez premýšľania s úsmevom: „Kradne sa všade, a to aj v architektúre. Tento dom som dal dohromady z krádeží. Priznávam, že som vykradol svojho priateľa Franka Gehryho, Franka Lloyda Wrighta a Brucea Goffa. Dodatočne som zistil, že Wright kradol v Tibete, kde stojí dom s veľkými presahmi doslova ako od Wrighta…“
Napriek tomu je stavba v Planej nad Lužnicou v mnohom nutne šitá na mieru, a to nielen pozemku, ale, ako sme spomenuli, aj jeho majiteľom. Tí nechali všetko rozhodovanie a plánovanie na architektovi. „Mám prácu, kde denne rozhodujem o zásadných veciach. Rád som preto prenechal všetko rozhodovanie o projekte na Vladovi. Nielen stavbu samotnú, ale tiež vybavenie interiéru,“ zdôrazňuje pán Hnojna. Dom s ohľadom na priateľstvo oboch mužov vychádzal svojím vzhľadom aj zariadením zo vzájomne ústretovej diskusie. „František sa vďaka svojej práci často pohybuje v technicistickom prostredí, preto som mu navrhol objekt celkom iný, prírodný, aby hneď vedel, že je doma, a nie v práci,“ vysvetľuje Vlado Milunić.

Na rodinnom dome v Planej nad Lužnicou nájdeme celý rad vecí, ktorými sa odlišuje od veľkej väčšiny svojich „príbuzných“. Hlavným z nich je extrémne zložitý krov. Tvoria ho vždy dve krokvy nad sebou, z ktorých spodná je uložená na stene z tehál Porotherm a vrchná ju v líci fasády presahuje, v niektorých miestach až o jeden meter. Horná krokva je schovaná v izolácii krovu tak, aby v presahu nevznikal nežiaduci tepelný most. V miestach nad oknami je ako krytina použité drôtené sklo, zvyšok je z titánzinku.
„Krov sa vyrábal vo februári. Bola to neuveriteľná práca, ale mali sme šťastie na úžasného hlavného tesára,“ zdôrazňuje architekt. Nádherná a zároveň náročná práca je zrejmá v interiéri, kde priznaný krov vytvára prirodzenú atmosféru, ktorá zvýrazňuje súlad s prírodou.
Ďalšou zaujímavosťou je krytina podláh a schodisko – artoleum (na jute nalisovaná zmes korkovej drviny a prírodnej živice), pôvodom z Holandska. V rôznych častiach domu sú použité rozličné vzory a farby. Pestrofarebnú podlahu v kuchyni tvoria úzke pásy krytiny. „Je to celá vzorkovnica jednej súpravy artolea. Rovnakú podlahu mám vo svojej kancelárii,“ upresňuje Vlado Milunić. Pri kozube aj pri vstupe do domu nadväzuje na artoleum terazzo. Objekt vykuruje suterénna kotolňa pomocou vykurovacích telies s tým, že iba v obývacej izbe je kúrenie podlahové.
Naježená fasáda

Drevený obklad nemá iba praktickú funkciu. Je buď zvislý, alebo vodorovný. „V niektorých miestach je užší alebo širší, kvôli väčšej gradácii. Na severnej strane sa fasáda ježí, akoby jej bola zima, na zvyšných stranách je hladká,“ upozorňuje architekt na ďalší zaujímavý detail. Čo sa týka farebnosti, obklad je natretý striedavo bielou a šedou farbou, trucovňa má karmínovočervený odtieň rovnako ako garáž.
Obe karmínové časti stavby sú pri príjazde k domu v podstate to prvé, čo návštevník vidí. Garáž, pôvodne umiestnená pri hlavnom vchode, nie je iba objektom na parkovanie, ale má zároveň funkciu zatienenia pri pohľadoch z ulice. Okrem garáže chráni súkromie obyvateľov kamenný múrik so živým plotom s vjazdovou hlavnou bránou a dvoma bránkami, z ktorých jedna slúži ako samostatný vchod do sestrinej garsoniéry.

„Mám rád priestor – nielen preto, že sa v ňom môžu pohodlne schádzať ľudia, ale potrebu priestoru považujem za určitý pohľad na život,“ hovorí majiteľ domu. „Mám predstavu, že vnúčatá si tu budú nerušene robiť úlohy a potom sa zahrajú vo veľkej záhrade.“ Záhrada, ako sme už spomenuli, je časťou niekdajšieho lesoparku a práve na tomto hektári sú okrem nádherných urastených stromov tri jazierka.
„V minulosti bola táto časť parku hospodárskym zázemím. Z nepochopiteľných dôvodov počas socializmu jazierka zavážali odpadom. Vyčistili sme ich a do jedného z nich nasadili ryby. Nelovím ich, iba ich chodím pravidelne kŕmiť,“ smeje sa František Hnojna. Niektorá zo zvyšných dvoch menších vodných plôch by mohla v budúcnosti slúžiť aj na kúpanie.
Keď sa opýtate oboch blízko spolupracujúcich pánov – investora aj architekta –, aké problematické bolo podobnú stavbu zrealizovať, odpovedá majiteľ bez váhania: „Veľa remeselníkov bolo z Vladových požiadaviek ‚mimo‘. Chytali sa za hlavu, lamentovali, keď dostali úlohu urobiť niečo ešte raz a poriadne. Vystriedalo sa ich tu dosť. Keď však tí, čo vydržali, v konečnej fáze videli, na čom mali možnosť sa podieľať, boli dokonca hrdí na to, aké predstavy vo svojom remesle dokážu zrealizovať.“
Vila v Planej nad Lužnicou
Investor: Ing. František Hnojna
Architekt: Vlado Milunić
Interiér: Iveta Chitovova, Vlado Milunić
Sadové úpravy: Mikuláš Vavrín
Vykonávací projekt: Tillia, Ing. Metil a Ing. Lukavec
![]() |
![]() |
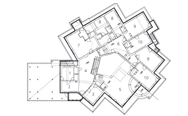
| Suterén | Prízemie |
![]() |
![]() |
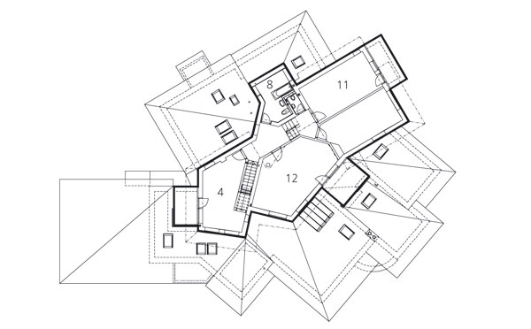
| Poschodie | Trucovňa |
| 1 – závetrie, 2 – šatník pre hostí, 3 – kuchyňa, 4 – foyer, 5 – obývacia izba, 6 – komunikácia, zázemie, 7 – garsónka – samostatná b.j., 8 – kúpeľňa, 9 – spálňa, 10 – pracovňa, 11 – komora, 12 – izby vnúčat, 13 – trucovňa |
|
Vasil Stanko
Foto: Vasil Stanko, Vlado Milunić

















