Na mieste, kde kvalita stavieb upadá, prekvapuje modrý dom
Priestranný svetlý vzdušný dom na kopci, ktorý z každej strany prináša neuveriteľne krásny výhľad na okolitú prírodu. Stojí na mieste bývalej chaty, ale s chatou nemá nič spoločné. Hrdo svojou eleganciou a razantnou geometriou kraľuje priestoru. Neruší ho, len pozýva na návštevu so skvelým výhľadom. Taký je rodinný dom Brná od architektonického štúdia 3+1 architekti.
Tak trochu mimo reality
„Dôležitý je pre nás zmysel zámeru. Zaujíma nás kontext a hľadanie správneho pomeru medzi konkrétnym a abstraktným,“ to je motto architektov z uvedeného štúdia. V projekte dvojpodlažného rodinného domu Brná veľmi dobre vidieť práve spomínané hľadanie pomeru medzi konkrétnym a abstraktným, pretože dom po viacerých stránkach prináša povznášajúce až nereálne možnosti a vnemy. Pridáva sa k tomu i nevšedné sfarbenie fasády.
Starú stavbu pohltil a v mnohom prerástol
Samotný modrý dom je umiestnený v hornej časti pozemku, čím vznikol krásny výhľad na okolie – údolie rieky Labe – prakticky cez každú zasklenú stenu a okno. Veľkou výhodou pozemku je zároveň ľahký prístup z priľahlej cesty. Obe podlažia domu sú vyrovnané tak, aby dobre zapadli do svahu.
I pôvodný drevený domček sa nachádzal na hornej časti pozemku, staviteľ mal zrejme podobný zámer ako architekti nového projektu Pavel Plánička, Bruno Panenka a Barbora Urbanová. Nový dom prakticky pohltil pôdorys starej drevenej chatky, a samozrejme, v mnohom ju prerástol. Množstvo veľkých zasklených otvorov ponúka dostatok svetla. Zaujímavo pôsobí i asymetricky vysunutá časť vrchného podlažia. Pôsobivú nepravidelnosť nájdeme však aj na iných miestach.
Domov a chát pribúda, kvalita stavieb klesá
Keďže dom je umiestnený na strmom južnom svahu, v okolí domčekov a chatiek, ktorých tu neustále pribúda (pritom pred polstoročím tu nebola takmer ani stopa po stavbách), bolo potrebné upraviť aj okolitý terén priliehajúceho pozemku. Terasovité usporiadanie či schody vytvorené kmeňmi stromov dodávajú celému domu špecifický charakter a nádych exotiky.
Panoráma na fasáde
Okrem toho, že tento dom spoznáte už z diaľky vďaka charakteristickej fasáde, od ostatných v tejto oblasti sa odlišuje aj inými, podstatnejšími faktormi. I keď stavieb v tejto lokalite pribúda, ich kvalita prudko klesá. V tomto je dom z architektonického štúdia 3+1 architekti výnimkou.
Ako uvádzajú architekti vo svojej správe: „Dom je vďaka murovanému soklu pevne usadený do meandra vrstevníc, drevené poschodie otáčajúce sa na juh vzdáva hold anonymným majstrom chát.“ Modravá farba fasády tiež nie je bezúčelová, okrem toho, že stavbe dodáva fascinujúci závan hravej elegancie, zrkadlí sa na nej okolitá panoráma Českého stredohoria.
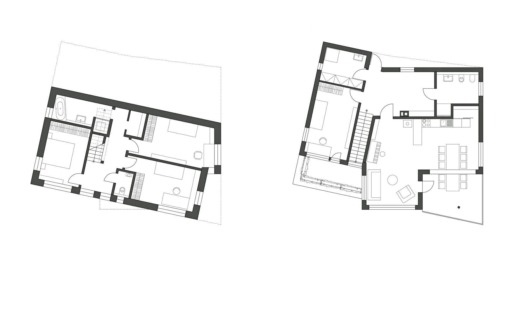
Ako vyzerá interiér?
Prízemie je poňaté skôr ako oddychový priestor, v ktorom nájdeme dve samostatné izby, spálňu pre rodičov, samozrejme toaletu a kúpeľňu s vaňou.
Na poschodie vedú schody z priznaného betónu. Hlavný obytný priestor je umiestnený na vrchnom podlaží a má otvorenú dispozíciu, v ktorej nájdeme kuchyňu s jedálenským stolom, spoločenskú zónu s gaučom i priestor na hranie pre malé dieťa. Na túto časť nadväzuje zastrešená terasa so sedením a kovovým zábradlím. Na poschodí sa nachádza tiež kúpeľňa, šatňa a jedna samostatná miestnosť.
Rodinný dom Brná v kocke
Autori: 3+1 architekti (Pavel Plánička, Bruno Panenka, Barbora Urbanová)
Projekt: 2013
Realizácia: 2015
Lokalizácia: Brná
Plocha pozemku: 1 075 m2
Zastavaná plocha: 101 m2
Úžitková plocha: 160 m2
Obstavaný priestor: 630 m3
Sabína Zavarská
Zdroj: 3+1 architekti
Foto: Pavel Plánička
























