Mestský dom, ktorý sebavedome vstúpil do Trenčína
„Bolo to dobrodružstvo, ale strhla ma odvaha a odhodlanie investora,“ odpovedá architekt Juraj Polyák na otázku motivácie ísť do jedného z najväčších stavebných projektov v Trenčíne za ostatné obdobie. „Samozrejme, stavba sa bude ešte kryštalizovať počas svoje prevádzky, ale domnievam sa, že výsledok nášho risku nedopadol najhoršie.“ To dobrodružstvo sa volá Centrum Masaryčky a vyrástlo v tesnom dotyku s pešou zónou v Trenčíne. Investícia za vyše pol miliardy korún (17,592 mil. eur) sa premietla do architektúry, ktorá sebavedome vstúpila do organizmu mesta a zároveň svojím významom presiahla jeho hranice.
Lineárny verzus nepravidelný
Príbeh tohto domu sa začal v roku 2004, keď sa spoločníci združený v konzorciu Z.A.I.C. rozhodli, že na území bývalých Masarykových kasární zhodnotia svoje úsilie v spolupráci s mestom a postavia moderný obchodno-administratívny komplex. Podmienka mesta však bola pomerne razantná – treba to postaviť do roku 2008.

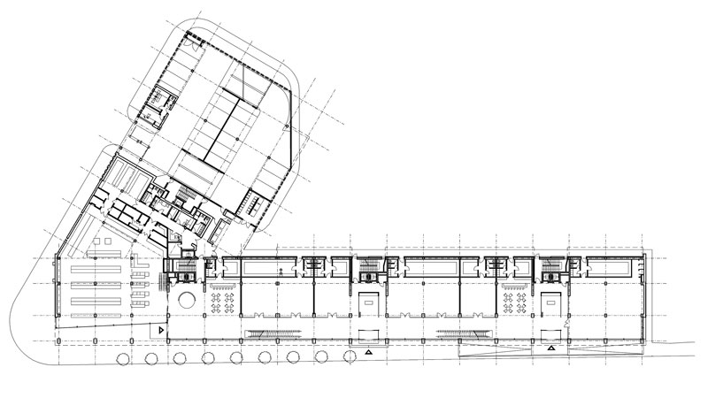
Koncepcia jeho komplexu s parkovacím domom sa však musela najprv vyrovnať s rôznorodým prostredím okolia, kde nechýbali akoby bez konceptu vyššie i nižšie stavby, ba ani historická zástavba. „Naša urbanistická kompozícia areálu sleduje tvar pozemku, pričom sme využili usporiadanie dvoch rozdielnych postavených hmôt,“ približuje koncept Juraj Polyák. „Prvá je lineárna s výškou šesť podlaží, ktorá vytvára jednoznačný nástup do územia. Druhou je nepravidelný kváder sedempodlažného parkovacieho domu.“
Mestský dom
Už v samotnej súťaži boli návrhy, ktoré tento objekt z uličnej strany členili, ba dokonca sa snažili rozdeliť priečnou pasážou z dôvodu zdanlivo neprekonateľných problémov s jestvujúcimi inžinierskymi sieťami, no koncept architekta Polyáka to odmietol. Ten nasadil objektu mestského domu jednoznačnú uličnú líniu s výraznou horizontalitou, a tomuto princípu podriadil aj polyfunkčné vrstvenie.
Na 1. a 2. podlaží sú obchodné priestory s presklenou pasážou orientovanou do ulice, ktorá tvorí predpolie vstupu do nich. Cez tento monumentálny výklad sa otvorilo vnútro budovy a život v nej sa iluzívne prelína aj do parteru mimo tela stavby. Pohyb vo vnútri tohto verejného priestoru sa lineárne usmerňuje zvonka veľmi nápadnými eskalátormi.
Stredná časť objektu – 3. a 4. nadzemné podlažie – jasne naznačuje prostredníctvom jednoduchej bielej omietky administratívne využitie s flexibilným dispozičným základom pre budúcich užívateľov. Na 5. a 6. podlaží mali byť pôvodne exkluzívne byty odlíšené architektúrou a použitým materiálom. Investor však po prehodnotení svojho zámeru ponechal aj týmto priestorom kancelársku funkciu s odlíšením a ponukou reprezentačnejších priestorov pre menšie firmy v porovnaní s nižšími podlažiami. Tieto ustúpené kubické objekty s veľkými nárožnými, príp. úzkymi pásovými, oknami sú posadené na streche hlavného objektu a predstavujú výrazný a nápadný prvok stavby.
Podľa architekta Polyáka ho na modelovanie a zvolenie tejto architektonickej formy nadstavbovej časti objektu inšpirovala konkrétna urbanistická situácia a strešná krajina priľahlej zástavby rodinných domov, ktorá sa vníma cez priehľady ponad zrealizovaný objekt.
Logika prevádzky a architektonických prvkov napomáhali zrealizovať zámer – mestský dom s občianskou vybavenosťou. Jednoduchý princíp umožňuje suchou nohou prejsť cez presklenú spojovaciu časť s bezbariérovými rampami z garážového domu do obchodov či kancelárií. Priestory sú vzdušné a s čitateľnou prevádzkou, v ktorej sa ľudia vedia rýchlo zorientovať.
![]() |
![]() |
Parkovací dom
K lineárnej časti stavby je zo severovýchodu pripojený 7-podlažný parkovací dom, pričom odstupom obidvoch hmôt v tomto styku sa dali presvetliť kancelárie a vytvoriť zelené átrium.
Objekt parkovacieho domu je vo svojom architektonickom výraze samostatnou hmotou, ktorá svojou funkciou dala šancu na netypické architektonické riešenie a stvárnenie v spojení s lineárnym objektom. Perforovaný betónový protipól k objektu bielej farby vytvára veľmi zaujímavý výtvarný účinok a v podmienkach tohto mesta je doslova novátorskou záležitosťou.
„Parkovací dom vyvolal azda našu najväčšiu polemiku s investorom,“ spomína Juraj Polyák. „On sa totiž na to pozeral celkom pochopiteľne cez ekonomické ukazovatele a určite by pristal aj na klasiku v podobe oceľovej konštrukcie obtiahnutej plechom alebo sitom. S tým som nesúhlasil a nakoniec to prijal aj investor s pochopením po vzájomnej dohode. Ale aj ja som dlho zvažoval, akú štruktúru a konštrukciu použiť. Bolo to veľmi dôležité rozhodnutie pre celkový výsledok v architektúre stavby.“
Nakoniec sa parkovací dom konštrukčne zrealizoval na základe železobetónového skeletu s obvodovou stenou sledujúcou tvar pozemku. V obvodovej železobetónovej stene sa vynechali vetracie a presvetlovacie otvory. Tie sa usporiadali vo vertikálne rozohranom a pravidelne sa striedajúcom rastri jednotlivých podlaží. Z dôvodu bezpečnosti sa otvory uzavreli sitami z ťahokovu. Časť parkovacích miest spodných podlaží garážového domu je určená najmä pre verejnosť a návštevníkov domu. Ostatné parkovacie miesta slúžia nájomcom administratívnych priestorov.
![]() |
![]() |
Mestotvorná hodnota
Pre architekta Juraja Polyáka je tvorba aj trpezlivou prácou s konkrétnym investorom. Na začiatku je na jednoduchej úrovni, neskôr sa posúva a končí na úrovni partnerského dialógu. Podobný prípad bol aj Centrum Masaryčky. „Nie sme revoluční novátori v tom slova zmysle, aby sme nútili investora do niečoho zlého,“ hovorí architekt. „Tu sme ho však museli presvedčiť o jednoznačnej myšlienke mestského domu, ktorá sa dá zrealizovať. Našu robotu nám sťažoval prevládajúci trend v tomto segmente: dnes sa často robí pre užívateľa, ktorého nepoznáte. Aj my sme robili kompromisy, ale vo všetkých fázach výstavby sa nám podarilo udržať štandard tohto domu na slušnej úrovni. Keď zainteresovaní ľudia videli, o aký objekt ide, tak sa s nasadením vložili aj do interiéru, ktorý sa vo svojej podstate takisto zrealizoval podľa našich predstáv.“
Centrum Masaryčky už niekoľko týždňov žije svojím životom. Rešpektuje okolie, ale súčasne pôsobí ako nová hodnotová substancia. Razantne vstúpilo do mesta, ale neudupalo svoje okolie. Naopak, je výzvou aj pre ostatné príspevky, ktoré sa chcú v budúcnosti kvalitne zapojiť do mestotvorby. Ale to je už iný príbeh…
Centrum Masaryčky

Investor: Z.A.I.C., s. r. o.
Autor: Ing. arch. Juraj Polyák
Spolupráca: Ing. arch. Milan Csanda, Ing. arch. Martin Dulík, Ing. arch. Pavol Dúbrava
Generálny projektant: Architektonická kancelária Juraj Polyák AA
Projekt: 05/2005 – 2/2007
Začiatok výstavby: 4/2006
Ukončenie výstavby: 7/2008
Celkové náklady stavby: 530 mil. Sk (17,592 mil. eur)
Úžitková plocha: 22 815 m2
Zastavaná plocha: 3 600 m2
Obstavaný priestor: 83 151 m2
Generálny dodávateľ: Monolit Slovakia, s. r. o., Trenčín
Dodávatelia:
UK, VTZ, MaR, elektroinštalácia, slaboprúdové rozvody, EPS: KLIMAK, s. r. o., Nitra
ZTI a plynofikácia: VIKRA Dubnica nad Váhom, kotolne
Zámočnícke konštrukcie: KOVOFINÁL SK, a. s., Dubnica nad Váhom
Výťahy a eskalátory: SCHINDLER výťahy a eskalátory, a. s., Bratislava
Hliníkové konštrukcie výplní otvorov: STAKOS SLOVAKIA, a. s., Dubnica nad Váhom
Izolácie striech: KPS izolácie, s. r. o., Trenčín
Kamenné obklady a dlažby: ORSTAP, s. r. o., Nitra
Pôdorys 1. NP
Ľudo Petránsky
Foto: Pavel Meluš
















