Loftové bývanie v sýpke
Prestavba objektu podľa požiadaviek klienta nie je jednoduchou úlohou. Ak však ide o zmenu funkcie a zároveň náročného klienta zo zahraničia, je to už zaujímavá výzva. Rekonštrukcia sýpky v Adamovských Kochanovciach je dôkazom toho, že správna idea premení aj neobývateľný skladový priestor na zaujímavo riešené loftové bývanie.
Úlohou rekonštrukcie bolo vytvorenie obytného priestoru, presvetlenie miestností a komunikačné prepojenie objektu s existujúcou zástavbou. Prestavba sa dotkla celej stavby. Medzi najradikálnejšie zásahy patrili zdvíhanie drevenej stropnej konštrukcie, vytvorenie veľkých okenných otvorových na fasáde či vybudovanie dvoch nových komunikačných uzlov, ktoré obsluhujú celý objekt.
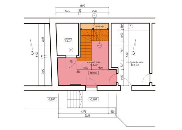
Vstupná hala
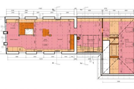
2. NP
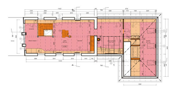
Podkrovie
Hlavná myšlienka premeny sýpky spočíva v odlíšení starých a nových prvkov. Riadi sa podobne ako pri pamiatkovej obnove farebným alebo materiálovým odlíšením. V interiéri je viditeľné použite dvoch druhov dreva – svetlé a tmavé, kde tmavé predstavuje pôvodné prvky a svetlé drevo z dubu a borovice nové zásahy.
Vstupný priestor tvorí masívne zalomené schodisko z borovicového dreva. Dômyselne vybavené úložné priestory slúžia zároveň ako šatník i sklad.
Dizajnovým prvkom je zábradlie, ktoré bolo navrhované pomocou modelovacieho programu Rhinoceros. Tvorí ho systém drevených rámov, náhodne vyskladaných do želaného tvaru.
Druhé nadzemné podlažie je využívané ako denná časť s obývacou izbou a kuchyňou s otvorenou dispozíciou. Podlažie prešlo najradikálnejšími rekonštrukčnými zásahmi. Pôvodný drevený strop nad druhým podlažím bol zvýšený z dôvodu malej svetlej výšky miestnosti. Časť stropnej konštrukcie pri obvodovom murive bola vynechaná a vytvorila priestor na umiestnenie okien siahajúcich až do podkrovných priestorov, ktoré optimálne presvetlili celý interiér.
Novými prvkami sú krb s priznaným tehlovým murivom a komín, ktorý zabezpečuje vykurovanie celej stavby. Zaujímavým riešením je vstavaný nábytok obývacej izby a kuchyne, ktorý necháva vyniknúť voľnej dispozícii, zároveň však využíva všetky dostupné úložné priestory.
Druhé podlažie a podkrovie spája vzdušná konštrukcia jednoramenného schodiska, votknutá do drevených rámov. Je navrhovaná náhodným rozmiestňovaním drevených rámov podobne ako zábradlie vo vstupnom priestore. Okrem komunikačnej funkcie má aj rôznorodé využite ako nábytkový prvok.
Kuchyňa
Obývacia izba
Tvorivosť architektov sa v tomto prípade uplatnila aj pri návrhu nadrozmerného strešného okna, ktoré umožňuje obyvateľom sýpky pozorovať nočnú oblohu a presvetľuje priestor zimnej záhrady.
–>–>
Na rovnakom podlaží sa nachádza aj samostatná kúpeľňa. Vložením deliacej priečky vznikol súkromný priestor, ktorý v sebe ukrýva komfortné kúpeľňové zariadenie. Vytvorením rámovej konštrukcie pod sanitou vznikol technický priestor. Kúpeľňa slúži pre dve spálne v podkrovnej časti.
Podkrovný priestor je po renovácií strechy využívaný ako nočná časť. Vložením priečok okolo schodiska a priestoru galérie vznikli dve samostatné spálne. Strešné okná zabezpečili presvetlenie miestností.
Rekonštrukcia je kompromisom medzi ideami funkčne mysliaceho majiteľa nemeckého pôvodu a rozvoľneným štýlom mladého autorského kolektívu architektov.
Na projekte spolupracovali architekti z ateliéru Nice architects a architekt Tomáš „Buco“ Hál z architektonickej kancelárie 6K. Realizátorom stavby pod dozorom Nice architects bola firma Belstav. Dizajn nábytku je dielom stolárskej firmy Wood4you.
Pôdorys vstupnej haly
Pôdorys 2. NP
Pôdorys podkrovia
Ing. arch. Paulína Oravcová


































