LJM House – netradičný dom v tradičnom prostredí
Jedným z tohtoročných finalistov súťaže CEZAAR 2015 je aj pozoruhodný projekt rodinného domu zasadený do prostredia príjemnej časti Alžbetin dvor v katastri Miloslavov. Objekt, ktorého autormi sú architekti Benjamín Brádňanský a Vít Halada z architektonického štúdia n/a, je nominovaný v kategórii Rodinné domy. Prinášame vám informácie o realizácii priamo od samotných autorov.
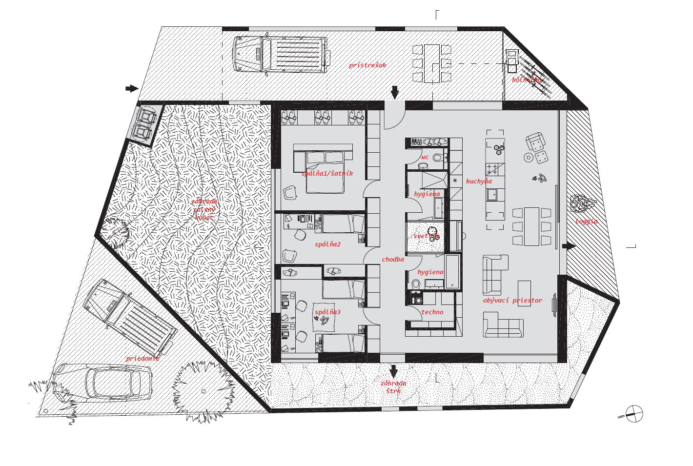
Dom predstavuje dômyselné zlúčenie jednotlivých funkcií obytného objektu a jeho okolia. Ako sa vyjadril Benjamín Brádňanský: „V jednom objekte sme zmiešali dom, plot, záhrady, lodžie, prístrešok, aby sme vytvorili niekoľko rôznorodých typov priestorov – rôzne otvorených či uzatvorených voči okoliu.“
Čo sa týka lokality, dom LJM sa nachádza v obyčajnej prímestskej krajine a je obklopený romantizujúcou individuálnou zástavbou, postavenou bez akéhokoľvek záujmu o architektúru.
Ako vznikla myšlienka umiestniť medzi samotný dom a jeho okolie rôzne medzistupne? „Vytýčili sme si cieľ vytvoriť dom, ktorý prinesie kvalitu nielen dovnútra bývania, ale aj do jeho okolia. Zjednodušene povedané, dom sme obklopili rôznymi prostrediami s rôznym stupňom otvorenia. Tieto medziprostredia medzi domom a okolím sa dajú používať rôzne. Zo spální je výhľad na jemný kopec zelenej trávy. Pred vstupom do domu je lodžia, kde sa dá parkovať, ale aj stolovať a hrať sa, ak prší alebo príliš prudko svieti slnko. Južná lodžia zatieňuje zasklenú stenu a rámuje pohľad do ovocnej záhrady. Západná stena láme silné svetlo, oddeľuje dom od budúcich susedov a vytvára úzku štrkovú záhradu.“
Aký bol cieľ autorov projektu z hľadiska finálneho vizuálu celého objektu? Podľa vyjadrenia Benjamína Brádňanského zo štúdia n/a: „Dom zvonku nemožno jednoznačne identifikovať, nie je jasné, ktorá časť je dom, čo je prístrešok, čo je plot. Je to hybrid poskytujúci niekoľko možností. Vnútri je jednoducho rozdelený na spaciu, obslužnú a obývaciu zónu. Cieľom bolo čo najmenej maskovať použité konštrukčné riešenie, teda ukazovať rôzne materiály odrážajúce proces výroby aj starnutia.“
Prehľad:
Investor: súkromný
Lokalita: Alžbetin dvor
Kataster: Miloslavov
Architektúra: n/a – Benjamín Brádňanský, Vít Halada
Zodpovedný architekt: Benjamín Brádňanský
Štúdia: júl 2011
Realizácia: 2012 – 2015
Plocha parcely: 1 203 m²
Zastavaná plocha domu: 173,6 m²
Zastavaná plocha lodžie + prístrešok: 79,0 m²
Celková zastavaná plocha: 252,7 m²
Verejná (otvorená) plocha pozemku: 45,1 m²
Index zastavanej plochy: 0,24
Index zelenej plochy: 0,76
Úžitková plocha, 1. NP: 144,6 m²
Počet nadzemných podlaží: 1
Počet podzemných podlaží: –
Výška objektu: 3,45 m
Počet bytových jednotiek: 1
Typologický druh: samostatne stojaci RD
Funkcia: bývanie
Steny, priečky:
obvodové murivo: keramická tvarovka (380 mm) + minerálna vlna (90 mm), železobetón
nenosné priečky: drevená konštrukcia, sdk, keramické tvarovky
Povrchová úprava:
interiér: sadrová omietka, obklad z veľkoformátových borovicových preglejok
exteriér: silikátová omietka a pohľadový betón
Stropy:
konštrukcia: bezprievlaková železobetónová doska
povrchová úprava: pohľadový betón
Strecha: plochá, neprevetrávaná, zelená (nízky porast, machy a trvalky)
skladba strechy: ŽB doska, parozábrana, zateplenie (minerálne vlákna, 250 až 350 mm), PVC hydroizolačná fólia, netkaná textília, drenáž, substrát (50 mm)
odvodnenie: vpusty, vnútorné zvislé zvody v priečkach hygienických miestností
Podlahy:
obytné miestnosti: drevená dyhová podlaha
technické a hygienické miestnosti: terazzo
Okná: izolačné trojsklo, hliníkové rámy
Vzduchotechnika: rekuperácia
O autoroch:
Architektonické štúdio n/a tvoria Benjamín Brádňanský a Vít Halada.
Benjamín Brádňanský (1976) študoval na Fakulte architektúry STU (2002), jeho kolega Vít Halada (1980) študoval na VŠVU (2004, 2008). Obaja skúmajú metódy architektonického navrhovania.
Pod značkou n/a sa skrýva spolupráca dvoch autorov na architektonických projektoch a súťažiach rôzneho rozsahu – od objektov až po urbanistické vízie. Štúdio n/a uplatňuje svoj prístup k architektonickému navrhovaniu v rôznych mierkach, kontextoch a spoluprácach a zároveň má ambíciu produkovať mnohovrstevnaté odpovede, ktoré sa okrem pragmatickej, ikonickej a estetickej stránky dotýkajú aj iných architektúre vlastných aspektov.
Text: Anna Martausová v spolupráci s Benjamínom Brádňanským a Vítom Haladom, n/a
Foto: Jana Ilková, n/a


























