Jednogeneračný dom na troch úrovniach
Z ulice zdanlivo nedostupný objekt s menšími oknami a vchodovými dverami v zákryte, od záhrady dom prekvapivo otvorený do vonkajšieho priestoru zasklením pozdĺž celej fasády. Taký je rodinný dom K2, ktorý vzbudzuje zvedavosť okoloidúceho, ako aj návštevníka. Nápadne skosené múry s betónovým obkladom obklopujú nemenej pozoruhodný interiér.
Rodinný dom K2, zasadený do svahu, sa nachádza neďaleko Banskej Bystrice. Jednu generáciu, ktorá dom obýva, zosobňuje konkrétne starší manželský pár, ktorého deti a vnúčatá obývajú susedný ,,Dom zlomu“. Návrh oboch domov vznikol v ateliéri Paulíny Hovorka Architekti. A hoci sú obe stavby navzájom prepojené spoločným exteriérom, každý z domov môže zároveň fungovať aj ako samostatný objekt. ,,Obe stavby sú príkladom spoločného bývania viacerých generácií,“ opisujú architekti svoj zámer.
Architektonický koncept domu K2 ale nevznikol v nadväznosti na susediaci “Dom zlomu“. Pri navrhovaní sa odznova brali do úvahy všetky podmienky a okolnosti parcely, i keď boli dozaista podobné ako pri predchádzajúcej realizácii. Dom K2 predstavuje ďalšie možné riešenie tohto svažitého pozemku, pri ktorom formovali výsledný objekt okrem terénu aj požiadavky klienta. S najnižším bodom na úrovni ulice tvar domu plynulo kopíruje stúpajúci terén. Stupňovanie sa končí na úrovni záhrady. Vnútorné usporiadanie má taktiež stúpajúci charakter. Hierarchia priestorov sa začína úzkymi vstupnými časťami bez okien, sled miestností je vypointovaný obývacou miestnosťou s panoramatickým oknom a zakončený spálňou danou bokom od spoločenskej zóny.
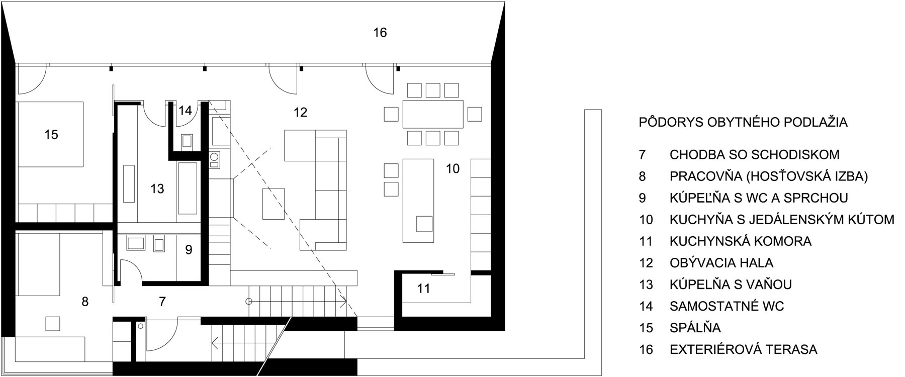
Na prvej výškovej úrovni bol umiestnený vstup vo výraznej žltej nike, za ním zádverie so schodiskom a prístup do suterénu. Ten obsahuje garáž s úložnými priestormi, technickú miestnosť a skladovacie priestory. Druhá úroveň, kde je situovaná pracovňa s príležitostnou funkciou hosťovskej izby a kúpeľňa, má s exteriérom len vizuálne prepojenie prostredníctvom pásového rohového okna. Prístup z interiéru smerom von je opäť až na tretej úrovni, kde za obývacou halou leží na úrovni záhrady veľká terasa. Z tejto časti objektu je pre údržbu prístupná plochá zelená strecha s extenzívnou zeleňou. “Ide o plochú strechu, ktorá z úrovne záhradnej terasy za domom špirálovito stúpa systémom naklonených rovín ponad vnútorné schodiská pri uličnej fasáde do najvyššej strešnej úrovne,“ objasňujú autori návrhu.
Z hľadiska dispozície mal klient požiadavku, aby pracovňa prevádzkovo a zvukovo nerušila ostatné obytné miestnosti. Pri príchode od vstupu sa preto nachádza v záhybe komunikácie, ktorá pokračuje druhým schodiskom až do obytnej haly s kuchynským kútom. Dĺžka spojovacích chodieb spôsobila, že sa v rámci väčšej úžitkovej plochy 204,9 m2 vytvorila dispozícia ,,len“ 3 + kk + G. V tomto rodinnom dome však vzhľadom na funkciu a terén ani nešlo o hľadanie plošného minima, ale skôr optima, ktoré zásadne len pre svoj účel prekračuje priemerné plošné hodnoty.
Okrem plôch robí dispozíciu netradičnou aj orientácia miestností voči slnku. Napríklad na juh smeruje len malé okno z pracovne. Viac ale ani nie je potrebné, spálňa a obývacia hala majú dostatok svetla zo zasklenej západnej fasády. Prirodzené svetlo je cez najväčšiu pobytovú miestnosť distribuované do nižšie položených spojovacích priestorov. Pracovňa s rohovým oknom má špeciálne svetelné podmienky i výhľad – z dvoch strán. Rám okna ohraničuje akoby dve samostatné panorámy, južnú a východnú, čím vzniká zaujímavý architektonický detail.
Dizajnovo architekti vyriešili aj dlhé spojovacie chodby, ktoré si netreba hneď predstaviť ako biele nekonečne dlhé tunely bez nápadu. Pri takýchto chodbách bolo naozaj vhodné vyvážiť prázdnu plochu stien farebným dynamickým motívom. Geometrický vzor sa tiahne naprieč celou stenou namiesto klasickej štvorcovej formy výtvarných diel. Táto úprava umožňuje na prvý pohľad odhadnúť dĺžku chodby, cestu cez chodbu rozkladá na kroky. Dôležitú rolu zohráva aj osvetlenie. V ideálnom prípade by sa mohlo skladať z troch zložiek: z hlavného osvetlenia, z osvetlenia dopadajúceho z vedľajších miestností a z osvetlenia tónovaného. Menej dramaticky, ale rovnako efektívne poslúži aj osvetlenie bodové či postranné v podobe pásového osvetlenia, ako je tomu v dome K2.
Podlhovastý dom či dom v tvare špirály – o úspešnosti oboch týchto konceptov rozhoduje správne vyriešenie príliš dlhých komunikácií. Dom K2 je príkladom vyhovujúcej alternatívy. Má síce dlhé chodby, ale žiadna z nich nebola uzatvorená ako samostatná miestnosť. V otvorenej dispozícii sa komunikácia vlastne stáva radom za sebou idúcich miestností, ktorých veľkosť sa mení podľa funkcie.
Autori: Branislav Hovorka, Martin Paulíny / Paulíny Hovorka Architekti
Spolupráca na tvorbe interiérov: Zuzana Reháková
Lokalita: Banská Bystrica
Návrh, projekt: 2009-2011
Realizácia: 2010-2013
Pozemok: 1086 m2
Úžitková plocha domu: 204,9 m2
Celková plocha domu: 251,6 m2
TEXT: Katarína Vankušová
FOTO: Braňo Hovorka / paulíny hovorka architekti
ZDROJ: Autorská správa





























