Gartenhouse – železobetón a záhrada aj na streche
Balvan, kus nepravidelnej skaly obrastený zeleňou – tak pôsobí nezvyčajný dom od ateliéru X ARCHITEKTEN na prvý pohľad. Je tak prirodzene vložený do prostredia krajiny, že si ho z viacerých pohľadov vôbec nevšimnete. Navyše, architekti kus záhrady, ktorý zobrali z pozemku kvôli stavbe, umiestnili na strechu domu. Je teda dokonale zamaskovaný zeleňou.
Neutrálny materiál nechal prehovoriť prírodu
„Keby sme v tejto záhrade postavili bielu vilu, opticky by sme ju úplne potlačili. Pre nás bolo dôležité vytvoriť čo najužšie prepojenie záhrady a domu. Na železobetóne sme sa s klientom zhodli prakticky okamžite. Vznikla krásna kombinácia neutrálneho s prírodným,“ vysvetľuje architekt David Birgmann výber hlavného materiálu, ktorý určil všetko ostatné.
Čo zobrali, vysadili na streche
Vzácna zhoda s klientom pokračovala aj naďalej, preto projekt vznikal hladko a výsledok je nesmierne zaujímavý. Pre klientovu dcéru s rodinou, ktorá dom obýva, bol dôležitý kontakt s prírodou aj z interiéru.
Z každej miestnosti cítite blízkosť prírody. Architekti sa rozhodli domom ukradnutú časť záhrady zachrániť – vytvorili záhradu na jeho streche. Tak boli schopní vysadiť všetko, čo z pozemku pri výstavbe zobrali.
Záhradný dom má aj „záhradný domček“
Zelený svet na streche je spojený so záhradou na pozemku vonkajším schodiskom. V záhrade sa nachádza aj „záhradný domček“, ktorý vytvoril umelec Sepp Auer ako multifunkčnú sochu.
Celý koncept domu, doslova od vonkajšieho plášťa až po závesovú tyč, realizovali architekti zo spomínaného štúdia, preto je projekt úplne štýlovo čistý. Hlavnú myšlienku vytvorenia nenápadného domu úplne spojeného s prírodou cítiť na každom metri.
Všetko zafungovalo na prvýkrát
David Birgmann tvrdí, že dom je okrem strešnej záhrady celý jeho osobným projektom. Všetko hneď zapasovalo, zafungovalo, každá myšlienka sa páčila aj klientovi, všetko bolo vopred jasné. Architekti i klient boli prekvapení, ako si vzájomne „sadli“, a preto je i výsledok jedinečný.
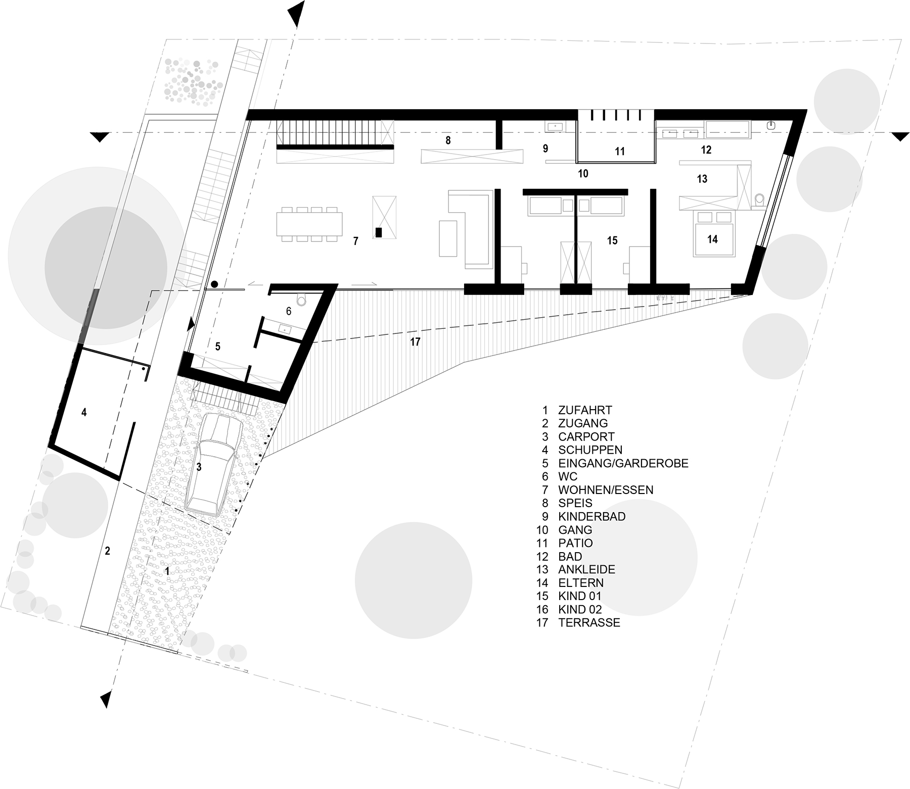
Ako je riešená dispozícia?
Pôdorys nenápadného domu vrátane parkovacieho státia má tvar mierne roztvoreného písmena L, čo umožňuje dostatok súkromia.
V interiéri nájdete spojenú obývaciu miestnosť s jedálňou a kuchyňou, hygienické miestnosti, šatne, dve samostatné izby a rodičovskú spálňu. V suteréne sa nachádza fitness, miestnosť na záľuby domácich, technická miestnosť a sklad.
Gartenhouse v skratke
Architektonický ateliér: X ARCHITEKTEN
Hlavný architekt: Arch. DI David Birgmann
Lokalita: Braunau, Horné Rakúsko
Úžitková plocha: 280 m2
Projekt: 2013
Realizácia: 2014 až 2015
Sabína Zavarská
Foto: David Schreyer




















