Víkendový dom v brezovom háji
Realizácia od Team Green Architects má všetko, o čom sa komukoľvek môže zdať počas pracovných dní v týždni. Dom sa nachádza v malom lesíku, s dvoma exteriérovými posedeniami a po zotmení možno priamo z kúpeľne pozorovať nočnú oblohu.
Hlavný zámer architektov bol naprojektovať stavbu tak, aby prirodzene splynula s okolitou malebnou novozélandskou prírodou.
Svetlo a vnútorná klíma sú regulovateľné v nadväznosti na exteriér. Slnečné zábrany možno upravovať tak, aby vyhoveli požiadavkám užívateľov.
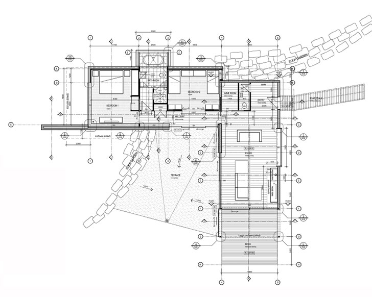
Dispozícia pozostáva z 3 obytných miestností a hygienického zázemia. V prípade potreby sa do izby vedľa hlavnej spálne zmestí až 6 ľudí, návrh počíta s využitím poschodových postelí.
Strešná konštrukcia priamo nad vaňou v spoločnej kúpeľni má presklený otvor, ktorý večer ponúka pohľad priamo na hviezdnu oblohu.
Vstup bol umiestnený z východnej strany. Aj napriek klasickému nenápadnému drevenému obkladu na fasáde možno ľahko rozoznať, že ide o moderný dizajn, o čom svedčí napríklad vystúpený okenný otvor.
Strecha z vlnitého plechu nadväzuje na stavebnú tradíciu okolitých budov na lokálnych farmách.
Cloniace prvky z cédrového dreva majú dvojakú funkciu. Okrem práce so svetlom a slnkom tvoria hranicu medzi krajinou a exteriérovou plochou patriacou k príbytku.
Štedré rozmery presklených plôch cielene smerujú na tie správne strany. Medzi skvosty vo výhľade patrí napríklad vrch Coronet Peak.
Západný pohľad ukazuje odlišnú koncepciu 2 častí. Jedna je moderná, s plochou strechou a zasadením do terénu, kde sa hlavným materiálom stal kameň. Časť so spoločenskou miestnosťou zabieha do brezového porastu, má sedlovú strechu a drevený obklad.
Špeciálnou požiadavkou klientov bol prístup na terasu a lodžiu, a to nielen z veľkej pobytovej miestnosti, ale aj z časti so spálňami.
Terasa sa napoly skrýva v závetrí objemu do písmena ,,L“. Z druhej strany ju vymedzuje oporný múr podopierajúci klesajúci svah od severu.
Všetok materiál, ktorý prichádza do kontaktu s užívateľom, má príjemný drevený povrch. Pri stavbe kamenného múru sa zas dbalo viac na odolnosť.
Postupné prechody z interiéru do exteriéru cez lodžiu a terasu poskytli tomuto víkendovému domu možnosť splynúť s prostredím nielen vizuálne, ale aj prevádzkovo.
Viac na http://inhabitat.com/
TEXT: Katarína Vankušová
FOTO: Team Green Architects























