image 75349 25 v2
Galéria(16)

Rodinný dom v strmom svahu

Rodinný dom Mšeno je dôkazom toho, že stavať možno na takmer akomkoľvek pozemku. Stačí len nájsť správne riešenie. Ako sa to podarilo architektom Jánovi Stemplovi a Janovi Jakubovi Tesařovi, posúďte sami.

01 s t Mseno PEPASTREDA 02
02 s t Mseno PEPASTREDA 03
03 s t Mseno PEPASTREDA 04
04 s t Mseno FOTES 07
05 s t Mseno PEPASTREDA 06
06 s t Mseno FOTES 08
08 s t Mseno FOTES 10
09 s t Mseno FOTES 12

Nádherný výhľad a navyše v pokojnej rezidenčnej štvrti neďaleko centra mesta – na prvý pohľad ideálny pozemok, no napriek tomu prázdny. Aj keď bola cena pozemku nízka, záujemcov odrádzal jeho prudký spád, ktorý neumožňoval výstavbu bežného domu.

Jednoduchý objem stavby je vynesený cez dvoje štvornožia na oceľovom rošte do voľného priestoru.
Jednoduchý objem stavby je vynesený cez dvoje štvornožia na oceľovom rošte do voľného priestoru.

Tento pozemok si nakoniec vyhliadol človek, ktorý má rád výzvy a do nás –architektov – vložil všetku dôveru. Pozemok kúpil bez toho, aby čakal na naše utvrdenie, že bude mať dom bez kompromisov. Klient, majiteľ stavebnej firmy, bol zároveň aj staviteľom. Našu prácu spoznal počas jednej z našich spoločných realizácií, a tak sa z typického trojuholníka klient – staviteľ – architekt stal úžasný dialóg medzi klientom a architektom.

So svahom je rošt prepojený v mieste vstupu.
So svahom je rošt prepojený v mieste vstupu.

Jednoduchý objem stavby je vynesený cez dvoje štvornožia na oceľovom rošte do voľného priestoru. So svahom je rošt prepojený v mieste vstupu. Tieto tri pevné body bez problémov udržia drevostavbu s komfortnou dispozíciou pre typickú rodinu.
Na prvý pohľad efektné riešenie skrýva v sebe aj množstvo efektívnych výhod. Dom sa nachádza v Jizerských horách, kde by sneh (predovšetkým pri roztápaní) pri zapustení domu do svahu prinášal neustále komplikácie. Pomerne jednoduché založenie a úspora hydroizolácie ušetrili množstvo financií, ktoré sa tak mohli použiť na zvyšok stavby.

Z každej spálne je východ na terasu s výhľadom do záhrady, na mesto a úpätie hôr.
Z každej spálne je východ na terasu s výhľadom do záhrady, na mesto a úpätie hôr.

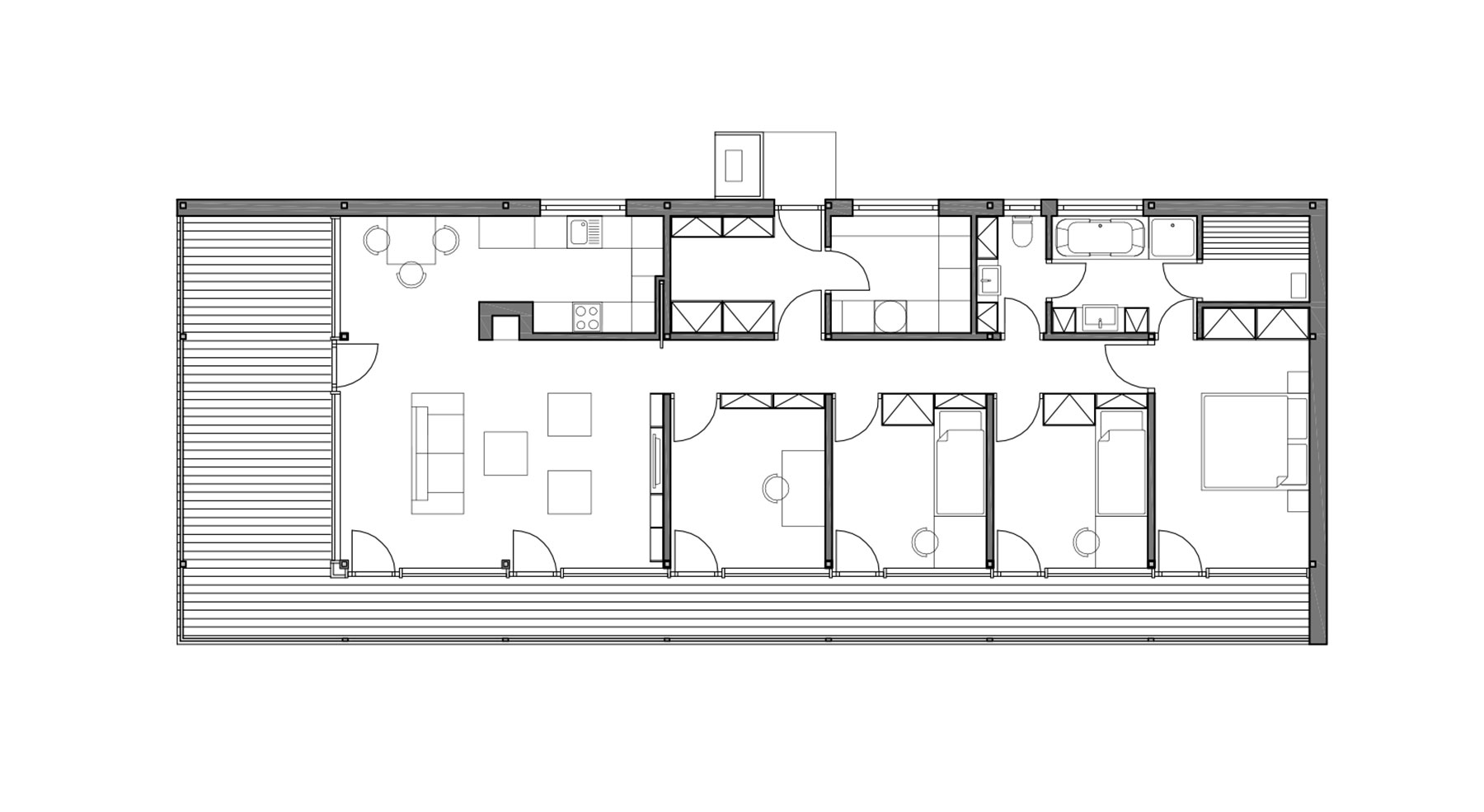
Klientovi sme splnili aj želanie, ktorého sa pri kúpe pozemku už vnútorne vzdal – realizáciu jednopodlažného rodinného domu. A tak sa na jednej úrovni nachádza obývacia izba, jedáleň s kuchyňou, tri spálne, pracovňa, technické zázemie aj kúpeľňa so saunou a samostatným WC. Všetko je bezbariérovo prístupné z cesty pri dome.

Pretiahnutá strecha v lete chráni veľké zasklené plochy pred prehriatím a v zime prepúšťa do domu dostatok slnka. Z každej spálne je východ na terasu s výhľadom do záhrady, na mesto a úpätie hôr. Koruny stromov a terasa dokonalo vynahradili priamy vstup do záhrady, ktorá v tomto prípade pripomína čiernu zjazdovku. Ak si však chcete dom obzrieť z tých najatraktívnejších perspektív, musíte najskôr zdolať túto zjazdovku – či už peši, alebo na lyžiach.

Pretiahnutá strecha v lete chráni veľké zasklené plochy pred prehriatím a v zime prepúšťa do domu dostatok slnka.
Pretiahnutá strecha v lete chráni veľké zasklené plochy pred prehriatím a v zime prepúšťa do domu dostatok slnka.

Koruny stromov a terasa dokonalo vynahradili priamy vstup do záhrady, ktorá v tomto prípade pripomína čiernu zjazdovku.
Koruny stromov a terasa dokonalo vynahradili priamy vstup do záhrady, ktorá v tomto prípade pripomína čiernu zjazdovku.

Na jednej úrovni sa tak nachádza obývacia izba, jedáleň s kuchyňou, tri spálne, pracovňa, technické zázemie...
Na jednej úrovni sa tak nachádza obývacia izba, jedáleň s kuchyňou, tri spálne, pracovňa, technické zázemie…

... kúpeľňa so saunou...
… kúpeľňa so saunou…

... a samostatným WC.
… a samostatným WC.

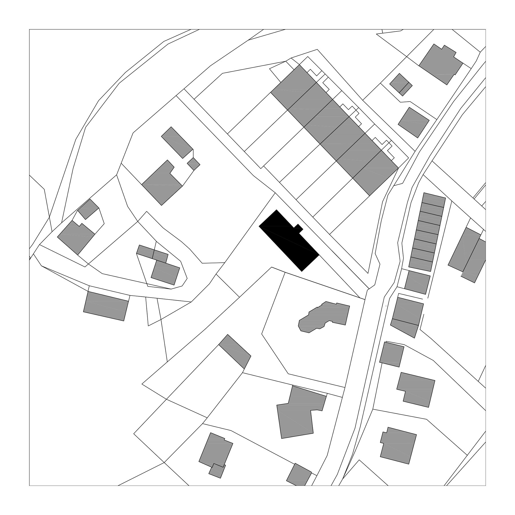
Situácia
Situácia

Pôdorysné riešenie
Pôdorysné riešenie

Rez
Rez

Miesto: Jablonec nad Nisou-Mšeno, Česká republika
Architekt: Stempel & Tesar architekti – Ján Stempel, Jan Jakub Tesař
Klient: súkromná osoba
Dodávateľ: stavebná firma Hájek, s. r. o.
Projekt a výstavba: 2011 až 2013
Pozemok: 818 m2
Zastavaná plocha: 178 m2
Úžitková plocha: 113 m2 + 41 m2 (terasa)
Celkový objem: 735 m3

TEXT: Stempel & Tesar architekti, wad
FOTO: FOTES, Pepa Středa