Prvá škola s drevenou nosnou konštrukciou na Slovensku
Výhody dreva ako stavebného materiálu všeobecne a tiež ako stavebného materiálu nosných konštrukcií stavieb sú nesporné. Pevnostné vlastnosti sú porovnateľné s bežne používanými betónmi, pričom hustota dreva je päťnásobne menšia.
Vynikajúce tepelnoizolačné vlastnosti sú ďalšou prednosťou materiálu. V neposlednom rade treba spomenúť energeticky najmenej náročnú a ekologickú výrobu. Podobným témam bolo v máji 2014 venované podujatie Woodbox & Wodddays 2014 v Bratislave, na ktorom sa organizátori snažili poukázať na výhody dreva ako stavebného materiálu v nosných i nenosných konštrukciách na konkrétnych príkladoch stavieb zo zahraničia. Slovensko ako krajina s nespornou výhodou dostatku domácej dorastajúcej suroviny sa týmito podujatiami zapojilo do stále rastúcich európskych a svetových trendov efektívnejšieho využívania obnoviteľných surovín.
Je potešiteľné, že skeptická slovenská verejnosť začína postupne dôverovať stavbám z dreva. Rastúci záujem bol doteraz pozorovaný iba vo výstavbe rodinných domov a športových stavieb. Slovenské portfólio stavieb z dreva je od septembra tohto roku obohatené prvou školou s drevenou nosnou konštrukciou. Prístavba 1. Súkromného gymnázia na Bajkalskej ulici v Bratislave je prvou stavbou na Slovensku, ktorá má celú nosnú konštrukciu z masívneho dreva. Dvojpodlažný objekt s úžitkovou plochou 520 m2 je jedinečný nielen z hľadiska použitého materiálu a účelu, ale najmä z pohľadu rýchlosti výstavby. Od vykopania základov po kolaudáciu stavby uplynulo iba 70 dní…
Architektonický návrh
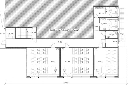
Projekt architektúry bol vypracovaný ateliérom Raum3 s.r.o. pod vedením architekta Ing. arch. Marcela Dzurillu. Areál školy tvorí dnes hlavný objekt z Bajkalskej ulice, jedáleň a dom školníka orientovaný pozdĺž ulice Priekopy a objekt telocvične. Objekt je umiestnený na spevnenej ploche školského dvora. Prístavba má jednoduchý tvar s plochou strechou. Fasáda je navrhnutá s použitím minerálnej vlny a tenkovrstvovej omietky. Objekt má slúžiť hlavne na poobedné aktivity pre prvý stupeň základnej školy. Do objektu sa vstupuje priamo zo školského dvora alebo z chodby vedúcej z telocvične (Obr. 1). Pri tomto uzle je navrhnuté vertikálne komunikačné jadro – schodisko. Na prvom podlaží sú navrhnuté tri triedy, technické a hygienické zázemie pre toto podlažie. Na druhom podlaží sa nachádzajú ďalšie tri triedy, kabinet a hygienické zázemie pre toto podlažie. Triedy majú rovnaké rozmery 7 x 7,8 m s výnimkou jednej na prízemí, ktorá je o 2 m menšia z dôvodu požiarnej únikovej cesty (Obr. 2). Všetky triedy sú orientované na juhozápad, čím sú zaistené tepelné zisky zo slnka v zimnom období. Prehrievaniu v jarnom a letnom období budú brániť vonkajšie žalúzie na fasáde.
1 – Pôdorys prízemia
2 – Pohľad na objekt dva týždne pred dokončením a v čase slávnostného otvorenia školského roku
Drevená nosná konštrukcia
Autori článku boli projektantmi nosnej konštrukcie objektu a najmä v začiatkoch montáže pravidelne konzultovali na stavbe. Potvrdila sa tak výhoda autorského dozoru a montážne práce boli plynulé.
Objekt má stenový nosný systém pozostávajúci z panelov z krížom lepeného dreva. Nosná konštrukcia bola v prvom kroku navrhovaná z muriva. Krátko pred začatím stavby sa zmenila koncepcia na drevenú konštrukciu z prefabrikovaných prvkov z krížom lepeného dreva a lepeného lamelového dreva. Dôvodom bol čas výstavby. Projekčné práce na nosnej konštrukcii sa začali v máji 2015 a objekt bolo potrebné odovzdať do prevádzky v septembri toho istého roku. Navrhnuté boli 5-vrstvové panely s hrúbkou 100 mm. Najviac namáhaný panel, podopierajúci stropnú konštrukciu s rozpätím 7 m, má hrúbku 120 mm. Steny, ktoré oddeľujú jednotlivé triedy, boli z dôvodu akustických požiadaviek zdvojené.
3 – Konštrukcia z krížom lepeného a lepeného lamelového dreva
Väčšina panelov bola navrhnutá s pohľadovou kvalitou. Priznané panely sú v triedach a komunikačných priestoroch. Rozmery priznaných drevených nosných prvkov boli navrhnuté na požiarne zaťaženie s trvaním 30 minút. Čelná stena má 6 veľkých okien so šírkou 6 m. Pre elimináciu veľkých priehybov bolo potrebné zakomponovať podpery nadokenných prekladov do polí okien. Stĺpy mali byť úzke, aby nebránili otváraniu okien. Boli preto navrhnuté z oceľových rúrok s obdĺžnikovým prierezom. Oceľové stĺpy boli opatrené protipožiarnym náterom.
4 – Montáž strechy a konečný vzhľad z interiéru
Stropná konštrukcia s rozpätím 7 m je navrhnutá z lepeného lamelového dreva. Prefabrikáty typu Profideck majú výšku 260 mm a šírku 625 mm. Elementy sa navzájom spájajú na pero a drážku. Najdlhší stropný element má dĺžku 10 m. Hrúbka stropu súvisí s požiadavkami medzného stavu používateľnosti, hlavne kmitania stropnej konštrukcie. Strešná konštrukcia má hrúbku 200 mm, keďže nebude vystavená dynamickým účinkom ako strop. Vykonzolovaná časť poschodia pri únikovom schodisku je podopretá lepenými lamelovými prievlakmi a šikmými stĺpmi v tvare písmena V. Stropné prvky sú v tejto časti orientované v pozdĺžnom smere, teda v smere vyloženia poschodia.
5 – Pripojenie šikmých stĺpov v mieste vyloženia poschodia
Architektonický návrh uvažoval o niekoľkých priznaných prípojoch. Preto bolo potrebné pri návrhu spojov skĺbiť statické a konštrukčné požiadavky s estetickým vzhľadom. Vzájomné prepojenie panelov bolo navrhnuté tak, aby spojovacie prostriedky zostali z pohľadových strán neviditeľné. Prípoj bol realizovaný použitím skrutiek do dreva z nepohľadovej strany panelov. Stenové panely sú kotvené na účinky šmykových aj ťahových síl do vodorovných konštrukcií. K betónovým základom sú kotvené pomocou kovových uholníkov, lepených a rozperných kotiev. Všetky kotvy stien sú navrhnuté tak, aby boli skryté do konštrukcií podláh. V prípade stien poschodia je ťahové kotvenie zabezpečené skupinou celozávitových skrutiek do dreva pri okraji každého elementu. Šmykové kotvenie je zabezpečené rovnako uholníkmi s použitím klincov.
Objekt školy má dve schodiská, jedno hlavné interiérové a jedno vonkajšie únikové. Vnútorné schodisko je tvorené dvoma schodiskovými ramenami a jednou medzipodestou. Medzipodesta je podopieraná dvoma lepenými lamelovými nosníkmi, na ktorých je položená podestová doska z masívneho dreva. Nosnú konštrukciu schodiskových ramien tvoria schodnice z lepeného lamelového dreva. Tie sú pripájané k podestovému nosníku a k stropnému prvku prostredníctvom skrytých hliníkových profilov, skrutkovaných na podestový a stropný nosník a ku schodniciam pripojeným pomocou samorezných kolíkov. Vonkajšie únikové schodisko je oceľové, priame s jednou medzipodestou. Schodisko sa nachádza v takej časti objektu, kde nebol prístup zdvíhacej techniky. Konštrukciu schodiska bolo potrebné navrhnúť tak, aby ju bolo možné montovať bez použitia žeriavu.
Stavebné práce sa začali koncom júna 2015. Základové konštrukcie a betónová podkladová doska boli dokončené v priebehu jedného mesiaca. Montáž drevenej konštrukcie sa začala na začiatku júla 2015. Prefabrikáty priebežne dopravilo päť kamiónov. Na celú stavbu bolo použitých asi 224 m3 dreva (80 m3 krížom lepeného dreva, 130 m3 fošňových stropných prvkov typu Profideck a 14 m3 lepeného lamelového dreva). Nosná konštrukcia bola hotová za 4 týždne a mohli nastúpiť profesie technických zariadení, tepelných izolácií, hydroizolácií a dokončovacích prác. Kolaudácia stavby prebehla 27. augusta a otvorenie nového školského roka mohlo prebiehať v nových priestoroch.
Drevo v mestách
Použitie dreva v stavbách vo veľkých mestách zatiaľ nie je štandardom ani v západnej Európe. Spolkové krajiny Nemecka a Rakúska majú vlastné predpisy, ktoré drevu neboli donedávna naklonené. Situácia sa však mení naozaj rýchlo – napríklad projekt bytového domu v pasívnom štandarde v Mníchove v mestskej časti Schwabing bol v roku 2014 najskôr odmietnutý. Je to pridrahé a veľmi náročné – to boli protiargumenty. Projektant vypracoval porovnanie dvoch stavebných systémov – masívnej stavby z minerálnych materiálov a stavby z dreva.
A začal vysvetľovať a presviedčať: rozhodujúcou sa stala rýchlosť výstavby – prefabrikované drevené elementy umožňovali extrémne skrátenie výstavby, takže obyvatelia susedných objektov boli zaťažovaní stavebným ruchom výrazne kratšie, ako by to bolo pri inom spôsobe výstavby. Nedostatok priestoru v okolí stavby bol ďalším dôvodom, prečo bola výstavba z drevených prefabrikátov zhotovených vo výrobni výhodnejšia. Prefabrikáty boli dovážané a hneď montované – podobne, ako to bolo pri predstavenom projekte školy. Mesto Mníchov vyhlásilo nedávno súťaž na stavbu niekoľkých škôl. Jednou z podmienok súťaže je, že budú postavené z dreva. Z ekologického materiálu, ktorého má aj Slovensko dostatok a ktorý je obnoviteľnou surovinou…
Zhrnutie
Prístavba školy je jedinečným príkladom výhod stavania z dreva. Výstavba je rýchla, drevo je okamžite nosné, takže nevznikajú „prestoje“ ako pri niektorých iných materiáloch. V neposlednom rade musíme vyzdvihnúť celkový estetický dojem priznaných plôch z prírodného materiálu – dreva. Vďaka príkladnej spolupráci a nadšeniu všetkých zúčastnených (vedenie školy, projektant, zhotoviteľ stavby a stavebný úrad) sa počas trvania letných prázdnin podarilo postaviť objekt, ktorý, dúfame, bude inšpiratívny nielen pre študentov školy.
Hlavný projektant: Ing. arch. Marcel Dzurilla
Statika a výrobná dokumentácia: StructureSS s. r.o., Stupava
Dodávateľ dreva: Mayr-Melnhof Holz Holding AG Austria
Spojovací materiál: Rotho Blaas GmbH Italia, Bova Březnice
Montáž: Tectum Novum a.s., Zemné
Text: Kristián Sógel, Jaroslav Sandanus
Foto: Kristián Sógel, Peter Jurkovič
O drevodomoch viac aj v sekcii drevostavby



























