Pôvabný dom z pohľadových drevených panelov
Medzi európske krajiny, ktoré sú známe silnou tradíciou stavania z dreva, patrí bez pochýb aj Švajčiarsko. Priznanie švajčiarskeho architekta Pascala Flammera, že pri projekte domu prezývaného Stöckli sa po prvý raz dostal do kontaktu s drevostavbou, znie preto takmer neuveriteľne. V skutočnosti je neuveriteľný a pôsobivý aj spôsob, akým dokázal architekt pri vytvorení stavby využiť danosti a prednosti pomerne nového moderného materiálu – masívnych drevených panelov z krížom lepeného dreva.
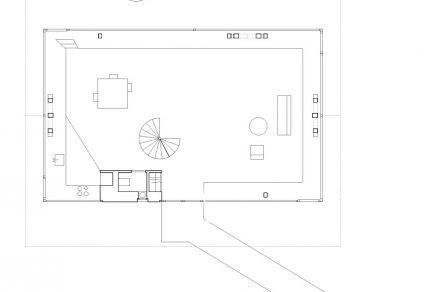
Dom postavený v Balsthali podľa návrhu švajčiarskeho architekta Pascala Flammera s použitím krížom lepených drevených panelov (NOVATOP) zaujme na prvý pohľad jednoduchosťou: obdĺžnikový pôdorys, sedlová strecha, skladaná strešná krytina. Na druhý pohľad a po nahliadnutí do interiéru sa návštevníkovi odhalí neobyčajnosť domu v podobe pôsobivého vnútorného priestoru. Celistvý koncept stvárnenia interiéru umocňuje čaro všadeprítomného dreva. Vycibrené detaily, aké sa nevidia každý deň, podčiarkujú neokázalú noblesu bravúrne prostej architektúry.
Aj keď má Pascal Flammer za sebou celý rad realizácií ocenených v prestížnych architektonických súťažiach, dom označovaný Stöckli bol z určitého hľadiska jeho premiérou – drevostavbami sa totiž švajčiarsky architekt doposiaľ nikdy nezaoberal. Nápad vytvoriť dom, ktorého plášť by bol drevený a rovnaký druh dreva by hral prím aj v interiéri, bol spontánny: „Myšlienka sa mi prosto zrodila v hlave,“ tvrdí Flammer.
Dom Stöckli je síce čiastočne podpivničený, väčšia časť však stojí na betónovej základovej doske, zapustenej pod úroveň terénu. Hĺbka zapustenia nie je náhodná – architekt ju stanovil presne tak, aby bola kuchynská pracovná doska spolu so zabudovaným nábytkom pozdĺž okien v jednej rovine so záhradou. „Miestnosť sa takto stáva jednotným priestorom, navyše – vďaka optickej komunikácii s okolím – veľmi veľkorysým,“ dodáva architekt.
Masívne panely z krížom vrstveného dreva sú súčasťou sendvičového plášťa a zároveň slúžia ako finálna interiérová vrstva, pretože architekt siahol po CLT paneloch NOVATOP, ktoré sú špecifické vyhotovením v interiérovej pohľadovej kvalite. Pre niekoho môže byť dosť neobvyklé obklopiť sa namiesto bielych stien drevom, Pascal Flammer však išiel ešte ďalej: rovnaký drevený plošný materiál použil aj na opláštenie korpusu kuchynskej linky, aj na výrobu vstavaného nábytku, dverí a políc. A úprava povrchu? Iba niekoľkonásobné napustenie prírodným olejom s bielym pigmentom. „V minulosti sa to robilo takto,“ vysvetľuje Flammer. „Olejované drevo vyzerá pekne a zachováva si svoj prirodzený vzhľad. Žiadne problémy pri používaní dosiaľ neboli.“
Výrazné výplne fasádnych otvorov – s výnimkou otváracích častí – nie sú zaťažené žiadnymi rámami. Možno aj preto vyzerajú byť väčšie, ako v skutočnosti sú. Žiadna zo sklenených tabúľ nemá viac než 8 m2 a dĺžka žiadnej nepresiahla 6 m, takže aj manipulácia s výplňami bola pomerne ľahká.
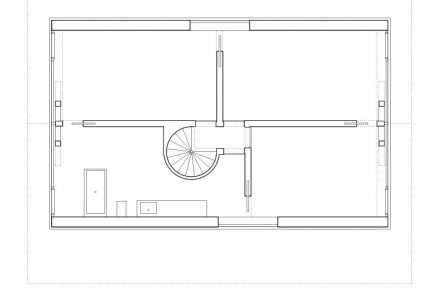
Pravouhlosť projektu narúšajú dva kruhové okenné otvory umiestnené v štítových stenách, oproti nim sa posúvajú dvere medzi dvomi susediacimi miestnosťami. Na kruhový tvar nadväzuje aj točité schodisko, ktoré spája všetky tri podlažia. „Nie je to nepraktické?“ pýtame sa Pascala. „Čo to znamená praktické? Myslím, že extrémne hodnotenie ,praktickostiʻ sa votrelo do civilizácie a je skutočnou príčinou toho, prečo je väčšina novo vznikajúcich domov nudná, šedivá a jednoducho škaredá,“ uzatvára.
Súkromný dom, Balsthal, Švajčiarsko
Architekt: Pascal Flammer
Obdobie vzniku: 2007 – 2012
Materiály: drevo, CLT panely NOVATOP, sklo
Text: Ing. arch. Ľubica Fábri, ARCHA matériO
Foto: Ioana Marinescu, archív NOVATOP
















