Najväčšia drevostavba v Spojených štátoch
Staviate výškovú budovu? Zabudnite na oceľ a sklo. Postavte ju z dreva. Podľa Michaela Greena je to nie len možné, ale aj bezpečné. Administratívna budova T3 je v súčasnosti najväčšou modernou dokončenou drevostavbou v Spojených štátoch.
Vo vychytenej štvrti New Loop dostavali koncom minulého roka magnet pre tzv. startupy. Táto mestská časť plná historických skladových priestorov má príjemnú mierku a je len pár krokov od centra mesta. Kancelárska budova T3 – timber, transit, technology stojí hneď vedľa vlakovej zastávky a minneapoliského „skywalk” chodníka (transit), pýši sa vymoženosťami ako celoplošný zosilňovač mobilného signálu (technology). A je, ako sme spomenuli, celá z dreva. Teda, takmer. Jadro a dve spodné podlažia sú železobetónové.
Jednoduché členenie fasády korešponduje s dreveným rastrom interiéru.
Nízke emisie a dobrý investičný zámer
Jej tvorcami sú vancouverskí architekti zo štúdia Michael Green Architects, ktorí výškové budovy z dreva (mass timber) propagujú už roky. Od Michaela Greena sa napríklad dozviete, že na výstavbu T3 bolo použitých zhruba 5 100 m3 dreva. Znie to ako vysoké číslo? Ale nie je.
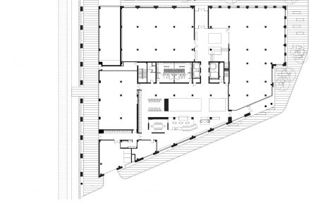
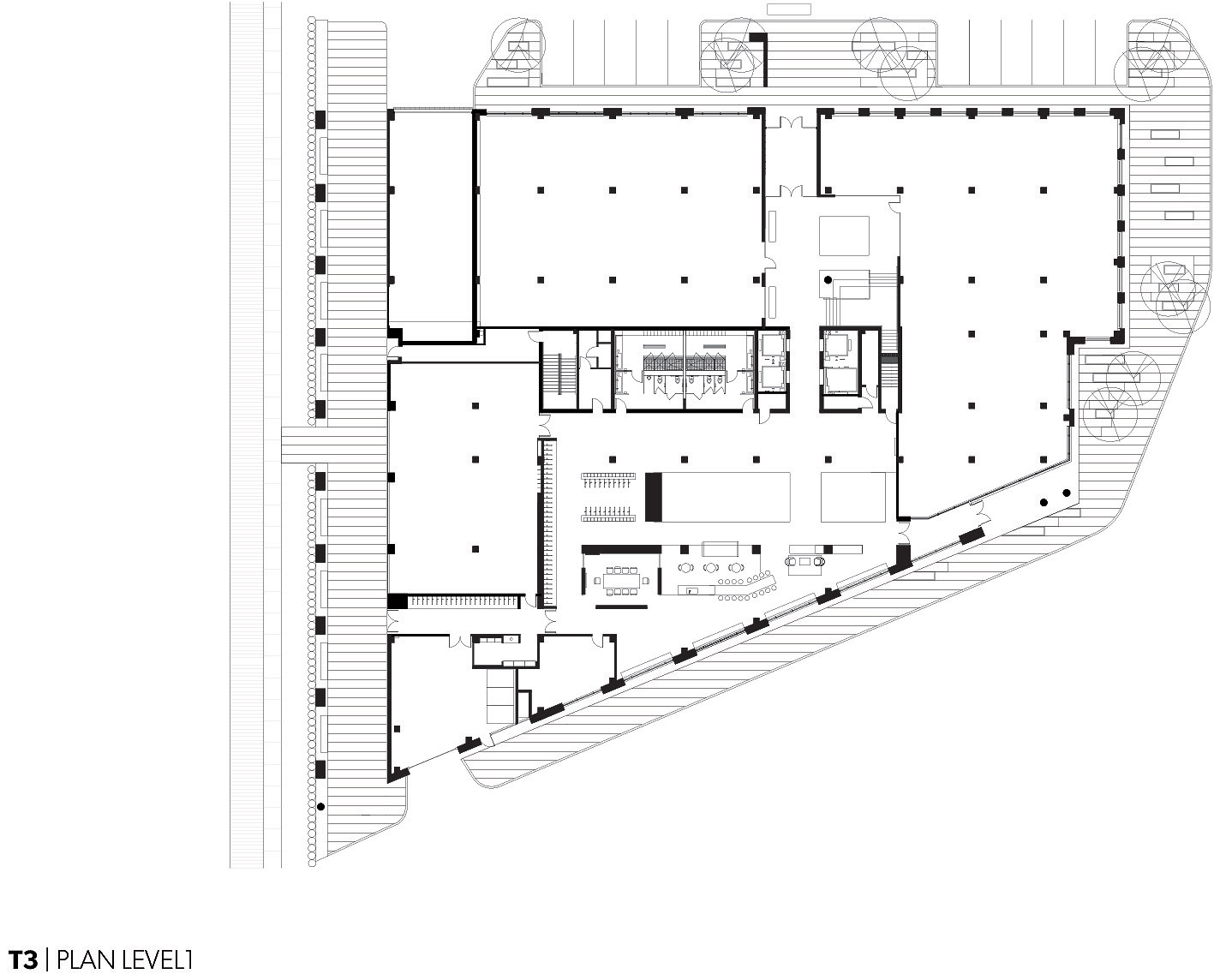
Pôdorys prízemia so vstupom na každej fasáde
V lesoch USA a Kanady vyrastie tento objem dreva za 15 minút. Navyše, počas života budovy uchráni materiál atmosféru od 3 200 t CO2. A montovaná drevená časť bola postavená v priebehu desiatich týždňov. Budova má, samozrejme, aj LEED certifikát – ale jej podstata tkvie v inom. Developeri chceli pre užívateľov vytvoriť moderné, no príjemné miesto na prácu s dostatkom slnečného svetla a neformálnou atmosférou.
Pôdorys typického podlažia s komunikačným jadrom uprostred
Podmanivé priestory pre človeka urbánneho
Vyšlo to. Dnes „té trojku“ volajú „naša úplne nová vintage budova“. Fasáda z cortenových panelov farebne ladí s okolitými tehlovými skladmi. Je prostá, miestami strategicky podsvietená. Jediný rozšafnejší prvok je nad hlavným vstupom – a aj to sa musíte zapozerať, aby ste si na zastrešení všimli nepravidelne roztrúsené svietidlá. Ide o to, čo je vnútri. Na prízemí vás víta lobby a kaviareň, nájdete tu vstup do podzemnej garáže, šatňu aj interiérový systém na odkladanie bicyklov. Nechýbajú priestory na sociálne aktivity či fitness. Na streche vytvorili architekti zelenú záhradu s prístreškom a možnosťou grilovania.
Vstupná hala s trefnou tapetou s motívom lesa
Spoločné zóny v kancelárskych priestoroch architekti znížili použitím rastra drevených lamiel. V otvorenom pôdoryse z rovnakých drevených lamiel vytvorili komunikačné „boxy“ s čalúnenými lavicami. Stropy sú v otvorených priestoroch vysoké až 3,4 m, no vďaka charakteru materiálu a prekladom to ani nepostrehnete. Každé kancelárske podlažie je zaliate svetlom. Hluk a chlad pohlcujú konštrukčné prvky z hrejivého smrekového a borovicového dreva. Cez deň odrážajú teplé svetlo z exteriéru, v noci majú, naopak, žiariť zvnútra von.
Prívetivé spoločné priestory pre budúcich zamestnancov
Láska na prvý dotyk
Ako sa budove, navrhnutej, aby pritiahla a udržala náročných mladých pracovníkov, darí? Je už takmer obsadená. Podľa slov developera záujemcov o kancelárske priestory budova T3 presvedčila v momente, keď si na ňu mohli zvnútra „siahnuť“. Zlatý LEED je dôležitý, ale drevo je drevo.
![]() |
| Diagram skladby podlažia s použitím NLT |
![]() |
| Fasádne prvky z cortenu na drevenej konštrukcii |
T3 Minneapolis
Miesto: Minnesota, USA
Architekti: MGA Architects
Lokálny architekt: DLR Group
Investor: Hines
Realizácia: 2016
Hrubá podlahová plocha: 22 300 m2
Stavebný materiál: NLT (nail-laminated timber)
Počet nadzemných podlaží: 7
Počet parkovacích miest: 65
Certifikát: LEED Gold
Budova T3 ohraničená železnicou a nadjazdom
MINNEAPOLIS
TEXT: KORINA KRCHNIAKOVÁ,
FOTO: EMA PETER,
PODKLADY A DOKUMENTÁCIA: MGA ARCHITECTURE, V2COM
Článok bol uverejnený v časopise ASB 6-7/2017.




















