Montovaný dom
Cieľavedomosť a jasná predstava o budúcom bývaní symbolizujú zrod tohto dreveného domu pre štvorčlennú rodinu. Aj u nás sa už pomaly začínajú objavovať architektonické „celebrity“, ktoré investori vyhľadávajú pre ich nezameniteľný rukopis, len máloktorý stavebník si však trúfne priviesť si vybraného architekta zo zahraničia. V tomto prípade sa tak stalo a ani jedna strana svoje rozhodnutie neoľutovala.
„Páčia sa nám drevené domy, najmä pre tú ich atmosféru vo vnútri. Pôvodne sme dokonca uvažovali o zrube,“ opisuje zrod projektu majiteľka, „kvôli tomu sme sa ‚pozvali‘ aj na návštevu k známemu hercovi, ktorý zrub vlastní. Časom sme však od zámeru upustili, zostali sme verní iba základnej myšlienke – dom by mal byť z dreva.“ Do budúcej podoby domu totiž výrazne prehovoril pozemok.
„Kúpili sme parcelu, pôvodne bola posledná v rade plánovanej výstavby v malej obci na kraji veľkomesta. I keď susedia v tom čase ešte stavať ani nezačali, bolo jasné, že zrub sem rozhodne nepatrí,“ potvrdzuje majiteľka. Mierne svahovitý pozemok predurčil orientáciu stavby, situovanie parcely pozdĺž ulice zase jej hmotu. „Chceli sme záhradu využívať v čo najväčšej možnej miere. Preto sme smerom do ulice situovali len minimum okien, prístrešok pre autá a hlavný vstup, dom je otvorený do záhrady.“ Samotná stavba tak mala poskytovať súkromie nielen pre život vo vnútri, ale aj kryť chrbát dianiu v záhrade.

Škatuľa od topánok?
„Dom nemal byť nikdy výstredný, nemal vyčnievať ani slúžiť egu – či už nášmu, alebo architekta. Mal byť drevený, svetlý, funkčný, príjemný. Práve fascinácia z návštevy západného Rakúska, kde je podobných krabíc od topánok veľké množstvo a ktoré, pre mnohých prekvapivo, harmonizujú so starými vidieckymi domami, nás presvedčila o správnosti výberu architekta. Každá tá škatuľa je iná a každá má na to svoj dôvod. Kvalitu bývania však majú spoločnú, a práve tú sme chceli dosiahnuť aj my,“ dodáva investor.

Montovaná drevostavba

Dom sa rád hlási k označeniu energeticky úsporná drevostavba. Plní stanovené kritériá, avšak zámerne opúšťa niekedy až dogmatické predpisy nízkoenergetických či pasívnych domov. Majitelia sa rozhodli okrem samotnej konštrukcie staviť na ekologickú kartu aj v otázke ďalších technických riešení. Dažďová voda zachytávaná v nádrži sa pomocou čerpadla vracia späť do vnútorného obehu a slúži ako úžitková (najmä na splachovanie). Na fotografiách budete len ťažko hľadať pás slnečných kolektorov tiahnucich sa po celej dĺžke strechy, ktoré sa využívajú nielen na ohrev vody, ale i na prikurovanie v zimných mesiacoch.
Skutočným zdrojom tepla je tu kotol na drevené peletky. Ako pri každej (stále ešte) netradičnej technológii, aj tu chvíľu trvalo, kým domáci objavili nastavenie, ktoré prináša požadovanú tepelnú pohodu: „Je to trošku alchýmia. Musíte vedieť, čo ako nastaviť, kde pridať, kde ubrať… po dvoch zimách sme hádam objavili optimálne riešenie,“ potvrdzuje majiteľ. A dodáva možno prekvapivý poznatok zo života rodiny v dome s alternatívnym vykurovaním: „Najťažšie obdobie nie je prekvapujúco zima, ale jar a jeseň. V zime je váš organizmus ‚nastavený‘ na zmenu klímy, aj sa lepšie obliekate. Prechodné obdobia a výkyvy počasia predstavujú najväčšiu záťaž tak pre organizmus, ako aj pre vykurovaciu alchýmiu.“
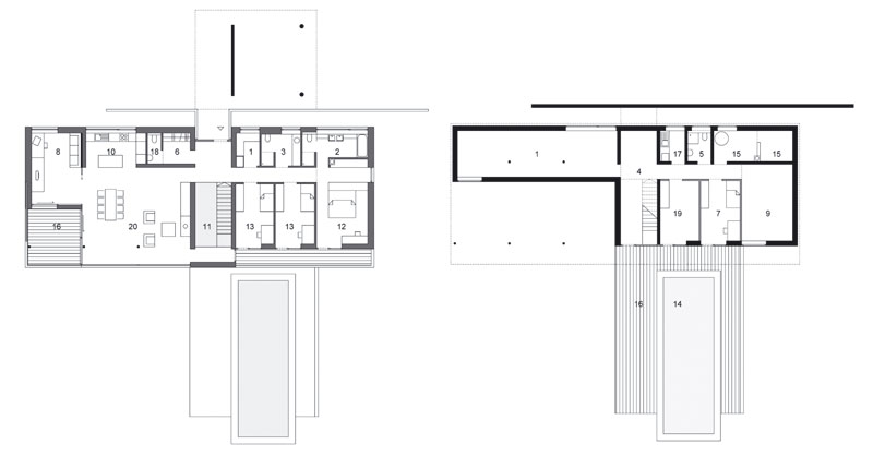
Pôdorys 2. NP a 1. NP
Legenda:
1 – úložný priestor; 2 – kúpeľňa rodičov; 3 – kúpeľňa detí; 4 – hala; 5 – hosťovská kúpeľňa/WC; 6 – šatník; 7 – hosťovská izba; 8 – pracovňa; 9 – dielňa; 10 – kuchyňa; 11 – schodisko; 12 – spálňa; 13 – detská izba; 14 – bazén; 15 – technická miestnosť; 16 – terasa; 17 – práčovňa; 18 – WC; 19 – hospodárska miestnosť; 20 – obývacia izba, jedáleň

Počas našej takmer letnej návštevy v dome panoval príjemný chládok. Chýbala vôňa. Ak od drevostavby čakáte charakteristickú vôňu dreva na každom kroku, musíme vás sklamať. Panely sú ukryté pod sadrokartónom, stropy zakryté podhľadmi z rovnakého materiálu. Napriek tomu sa pocit ľahkosti a organickosti nestratil – aj vďaka otvorenej dispozícii obývacej časti, už spomenutej terase, dreveným rámom okien a drevenej masívnej podlahe. Ďalšie dispozície predurčila funkcia – dve detské izby, rodičovská spálňa, kúpeľne „hore“, zázemie a ekologické srdce domu na prízemí. Interiér ako taký vrátane výberu nábytku je dielom investorov, predovšetkým domácej panej.
Architekt Dietrich jej cit pre spojenie starého a nového, často s prekvapivým využitím starých prvkov v novej funkcii, iba oceňuje. Z fotografií okolo si môžete urobiť obrázok sami – či už ide o priam ľudovou architektúrou inšpirované „zápecie“, renovované kreslá z minulého storočia, alebo dizajnový luster Inga Maurera, to všetko ladí dohromady – nenásilne, obyčajne, akosi samozrejme.
Angažovanie zahraničného architekta sa teda môže zdať ako zbytočný luxus. Navyše, keď v tomto prípade bolo treba do projektu zasvätiť aj domáceho kolegu Josefa Smolu, ktorý sa podieľal na projektovej a inžinierskej činnosti. Majiteľ si však za svojím rozhodnutím stojí: „Čo sa nákladov týka, dom stál rovnako ako priestorovo porovnateľné stavby budované klasickou technológiou z domácich zdrojov. Navyše, subdodávatelia aj generálny dodávateľ, boli zo Slovenska. Akurát jedno nemilé prekvapenie som zažil pri ďalších objednávkach – často sa zariadenie privezené priamo od zahraničnej firmy vyplatí viac než ekvivalent vyrobený či predávaný u nás doma.“
Úsporný drevený dom tak môže slúžiť ako dôkaz, že hranice medzi krajinami sa aj v individuálnej architektúre stierajú. A navyše potvrdzuje, že jedinou rakúskou inšpiráciou pre domácich staviteľov nemusia byť ozdobné balustrády a rozkvitnuté muškáty v oknách, ktoré tak radi opakujeme v našich podmienkach.
![]() |
![]() |
Matej Šišolák
Foto: Dano Veselský














