Moderná drevostavba: Penzión Vinohrady
Verejné drevostavby pribúdajú na Slovensku veľmi pomaly. V lete minulého roka štatistiku vylepšil sympatický Penzión Vinohrady v Jasovej pri Nových Zámkoch. Okrem nesporných estetických a funkčných kvalít je príkladným príspevkom na tému udržateľnosti, ekologického uvažovania a zhodnocovania miestnych zdrojov.
Penzión Vinohrady postavili na miernych svahoch Podunajskej pahorkatiny medzi sadmi a vinohradmi v lete roku 2014 ako prezentačný a reprezentačný objekt firmy Vinohrady Jasová, s. r. o. Zároveň sa však využíva na školiace podujatia a takisto na rekreačné účely či ako zázemie pri poľovačkách. Nosnou myšlienkou projektu okrem iného bolo využitie miestnych zdrojov, ktoré vznikajú ako druhotná surovina pri poľnohospodárskej činnosti. Časť investícií na výstavbu čerpal investor z eurofondov na regionálny rozvoj podnikania – penzión a súvisiace aktivity prispievajú k zviditeľneniu celého regiónu.
Hodovňa v podzemí
V tvarosloví a konštrukcii objektu sa odzrkadlila túžba investora po stavbe evokujúcej hrad a záujem architekta popasovať sa s návrhom drevostavby. V koncepte objemu architekt zároveň umne reagoval aj na požiadavky vyplývajúce z funkcie a daností terénu. „Prečo drevostavba? Mal som pocit, že by to malo vyzerať ako šopa a šopy sú drevené. Navyše som chcel vyskúšať drevostavbu a investor s tým nemal problém,“ hovorí architekt Jaroslav Pavle. Vrchnú časť stavby, konštruovanú ako drevostavbu, osadil na mohutnejšiu kamennú základňu, ktorou preklenul svahovitosť terénu, podvihol stavbu nad terén (dojem „hradu“) a vytvoril vhodné klimatické podmienky na fungovanie skladových priestorov na mäso, ovocie, zeleninu a víno umiestnených na 1. PP. Na sklady nadväzuje spoločenská miestnosť, nazývaná hodovňa, s typickou atmosférou pivníc na neformálne spoločenské stretnutia. Pred vstupom do hodovne sa nachádza spodný vestibul s vyhrievanou lavicou pre poľovníkov (zimné lovy). Súčasťou 1. PP je aj kotolňa, v ktorej sa využíva – spaľuje – drevný odpad z miestnych sadov a vinohradov. Horná dvojpodlažná časť objektu, konštruovaná ako drevostavba, skutočne pripomína šopu – šikmou strechou a motívom posuvných tieniacich okeníc na západnej fasáde. Prízemie určené na spoločenské stretnutia a oddych (vrátane terasy s vonkajším bazénom) orientoval architekt logicky na juh. Veľké zasklenia, tienené sústavou pergol, ktoré súčasne akcentujú spoločenský trakt penziónu, umožňujú výhľady na Podunajskú pahorkatinu.
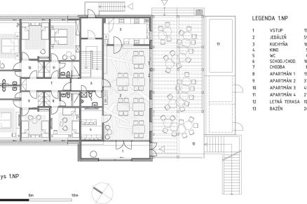
Miestnosti na ubytovanie tvoria časť funkčnej náplne 1. NP a zaberajú celé 2. NP, na ktorom ich dopĺňa terasa. Izby, ktoré sa nachádzajú na 1. NP, navrhol architekt v rôznych farebnostiach, pričom sa inšpiroval farbami vína, ako sú biela, ružová, červená, a použil súčasne odtiene, ktoré pripomínajú odrody – sivá (rulandské šedé), zelená (veltlín zelený), modrá (modrý portugal). Farebný koncept miestností na 2. NP zasa vychádza z ročných období. Celým penziónom sa jemne vinie motív kra, listu, respektíve stromu.
Konštrukcia a lokálne zdroje
Konštrukciu drevostavby tvoria rámy z KVH hranolov vyplnené izoláciou z minerálnej vlny. Stropný systém z KVH trámov s kolmými vzperami umožnil väčšie rozpony pri subtílnejšom priereze. Prevetrávaná fasáda je z agátu, miestnej suroviny, ktorá sa získala pri nevyhnutnom výrube počas čistenia viníc. Použité boli hliníkové okná s izolačnými dvojsklami. Prvky v interiéri sú vyrobené z duba a vo veľkej miere z topoľa. Drevo pochádzajúce zo zdrojov investora bolo prevezené do výrobní, vysušené a následne spracované.
Energetický scenár
Vykurovanie objektu je riešené centrálnym kotlom na drevný odpad, ktorý vzniká pri strihaní ovocných stromov a viniča. Využitie regionálnych zdrojov prinieslo v konečnom dôsledku aj značnú finančnú úsporu. „Regionálnosť a sebestačnosť v potravinách priviedla investora na myšlienku vyskúšať do určitej možnej miery aj sebestačnosť pri výstavbe: máme vlastné drevo, kameň, drevnú štiepku, čiže je jasné, že budeme stavať z vlastných zdrojov a aj vykurovať vlastnými zdrojmi. Drevného odpadu majú neustále dostatok, navyše, za likvidáciu drevných odrezkov u iných by musel investor platiť,“ vysvetľuje architekt. Kotlom na pelety a drevnú štiepku sa vykuruje aj vonkajší bazén. Prekrytie bazéna posuvnou drevenou terasou má okrem ochrany pred napadaním lístia aj ďalší, celkom špeciálny účel. Zabraňuje utopeniu zvierat ako srny či diviaky, ktorých je naokolo neúrekom.
Areál plný zážitkových zákutí
V areáli penziónu, do ktorého sa vchádza popod vstupný portál z drevených hranolov, vytvoril architekt aj detské ihrisko inšpirované pravekým náleziskom Stonehenge. Na jeho výstavbu použili agátovú guľatinu, strážna veža je zo smrekovca. Altánok s grilom, saunou a miestnosťou na prvotné spracovanie mäsa (diviny) je vyhotovený z lepených smrekových nosníkov podobne ako všetky ostatné vonkajšie viditeľné pergoly vytvorené z hranolov s prierezom 200 × 200 mm. Penzión Vinohrady potvrdzuje, že moderná drevostavba s odkazmi na tradičné prvky z histórie môže byť dobrou voľbou, ako zasadiť do krajiny nekonfliktnú architektúru. Stavbu, ktorá sa neprieči okoliu, ale naopak, je pre svoje okolie prínosná vo viacerých funkčných ohľadoch a jej stvárnenie vyvoláva v návštevníkoch asociácie pohody a prázdninovej romantiky. Realizácia penziónu v Jasovej bola vybraná na prestížnu medzinárodnú prehliadku moderných drevostavieb Salón drevostavieb 2015 a do publikácie Ročenka drevostavieb 2014.
Penzión Vinohrady, Jasová
Autor: Jaroslav Pavle, Lephart
Investor: Vinohrady Jasová, s. r. o.
Dodávateľ: Drevstav Slovakia, s. r. o.
Realizácia: 2014
Kapacita penziónu: max. 22 osôb
text: Ľubica Fábri
foto: Juraj Hantabal
Dokumentácia: Lephart
Článok bol uverejnený v časopise ASB.

















