Jednoduchá drevostavba pre pokojné vidiecke bývanie
Mnohí ľudia sa dnes z miest, do ktorých sa nasťahovali ich rodičia, vracajú na pokojnejší vidiek, do prostredia, v ktorom sa narodili, alebo kde žili ich predkovia. Nie je na tom nič zvláštne, mnohí potrebujeme uniknúť od ruchu veľkomiest a stresu, ktoré nám ponúkajú na dennom poriadku. Pri návrate z mesta na vidiek však nemusí ísť vždy o potrebu väčšieho pokoja, ale aj o vytúžený kontakt s prírodou v podobe vlastnej záhrady, či kontakt s príbuznými a starými priateľmi.
Takto to bolo aj v prípade rodiny, ktorá sa rozhodla postaviť jednoduchý drevený rodinný dom v obci Doubrava pri Turnove. Dôležitým faktom pri tomto rozhodnutí bolo zamestnanie investora, ktoré mu dovoľuje pracovať doma a nemusí každý deň míňať čas cestovaním za prácou do mesta a späť.
Na prahu Českého raja
Dvojpodlažný dom vo vidieckom prostredí navrhli architekti Blanka Johanisová a Viktor Johanis z architektonického ateliéru Endemit pre mladých manželov, ktorí sa po niekoľkoročnom pôsobení v Prahe rozhodli (už aj spolu s rozrastajúcou sa rodinou) vrátiť do rodného kraja. Na výstavbu nového príbytku si vybrali pozemok s výhľadom na skaly a les na okraji dediny pri Turnove, v krásnej oblasti na prahu Českého raja.
Moderné detaily nerušia vidiecky charakter stavby
Stavba koncepčne vychádza z cieľa poskytnúť pohodlné a príjemné bývanie pre štvorčlennú rodinu. Je vo vidieckom štýle – šikmou strechou a obdĺžnikovým pôdorysom nadväzuje na okolitú zástavbu. Na druhej strane pôsobí moderne – najmä riešením detailov a kompozíciou okenných otvorov.
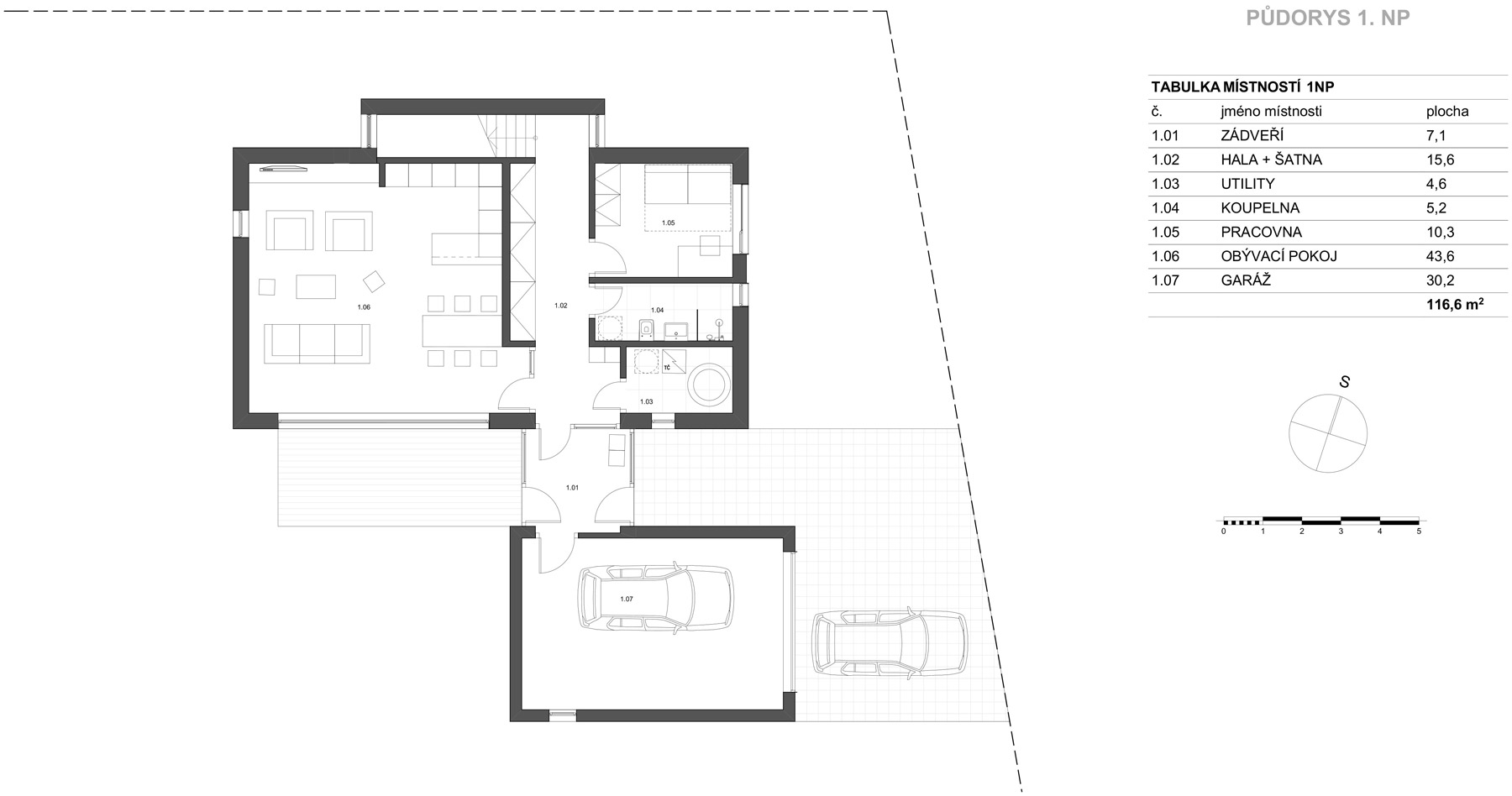
Vzhľadom na fakt, že investor stavby pracuje zväčša doma, v časti dennej zóny na dolnom podlaží nájdeme aj pracovňu. V prípade potreby môže slúžiť ako izba pre hostí či návštevy.
Garáž s domom spája zasklené zádverie
K domu je samostatne postavená garáž. Aby bolo obyvateľom umožnené jednoduchšie používanie a ľahší prístup do garáže, so samotným domom je prepojená zaskleným zádverím. Umiestnenie garáže vzhľadom na uloženie domu a záhrady prirodzene ochraňuje súkromie užívateľov domu na záhrade a zároveň má aj ďalšiu pozitívnu funkciu – oddeľuje súkromnú časť záhrady od komunikácie.
Ľahká drevostavba v systéme two by four
Všetky obytné izby sú orientované na slnečný juhozápad, schodisko a technické zázemie zase na sever. „Kládli sme dôraz na prepojenie hlavného obytného priestoru so záhradou prostredníctvom veľkých zasklených otvorov. Konštrukčne sú dom i garáž riešené ako ľahká drevostavba v systéme two by four.
Ako vonkajší obklad sme v prípade obytného domu zvolili kombináciu neošetrených smrekovcových dosiek a v prípade objektu garáže cementovláknité dosky. Tie sú využité i na schodisku. Vonkajší vzhľad domu nepopiera, ale naopak, podčiarkuje použitie dreva v konštrukčnom systéme a ukazuje jeho prirodzenú krásu,“ charakterizujú autori projektu jeho hlavné črty.
Technické a prevádzkové údaje
V technickej miestnosti domu je integrovaný zásobník na teplú vodu ohrievaný tepelným čerpadlom vzduch/vzduch. Teplá voda je z tohto zásobníka použitá aj na podlahové kúrenie. Dom je závislý od elektriny, patrí k energetickej triede B so spotrebou 65 kWH/(m2 . a). Do budúcnosti však investor počíta s osadením fotovoltaických panelov na to, aby sa znížila závislosť od elektriny. Pre zaujímavosť: ročný účet za elektrinu (vrátane prevádzky domácnosti, ohrevu TUV a vykurovania) predstavoval 29 000 Kč, teda približne 1 073 eur.
Rodinný dom v Doubrave pri Turnove v kocke
Architektonický ateliér: Endemit, Blanka Johanisová, Viktor Johanis Lokalita: Doubrava pri Turnove, Česká republika
Rok realizácie: 2014
Zastavaná plocha: 147 m2
Úžitková plocha: 197 m2
Materiál: drevo
Text: Sabína Zavarská
Zdroj a foto: architektonický ateliér Endemit




















