Interiér domu so šikmou strechou je plný svetla
Čo je najdôležitejšie pre pohodlnú úsporu energií v moderných domoch? Orientácia otvorená dennému svetlu, kvalitná izolácia, odvetrávanie a s umom riešená dispozícia. Ak k tomu prirátate ešte nízke stavebné náklady, je to priam výzva.
Jeden zo série
Sympatický „Light House“, ktorý pochádza z dielne dánskeho architekta Sigurda Larsena má všetky zo spomínaných výhod. Vznikol ako jeden zo série rodinných domov navrhnutých pre oblasť Frikøbing. Plán rozvoja v tejto oblasti kladie vysoké nároky na udržateľnosť stavebných materiálov, izolácie, energie a cirkuláciu vzduchu.
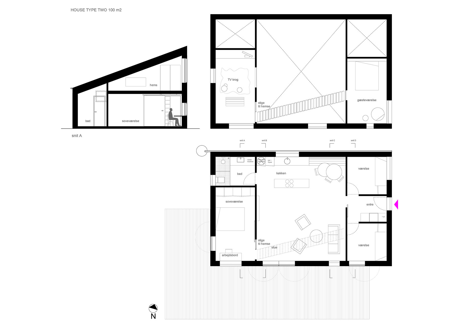
Centrálna časť a tri izby
„Light House je druhý z našich typov domov, ktoré majú byť v tejto oblasti vybudované. Má veľmi jednoduchú dispozíciu, ktorá umožňuje nízke stavebné náklady a súčasne ponúka veľkorysé obytné priestory,“ vysvetľuje architekt vo svojej správe.
Dom je riešený ako trojizbový, napriek tomu poskytuje dostatok priestoru na aktivity svojich obyvateľov. Centrálna miestnosť spája obývaciu izbu s jedálenskou časťou. Na jednej strane od centrálneho priestoru sa nachádzajú dve spálne, na druhej strane hlavná spálňa s kúpeľňou.
Mezanín vďaka zvýšenej streche
Jednoduchá šikmá strecha spĺňa viacero funkcií. V prvom rade je najvyššia v oblasti spoločenskej miestnosti a tiež umožňuje optimálne prúdenie svetla do interiéru. V miestach, kde je strecha najvyššia, sa tiež nachádza po stranách hlavného obytného priestoru mezanín, využitý ako spálňa pre hostí a na druhej strane ako menšia obývacia miestnosť, prípadne pracovňa.
Výhľad i svetlo
Okná rôznych veľkostí sú starostlivo umiestnené tak, aby umožnili skvelý výhľad na okolitú krajinu, ale tiež zachytili slnečné žiarenie v určitej fáze dňa. Ďalším pozitívom tohto jednoduchého, praktického, a pritom úsporného domu je fakt, že je prirodzene vetraný pomocou okna s trojitým zasklením, ktoré dovoľuje regulovať teplotu v dome. Zároveň je tým dosiahnuté dobré prúdenie vzduchu v rámci celého interiéru.
Interiér ešte viac rozjasňuje biela
Pozitívnu hru so svetlom umocňuje ešte interiér namaľovaný na bielo, aby odrážal svetlo. Vonkajšia fasáda je vytvorená z vertikálnych, neošetrených, smrekovcových panelov, ktoré sa časom zmenia na svetlejší strieborný tón a dom sa vďaka tomuto prirodzenému vzhľadu ešte viac zosúladí s okolím. Hlavný vchod do domu je zboku, avšak na prízemí je ešte niekoľko zasklených dverí, ktoré spájajú interiér s exteriérom.
Light House v kocke
Architektonické štúdio: Sigurd Larsen Design & Architecture
Architekt: Sigurd Larsen
Lokalita: 4320 Lejre, Dánsko
Rozloha: 135 m2
Rok realizácie: 2017
Text: Sabína Zavarská
Foto: Tia Borgsmidt, styling: Mette Helena Rasmussen


















