Drevostavba – Záhradný domček
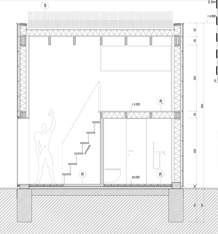
Objekt bol limitovaný maximálnymi vonkajšími rozmermi, ktoré spĺňajú ustanovenie ods. 2d §104 stavebného zákona o ohlasovaní stavieb. Ide teda o stavbu so zastavanou plochou do 25 m2 a výškou do 5 m. Vložená galéria je navrhnutá na príležitostné spanie, vstupná úroveň je koncipovaná ako viacúčelový priestor.
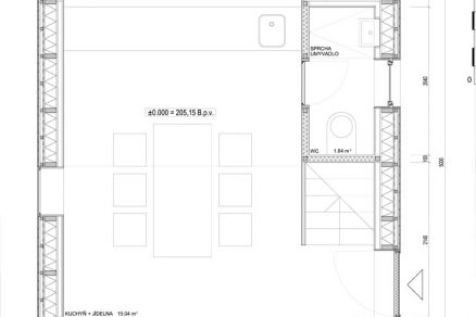
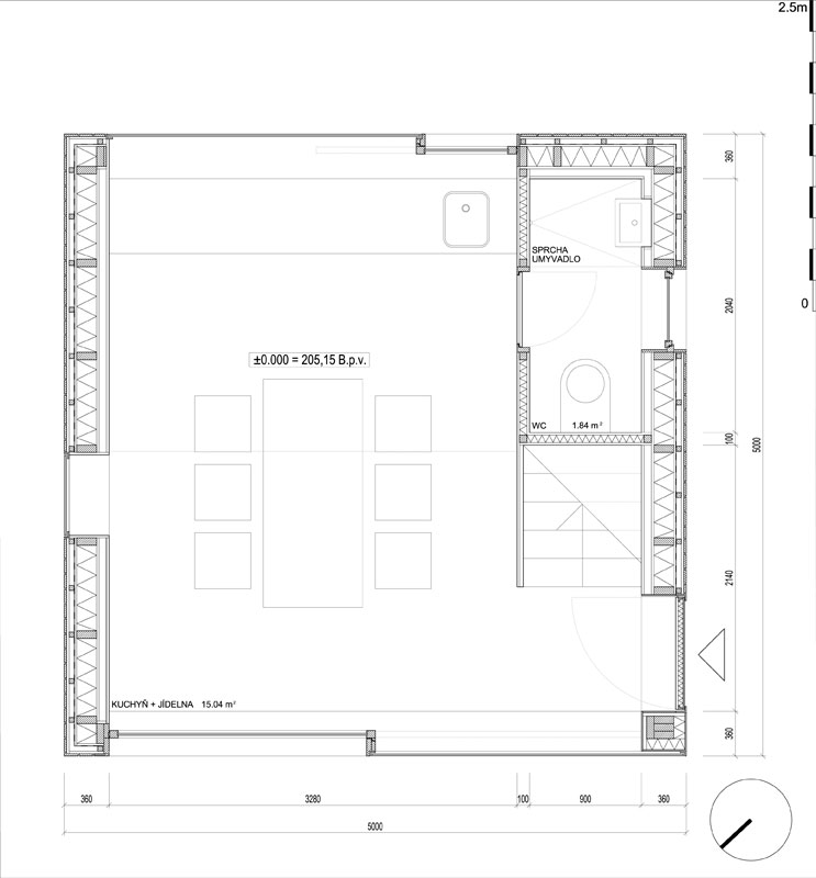
Záhradný domček je drevostavba s kubickým objemom a s rozmermi 5 × 5 × 5 m.Záhradný domček sa nachádza na pozemku usadlosti Konvářka v Šáreckom údolí v Prahe. Ide o drevostavbu s kubickým objemom a s rozmermi 5 × 5 × 5 m. Objekt charakterizuje zvislý drevený obklad, pričom v líci fasády sú zasklené otvory. Plochá strecha je navrhnutá ako zelená.
Základové konštrukcie tvorí betónová doska na obvodových pásoch. Drevostavba je zrealizovaná stavebným systémom typu two by four. Ide o rámovú konštrukciu tvorenú prvkami z štvorstranne hobľovaného a priemyselne sušeného dreva.
Konštrukcia je vystužená doskovými materiálmi (dosky OSB, sadrovláknité dosky) a bežnými spojovacími prvkami. Hlavnými nosnými prvkami sú stĺpiky s pôdorysným rozmerom 60 × 160 mm, ktoré sú umiestnené v osovej vzdialenosti 600 mm. Zvislé prvky sú kotvené do dreveného prahový profilu, fixovaného k základovej doske. Rámová konštrukcia je v hornej časti stien vystužená dvomi vodorovnými profilmi.
Priestor medzi nosnými prvkami je vyplnený tepelnou izoláciou (hrúbka160 mm). Z vonkajšej strany je konštrukcia opláštená doskami OSB, nechýba hydroizolácia a vertikálny rošt, ktorý slúži ako odvetrávacia medzera. Na vodorovnom latovom rastri je namontovaný zvislý drevený obklad. Aj z vnútornej strany sú na konštrukcii pripevnené dosky OSB, nechýba parozábrana a rošt na tzv. inštalačnú predstenu.
Drevostavba je zrealizovaná stavebným systémom typu two by four.
Hlavnými nosnými prvkami konštrukcie sú stĺpiky s pôdorysným rozmerom 60 × 160 mm, ktoré sú umiestnené v osovej vzdialenosti 600 mm
Objekt charakterizuje zvislý drevený obklad, pričom v líci fasády sú zasklené otvory.
Z vonkajšej strany je konštrukcia opláštená doskami OSB, nechýba hydroizolácia a vertikálny rošt, ktorý slúži ako odvetrávacia medzera.
Pôdorys
Pôdorys poschodia
Rez
Miesto: Praha 6, Tichá Šárka
Projekt: 2010
Realizácia: 2011
Dodávateľ: M2O, Ing. Martin Jinek
Investor: súkromná osoba
Úžitková plocha: 30 m2
Zastavaná plocha: 25 m2
Náklady: asi 1 mil. Kč
Autor: architektonický ateliér: Ing. arch. Jiří Žentel, Ing. arch. Alena Žentelová, Bc. Zdeněk Lachut
(pet)
Foto: Lukáš Žentel



















