Drevostavba pre drevárov
Dom pre pár drevárov nemohla byť nič iné ako drevostavba. V prípade projektu Drevodom v Lučatíne sa použil švajčiarsky systém, ktorý tvoria tehly z masívneho smrekového dreva. Tehly možno plniť rôznou izoláciou.
Drevenú časť stavby vrátane zakrytého krovu sa podarilo vďaka zvolenému systému zrealizovať za päť dní, čo je veľká prednosť týchto domov. Dom je postavený v Lučatíne, malej obci pri Banskej Bystrici, kde má mama autora projektu rodinné väzby. Toto krehké prostredie jasne vystavilo medze riešenia a východiská – hmota domu, mierka, urbanizmus obce, voľba dreva ako konštrukčného a výrazového materiálu.
Na mieste novostavby stál starší, stavebne už nepoužiteľný tehlový dom. Nový objem sa chová v priestore veľmi podobne. Odstránenie drevenej stodoly v zadnej časti pozemku nebolo jednoduché rozhodnutie, ale novému bývaniu otvorilo úplne nový priehľad do prírodnej krajiny okolia bez toho, aby sa narušil uličný rytmus. Jestvujúci susedný kamenný múr, ako aj voľne rastúce stromy boli pevným programom, s ktorým dom komunikuje.
Vzhľadom na prostredie sa do pozornosti dostal aj ekologický dopad domu. Okrem konštrukcie z dreva sa počítalo aj s opätovným použitím materiálu zo starého domu a stodoly. Toto sa podarilo iba čiastočne – starý dom bol rozobratý a materiál rozdaný na stavby v okolí. Výtvarne pôsobiace drevo stodoly žiaľ nebolo zdravé a nedalo sa použiť ako zamýšľaný obkladový materiál. Čo sa ovplyvniť dalo, bol výber dodávateľských firiem. Všetky dodávateľské firmy tak pochádzali z blízkeho okolia.
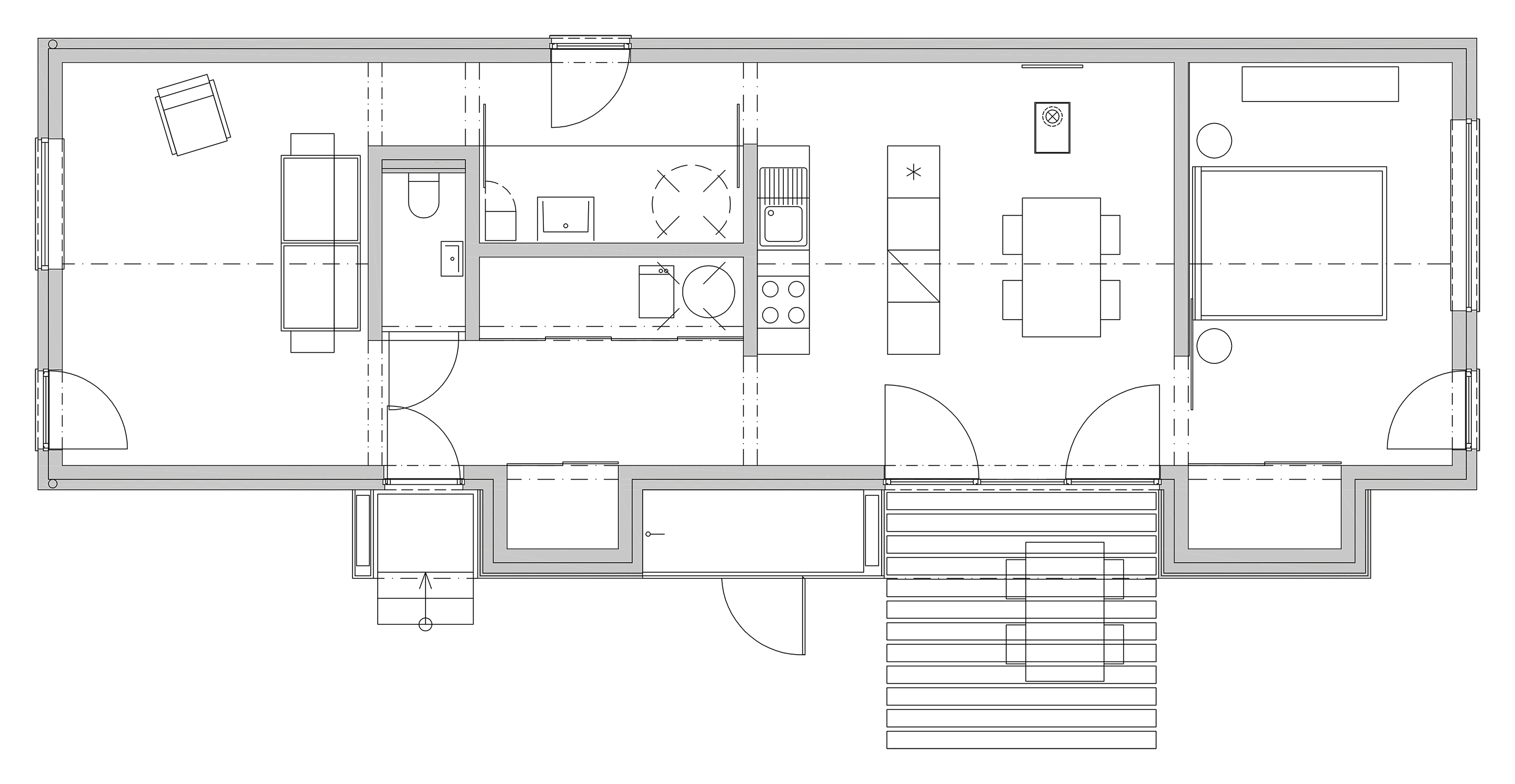
Dom s gánkom je variáciou na tému tradičného ľudového stavania. Tento priestor sa rozšíril ako komunikácia naprieč celým domom, artikulovaný otvormi od jednej fasády k druhej. Prelína sa s jednotlivými izbami, naberá funkciu zádveria či vstupnej haly, rozširuje sa v úložných priestoroch prístupných z interiéru aj exteriéru, vďaka čomu dom nemá nijaké chodby a minimum nevyužitého priestoru. Ľudové stavanie obsahuje overené riešenia v malých mierkach, dá sa interpretovať pre dnešné potreby a výraz.
Z rovnakého zdroja vychádza aj koncept trojpriestoru – predná izba ako obývací priestor, kuchyňa v strede, zadná izba – spálňa. V súčasnom dome sa do diagramu však dostal ešte jeden medzičlánok obsahujúci hygienické vybavenie a technológiu. Takto vytvorené jadro umožnilo minimalizovať všetky rozvody domu do troch dĺžkových metrov.
O použitom švajčiarskom systéme sme sa porozprávali s autorom projektu Ing. arch. Jarom Krobotom, ktorý nám ochotne objasnil jeho výhody.
Prečo ste sa rozhodli použiť na vytvorenie obvodového plášťa švajčiarský systém Steko?
Investor (môj otec) v minulosti pracoval s drevom, a tak chcel drevodom. Ide o rekreačný dom (s možnosťou, že sa časom stane normálnym obydlím) a drevo sme vybrali pre rýchly nábeh kúrenia. Druhá vec je pocit v takomto drevodome. Drevene steny (okrem príjemnej vône) majú skvelý manažment vlhkosti a teploty, tvoria veľmi príjemne obytné prostredie. V lete neakumulujú teplo a v noci vytvárajú príjemnú klímu.
Čo tento systém tvorí?
Ide o systém drevených tehál, podobných legu.
Aké drevo sa pri jeho výrobe uplatňuje?
Je to špeciálne sušené masívne smrekové drevo. Kedysi sa inak tieto dielce vyrábali na Slovensku. Je to švajčiarsky patent.
Aká je skladba jeho jednotlivých vrstiev?
Dielce pre priečky a obvodovú stenu sú rovnaké – stena má hrúbku 160 mm, tvoria ju plášte z masívneho dreva a systém z priečnikov vo vnútri.
Približuje sa cena tohto systému cene bežne uplatňovaným murovacím materiálom?
Cena pohľadových dielcov je o niečo vyššia ako pri murovaní značkovou tehlou, ak počítame aj povrchovú úpravu tehly. Dielce Steko už povrchovú úpravu nepotrebujú. Treba však povedať, že sa cenovo nedá porovnať s drevodomami na báze dosiek OSB. Ide o iný typ stavania.
Na výslednú cenu ma vplyv aj presná a výnimočné rýchla výstavba. Dom v Lučatíne (steny a krov, vrátane elektrických rozvodov a vnútornej izolácie), bol postavený za päť dní.
Akú energetickú úsporu umožňuje?
Dielce je možné plniť rôznymi druhmi sypanej a fúkanej izolácie, skladby stien sa dajú vyhotoviť aj protiveterne. Vďaka tomu možno dosiahnuť rôzne parametre. Tým, že je už izolovaná stena, klesá potreba ďalšej izolácie, systém sa tak úspešné používa na pasívne domy (hlavný dopyt je z nemecky hovoriacich krajín).
Aké povrchové úpravy možno aplikovať či už v exteriéri alebo interiéri?
Systém možno používať iba v interiéri, z exteriéru sa musí chrániť podobne ako murovaná stena – buď fasádnym systémom (zateplenie s omietkou) alebo zateplenou prevetrávanou fasádou.
Steny sa dodávajú v dvoch vyhotoveniach – pohľadová kvalita – čo je aj dizajnovo zaujímavý produkt keďže umožňuje vytvárať steny z masívneho dreva. V tomto prípade sa steny nechávajú bez povrchovej úpravy, resp. sa na ne môže aplikovať náter proti tmavnutiu dreva.
Druhý – lacnejší variant dielcov je v nepohľadovej kvalite. Tieto dielce sú určené na zakrytie sadrokartónom. Stena potom pôsobí ako bežná, čo niektorí zákazníci požadujú.
Názov stavby a jej adresa: Drevodom v Lučatíne, Lučatín 11, 976 61
Architekt: Ing. arch. Jaro Krobot
Stavebník/investor: súkromná osoba
Generálny dodávateľ: Sunik/Prestige House (dodávateľ systému)
Plocha pozemku: 520 m2
Úžitková plocha: 74,4 m2, resp. 77 m2 s vonkajším skladom
Zastavaná plocha: 93,6 m2
Začiatok projektovania: september 2013
Dokončenie projektovania: zima 2013 + v priebehu stavby
Začiatok výstavby: jar 2014
Dokončenie stavby: jeseň 2014
TEXT: Ing. arch. Jaro Krobot, wad
FOTO: Ing. arch. Jaro Krobot





















