Drevodom nad vodopádom
Na stiesnenom opustenom pozemku pri potoku s vodopádom vznikol nezvyčajný dom. Vznáša sa na betónových stĺpoch nad vodou a za slnkom sa otáča terasami a veľkými okennými tabuľami. Pod sebou má voľnú plochu a hore strešnú záhradu. Drevený objekt v tvare horizontálneho kvádra dosahuje rozmery 19 × 7 × 4 m..
Dom vyrástol na nevyužívanej parcele v centre mesta Telč, zapísaného do zoznamu UNESCO. Pozemok sa zvažuje na juh a preteká ním telčský potok. Zo severu je vymedzený múrom pod úrovňou vedľajšej ulice. Návrh stavby sa musel vyrovnať predovšetkým s možným nebezpečenstvom záplav z rybníka – dom preto stojí na stĺpoch.
Architektonické riešenie
Za drevostavbu hovorilo niekoľko faktov. Predpokladali sa zložitejšie základové podmienky (časť parcely je na skalnatom podloží a časť na navážkach a íloch koryta potoka), preto sa javil ako najvhodnejší ľahký systém drevostavby založený na mikropilótach. Ďalej sa využili tenšie obvodové steny na báze dreva s dobrými tepelnotechnickými parametrami, aby sa dosiahol pasívny štandard. Pozitívom bola aj jednoduchá doprava a montáž stavebných prvkov.
Aby dom splynul s géniom loci pod hradeným prepadom horného Ulického rybníka, navrhla sa prevetrávaná drevená fasáda zo smrekovca sibírskeho bez povrchových úprav ako odkaz na drevené mlynské domy. Drevostavba má difúzne otvorenú konštrukciu, použilo sa systémové konštrukčné riešenie z i-nosníkov STEICO a prvkov lepeného dreva Ultralam. Nosné, vizuálne výrazné stĺpy, sú z dubového reziva. Pod stavbou je prevetrávaná dutina zospodu opláštená cementotrieskovými doskami. Drevené okná majú rám zapustený do obkladu fasády. Terasu z dreva dopĺňa zábradlie z pozinkovanej ocele.
Zelená plochá strecha
Konštrukcia strechy je dvojplášťová s prevetrávanou medzerou, nad hlavnou hydroizoláciou sa nachádza extenzívna zeleň (hydroakumulačná a drenážna vrstva, vrstva humusu, mulča). Vegetačná strecha, dnes už plne pokrytá skalnicami, rozchodníkmi, kostravou a voňavou levanduľou, slúži na zlepšenie mikroklímy, retenciu dažďovej vody a využíva sa ako pobytová terasa.
Usporiadanie interiéru
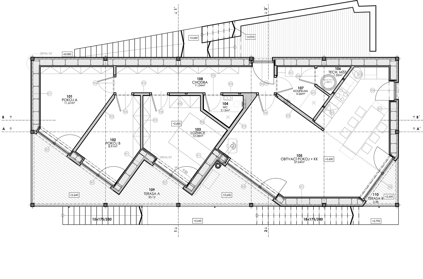
Do jednopodlažného rodinného domu sa vstupuje po obnovených historických schodoch vedúcich zhora z ulice dolu na úroveň vstupných dverí. Za zádverím domom prechádza chodba so vstupmi do obytného priestoru s kuchyňou a jedálňou, do spální a detských izieb v západnej časti objektu.
Z chodby sa vchádza aj do kúpeľne, WC a technickej miestnosti. V dome bolo navrhnuté centrálne vetranie s rekuperáciou tepla. V obytnom priestore stoja menšie kozubové kachle s výmenníkom. Majú malý tepelný výkon, slúžia na pokrytie tepelných strát a ohrevu vody v čase najväčších mrazov.
Výhody rozľahlej krytej terasy
Zo všetkých obytných miestností možno francúzskymi oknami vstúpiť na spoločnú krytú vonkajšiu terasu. Tá v zime umožňuje preslnenie a prehriatie priestoru nízkym slnkom, v lete naopak, bráni prehriatiu interiéru. Po vonkajších schodoch sa z nej bude dať v budúcnosti zostúpiť na úroveň terénu pod domom alebo po nich bude možné vystúpiť až na úroveň strechy. Priestor pod domom je vo svojej rozširujúcej sa časti dostatočne vysoký, takže ho možno využívať ako pobytový.
Text: Alena Gembalová
Foto: Jaroslav Svoboda, © JSPHOTO.CZ





















