Drevodom je šetrný k prírode i majiteľom
Architekt Ivan Jarina je zástancom tzv. „slow architecture“ – teda prístupu, keď klient v spolupráci s architektom hľadajú priestor pre svoju tvorivosť. Je to zážitok spoločného vytvárania jedinečného priestoru na mieru, ktorý sa premietol aj do drevostavby rodinného domu v obci Zálesie.
Dom je na pozemku, ktorý bezprostredne susedí s tokom Malého Dunaja. Je za zástavbou v obci, stojí sám a bez rušivých vplyvov – jediným diskutérom v rozhovore s ním je príroda. Rozmanitá, divoká, ale najmä inšpirujúca. Z východnej strany je rieka s lužným lesom, z južnej zase rozľahlé pole. To všetko hralo architektovi do karát. Rozhodol sa prírodu vtiahnuť do stavby a stavbu do prírody. Začal hľadať individuálny príbeh budúcich užívateľov a spolu s nimi prežívať radosť z tvorby.
„Spolu sme hľadali hodnoty, ktoré sa mali premietnuť do stavby,“ hovorí Ivan Jarina. „Vyselektovali sme naozajstné potreby majiteľov od predstáv a nakoniec sme sa zhodli na drevostavbe v nízkoenergetickom štandarde. Prečo? Chceli sme vytvoriť ľahký, rýchlo adaptovateľný dom, ktorý by bol úsporný. Navyše, drevo je dostupné na Slovensku, ľahko technologicky spracovateľné, obnoviteľné, nezaťažuje životné prostredie, a pritom je voňavé a krásne.“
Od projektu k prevádzke
Samotná príprava projektu trvala 8 mesiacov. Pôvodne majiteľ požadoval murovaný dom stredomorského typu a podstatne väčší. Postupne sa však škrtalo, premiestňovalo, zreálňovala sa predstava, menili sa materiály. „Pri koncipovaní sme sa snažili, aby sme neboli otrokmi domu, ale aby nám slúžil,“ približuje majiteľ domu. „Aj pri jeho výstavbe sme dbali, aby sme v budúcnosti na ňom nemuseli nič prerábať. Použité materiály by mali vydržať veľa rokov, podobne aj nátery, podlahy, drevené obklady…“
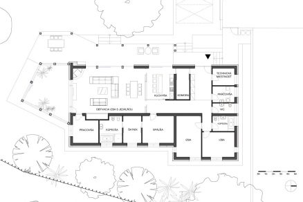
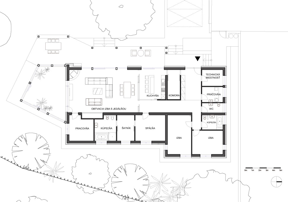
Logika budúcej prevádzky začala vytvárať kompozíciu rodinného domu. Tej dominuje tzv. „shedová strecha“ (alebo tiež pultová), ktorá výrazne prekrýva telo domu. Tým sa na východnej strane vytvorili svetlíky, ktorým sa toto „chladné“ svetlo vtiahlo do interiéru. Na juhozápadnej strane zase strecha prekryla terasu, ktorá prostredníctvom veľkých okenných tabúľ opticky rozšírila vnútorný priestor domu. Podobný efekt má aj zimná záhrada, ktorá pohľadovo ukončuje veľkorysú obývačku. Jej mohutný „nádych“ v podobe veľkého loftu vytvárajú drevené pohľadové priehradové nosníky vo výške vyše štyroch metrov. Dom je nastavený na potreby mladej štvorčlennej rodiny, nechýba pracovňa, rozľahlá komora a štýlová kuchyňa, ktorá je od obývacej izby s jedálňou oddelená konštrukciou z lícových tehál. Ich historický punc kultivovane korešponduje so štruktúrovanou dubovou podlahou. Technická časť je od obývacej jednoznačne oddelená vstupnou verandou, ktorou sa hostia dostanú do zakrytej terasy. Všetky technické časti domu sú na chladnej severnej strane, ktorú netreba vykurovať.
Prečítajte si aj rozhovor s Ivanom Jarinom o drevostavbách
S úspornosťou
Dom má nízkoenergetický štandard blížiaci sa k pasívnemu, pričom pre potreby pasívneho domu je tu dokonca pripravená rekuperácia. Hoci z inžinierskych prípojok je tu len elektrina, hendikep sa ukázal ako výhoda. „Neplatíme žiadne poplatky za vodu,“ usmieva sa majiteľ. „Máme vlastnú studňu aj žumpu a dom vykurujeme tepelným čerpadlom. To je síce na elektrinu, ale má veľmi výhodný pomer 1:4,8 – čiže jeden kilowatt spotrebuje a 4,8 kilowattu vyrobí. Navyše, v obývačke máme výborný krb s výhrevnosťou 11 kW, ktorý počas hodiny vykúri aj jej veľký objem. Dom aj po prvých troch rokoch prevádzky funguje podľa nízkoenergetických kritérií.“
Vzhľadom na tvar a sklon strechy nie je v dome nutná ani klimatizácia. Strecha totiž odráža slnečné žiarenie, je niekoľkokrát prevetrávaná, pričom použitá ťažká keramická krytina mediteránskeho typu absorbuje cez deň množstvo tepla a počas noci ho vyžiari do okolia. Časť objektu je prekrytá plochou strechou, ktorá bude vegetačne intenzívna s 35 cm hrúbkou hliny. Drevostavba pri Malom Dunaji je ďalším potvrdením ambície ateliéru VAN JARINA, že drevo ako stavebný materiál sa dá najlepšie uplatniť pri tvorbe trvalo udržateľnej architektúry. Je to ďalší krok ateliéru na ceste k presadeniu drevostavby z pozície alternatívy na mainstreamový trend.
text: Ľudovít Petránsky
foto: Dano Veselský, Soňa Sadloňová


















