Drevený dom pre mladú rodinu
Na pohľad úplne jednoduchý drevený dom s pravidelnou sedlovou strechou je v našich končinách predurčený na úspech. Tento vytvorili architekti zo štúdia Innauer-Matt Architekten a stojí v rakúskom Bürserbergu. Samotní tvorcovia ho nazvali domom v druhom svete. Viete prečo?
Nielen na víkendy
Krása dreva zvonku i zvnútra, čistota interiérového riešenia, zastrešený gánok, respektíve veranda s kumulovanými funkciami, dôkladne premyslené presvetlenie domu prirodzeným svetlom – to sú hlavné pozitíva sympatického domu.
Napriek tomu, že pôsobí ako chata, nie je určený len na víkendové pobyty. Majitelia domu trvali na tom, aby bol riešený ako plnohodnotný druhý domov. Nachádza sa len tridsať minút jazdy od ich bytu v meste Feldkirch.
V lone nepoškvrnenej prírody
Rodina týmto spôsobom veľmi zaujímavo vyriešila problém, či sa presťahovať na vidiek za pokojom a krásou prírody, alebo zostať v meste so všetkými jeho prednosťami, ale aj ruchom. Majú oboje.
Pozemok, ktorý si vybrali na stavbu svojho druhého domova sa nachádza v tichých horách s rozmanitou, prevažne nedotknutou prírodou. Vďaka náhornej plošine Tschengla je toto prostredie skutočne jedinečné a zvláštne.
Odkaz na alpské stodoly
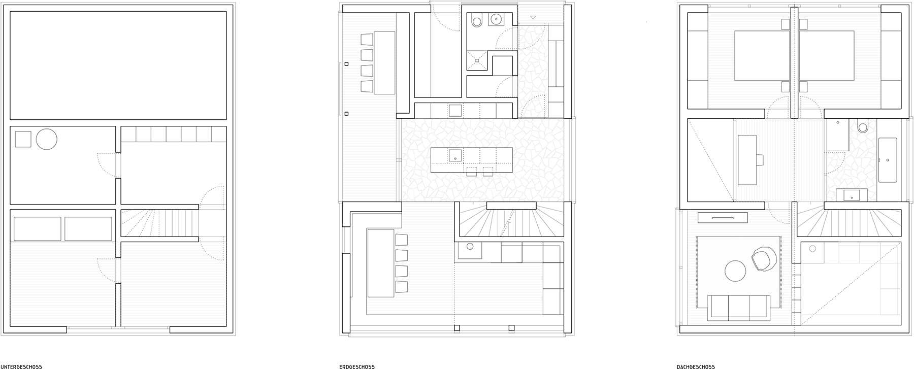
Obrysy domu sú odkazom na spôsob, akým sa stavali prvé hospodárske usadlosti v alpských oblastiach. Kompozične ide o jednoduchú a dobre štruktúrovanú drevenú budovu na pevnom sokli so štítom orientovaným do doliny.
Vchod do domu je prekrytý, nasleduje kuchyňa so vstavaným dreveným nábytkom a ostrovčekom z tmavého dreva.
Na kuchyňu nadväzuje hlavná obytná miestnosť s jedálenským stolom a najmä krásnym výhľadom cez široké panoramatické okno.
Obývaciu časť s veľkým rohovým sedením od jedálenskej čiastočne oddeľuje múr s krbom.
Presvetlené je aj podkrovie
Na poschodie sa dostanete prostredníctvom relatívne úzkych, ale pevných drevených schodov. Prvé čo vás na hornom poschodí zaujme je atypické strešné okno, cez ktoré preniká dostatok svetla i na toto podlažie.
Na poschodí sa nachádzajú podkrovné izby – spálne a hygienická miestnosť, taktiež pracovňa a malá knižnica.
Zaujímavé horizontálne okno je umiestnené v kúpeľni nad umývadlom. Neupravený smrek, sivá omietka a drsný kameň dodávajú interiéru osobitý charakter.
Veranda sa opäť vracia
Prekrytá exteriérová časť domu pripomína známy gánok či verandu z našich starších domov. Majitelia ju využívajú ako vonkajšie posedenie, ale je veľmi dôležitým momentom aj pri presvetlení prízemia.
Celá stena domu, ktorá sa nachádza pod zastrešením je totiž zasklená. V prípade intenzívneho slnka je možné túto časť zatieniť drevenou clonou a presne prispôsobiť aktuálnym potrebám svetelnosti v interiéri.
„HOUSE ON TSCHENGLA“ v skratke
Architektonické štúdio: Innauer-Matt Architekten
Projekt: 2014 až 2015
Realizácia: 2015 až 2016
Lokalita: Bürserberg, Vorarlberg, Rakúsko
Podlahová plocha: 127 m2
Pivnica: 56 m2
Rozloha pozemku: 1001 m2
Sabína Zavarská
Foto: Adolf Bereuter, Dornbirn
























