Drevený dom, ktorý by chceli všetky deti!
Každý vie, že deti napodobňujú svojich rodičov a veľmi rady sa hrajú na činnosti, ktoré my bežne robíme. Preto sú veľmi obľúbenými hračkami rôzne dielničky či kuchynky a nakoniec aj mobily. I keď tie sú menej vhodnou hračkou pre malé deti – zvyčajne ich sledovanie odpozerajú od nás a my sa nemôžeme veľmi čudovať, že aj ony ich chcú. Z rovnakého dôvodu deti milujú domčeky na hranie, v ktorých si môžu „zorganizovať život“ podobne ako dospeláci a zahrať sa na mamičku či otecka.
Viac ako domček na hranie
Japonský projekt z dielne HIBINOSEKKEI + Youji no Shiro + KIDS DESIGN LABO posunul predstavu o detských domčekoch na hranie do omnoho reálnejšej a funkčnejšej podoby, na akú sme zvyknutí. Malý drevený dom pre deti je totiž omnoho viac ako domček na hranie, je to dom, v ktorom môžu robiť mnohé reálne aktivity a cítiť sa skvele vďaka príjemnému drevu, súkromiu a mnohým možnostiam, ktoré ponúka.
Aby mohli napodobňovať dospelých
Ouchi, ako tento projekt nazývajú architekti, vznikol na základe požiadavky investora vybudovať v materskej škole priestor, v ktorom môžu deti rozvíjať svoju kreativitu prostredníctvom hrania rolí. „Chceli sme sa odtrhnúť od už existujúcej typológie škôlok a detských ihrísk a navrhnúť priestor v súlade s našou vierou, že keď deti hrajú rolu, pokúšajú sa napodobňovať dospelých….
Rozhodli sme sa vytvoriť v existujúcej budove miniatúru, v ktorej môžu deti napodobňovať svojich rodičov a ich skutočné aktivity,“ zdôrazňujú tvorcovia vo svojej správe.
S domom sa zoznámi už počas stavby
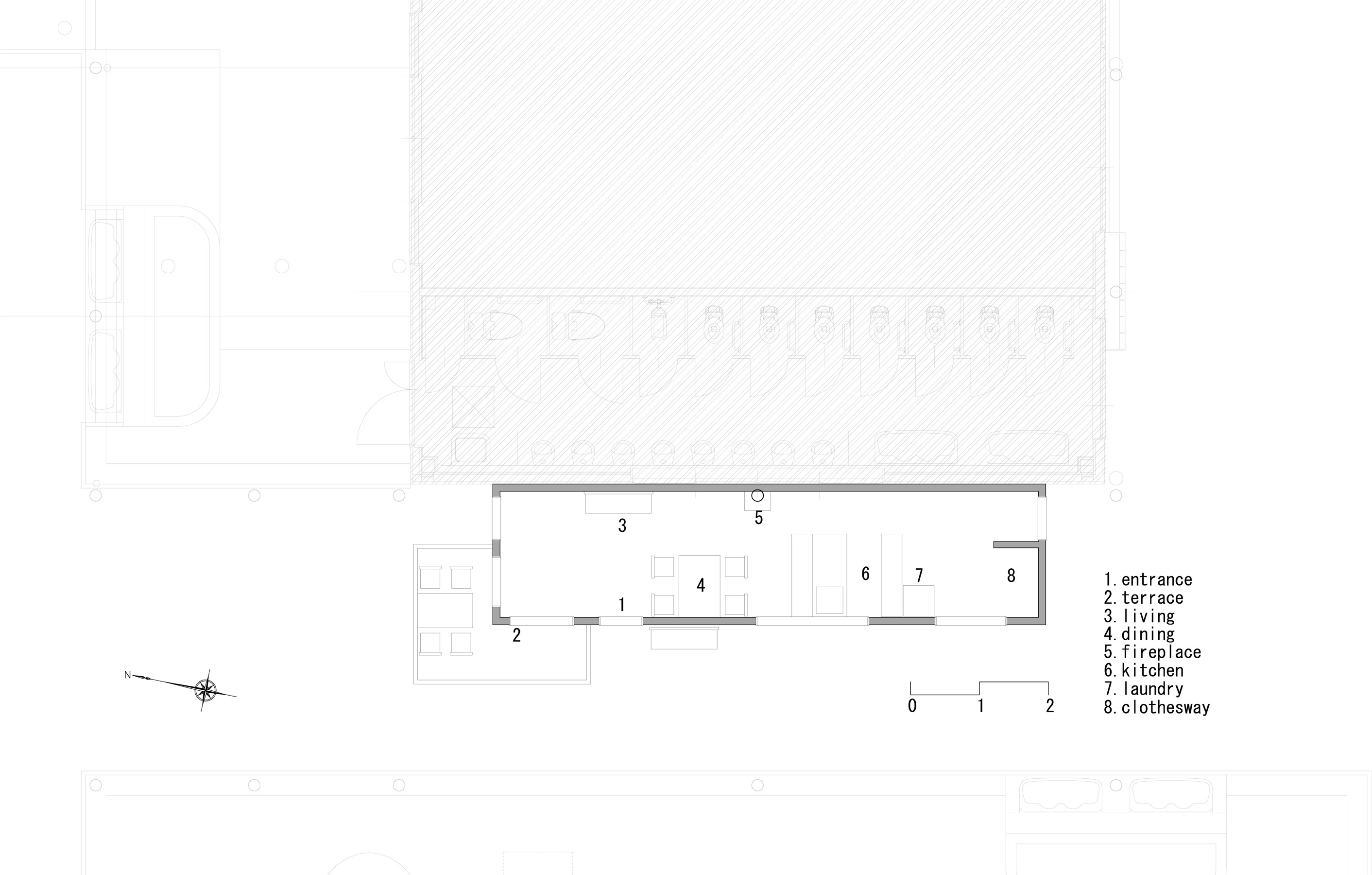
Názov Ouchi znamená v japončine dom a deti majú k dispozícii kuchyňu vybavenú riadom a príbormi, hriankovačom, varičom na ryžu, chladničkou. Okrem varenia sa môžu venovať výzdobe stola, jesť na slnečnej terase alebo vo vnútri, môžu dať prať oblečenie a vyvesiť ho, aby sa vysušilo, pozerať cez výhľadové okienka. Deti mali s domom kontakt už počas jeho realizácie, tvorcovia im dovolili priložiť ruku k dielu a vyskúšať si tesársku prácu.
Príležitosť na skúmanie
„Týmto sa snažíme spochybňovať konvenčné metódy a vytvárať príležitosti, ktoré ponúknu deťom viac možností na skúmanie, tak, že ich udržiavame v úzkom kontakte s prácou a povinnosťami dospelých. Existujúce hračky a vybavenie detských ihrísk sa vyrábajú v súlade so zákonom o zodpovednosti za výrobky, a preto sú ich tvorcovia veľmi opatrní.
To však zabraňuje tvorivosti a zvedavosti detí tým, že odstraňuje možnosti prieskumu. Náš dizajn je založený na základnej koncepcii, podľa ktorej môžu deti neustále vytvárať výzvy, učiť sa novým veciam a rásť,“ vysvetľujú tvorcovia svoj prístup.
Učitelia by mali zasahovať čo najmenej
Vysvetľujú, že na to, aby tento projekt mohol fungovať, je nevyhnutné umožniť deťom v rámci domu skúmať úplnú slobodu a učitelia by mali čo najmenej zasahovať. Deti sú vo svojej aktivite podporované z diaľky. V tomto netradičnom priestore na reálnu hru vznikajú scény, ktoré neustále vytvárajú na tvárach dospelých úsmev a pocity úžasu.
Je skvelé dať deťom možnosť vyskúšať si samostatnosť a úlohu dospelého, naučí ich to podstatne viac, ako keď im dáme do ruky hračky či tablet. Naučia sa reálne žiť a riešiť situácie.
Drevený dom pre deti Ouchi
Architekti: HIBINOSEKKEI + Youji no Shiro + KIDS DESIGN LABO, http://e-ensha.com/
Podlahová plocha: 15,16 m²
Lokalita: Saga, Japonsko
Dátum realizácie: február 2017
Konštrukcia: drevo
Text: Sabína Zavarská
Foto: HIBINOSEKKEI + Youji no Shiro




















