Dom v dome
Usmernenia, predpisy a zákazy týkajúce sa miestnej výstavby môžu byť niekedy podnetným faktorom, ktorý vedie k nevšedným návrhom.
Platí to aj v prípade rodinného domu v českej obci Ládví, ktorý pochádza z dielne známeho architektonického štúdia Prodesi. Útek z rušného centra mesta a užívanie si pokojného prostredia boli hlavnými cieľmi dvojice v zrelom veku. Ich pôvodný plán vybudovať prízemný domček sa zmenil vzhľadom na lokálne stavebné nariadenia.
Hlavným terčom redefinovania pôvodného plánu sa stala strecha – konkrétne jej tvar a farba. Keďže miestne predpisy vyžadujú červenú farbu strechy a určitý tvar, architekti sa rozhodli pre originálne riešenie, ktoré v sebe spája (požadované) tradičné prvky so sviežou modernou prímesou.
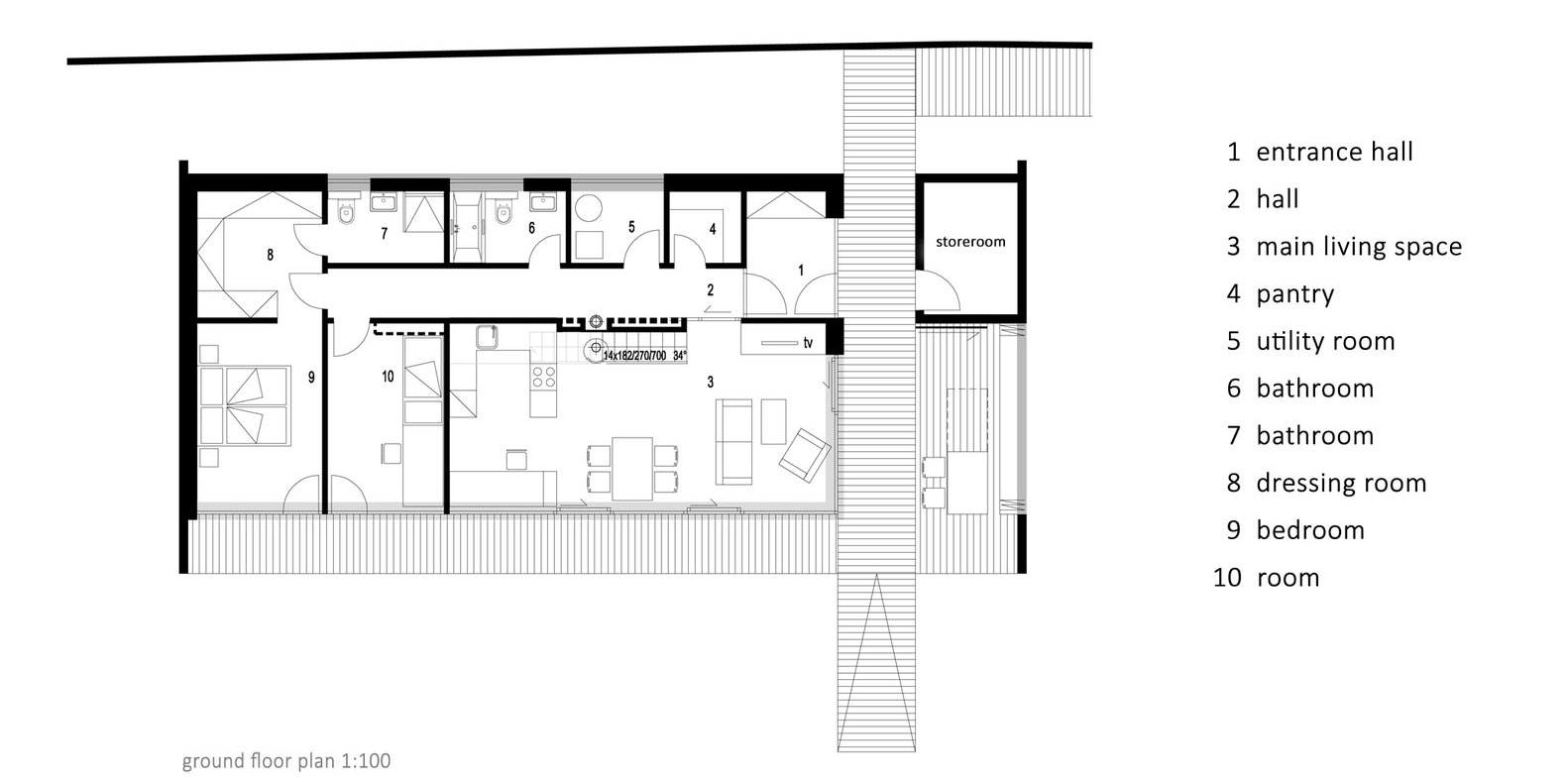
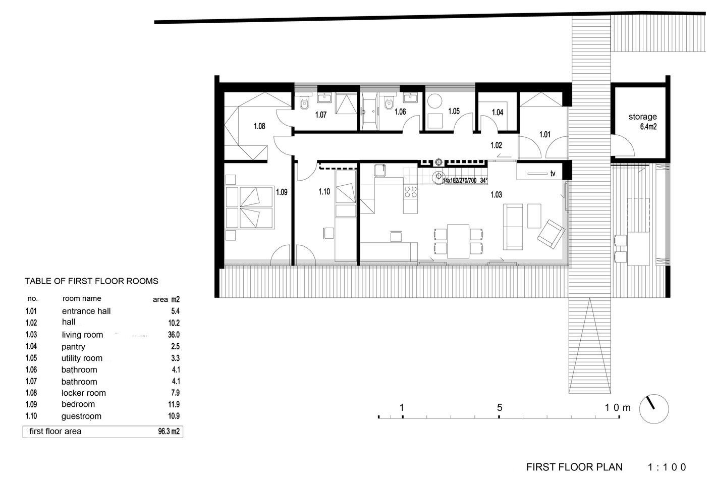
Na prvom podlaží s celkovou plochou 96,3 m² nájdeme logicky usporiadané zóny na každodenný život, prácu aj relax v súkromí či v spoločnosti návštev. Vstupná hala vedie k úzkej chodbe, ktorá je prepojená takmer s každou časťou podlažia. Nájdeme tu obývaciu izbu, technickú miestnosť, špajzu, dve kúpeľne, hosťovskú izbu, spálňu, šatník a úložné priestory. Okrem toho je pre majiteľov aj návštevy k dispozícii príjemná zastrešená veranda, ktorá sa tiahne celou šírkou domu a poskytuje priestor na spoločné stolovanie na čerstvom vzduchu (a zároveň je pod ochranou strechy proti poveternostným vplyvom).
Finalizácia projektu sa mierne odklonila od pôvodných náčrtov a plánov, avšak pôvodná myšlienka bola zachovaná – architekti chceli vybudovať „dom v dome“. Masívny plášť tvorený z veľkej časti strechou s červenou strešnou krytinou má svoje opodstatnenie – okrem toho, že napĺňa miestne stavebné požiadavky, poskytuje ochranu pred slnkom a dažďom pre početné zasklené priečky južnej fasády a verandu tiahnucu sa pozdĺžne popri jednotlivých miestnostiach so zasklenými stenami smerom k exteriéru.
Z interiérovej strany je krytie terasy obložené smrekovými doskami. Priestranné podkrovie poskytuje priestor s plochou 42,1 m². Otvorená galéria je voľným pokračovaním spoločenského priestoru. Interiér je ladený v svetlých farbách v kombinácii s drevenými či kovovými povrchmi a kontrastnou pokojnou tmavomodrou farbou. Aj v tomto prípade platí, že v jednoduchosti je krása.
Prístup na pozemok a do domu je zo severovýchodnej strany, pričom parkovacie miesta sú logicky umiestnené priamo pri vjazde, tak, aby nerušili pohyb po pozemku či krásne výhľady na krajinu.
Prehľad:
Architektonické štúdio: Prodesi
Lokalita: Ládví, 251 68 Kamenice, Česká republika
Zodpovedný architekt: Ing. arch. Pavel Horák
Spolupráca: Radim Oblouk
Realizátor: Domesi, s. r. o.
Plocha: 178 m²
Rok realizácie: 2016
Text: Anna Martausová
Foto: Prodesi
Zdroj: archdaily.com
























