4-podlažná drevostavba slúži ako sociálne bývanie
Judenburg je malé stredorakúske mesto z 13. storočia, v ktorého severnej časti vznikla nízkonákladová bytová výstavba. Ide o prvú 4-podlažnú drevostavbu v Rakúsku využívajúcu inovatívnu technológiu vrátane panelovej výstavby a prefabrikovaných laminovaných balkónov.
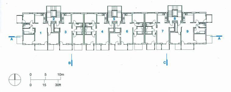
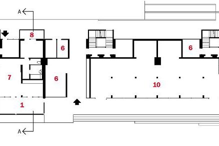
Mesto Judenburg a spolková krajina Štajersko sponzorovali medzinárodnú súťaž, ktorej víťazom sa stal kalifornský architekt Mark Mack so svojou urbanistickou štúdiou výstavby 600 bytových jednotiek a príslušnej infraštruktúry. Poskytuje otvorenú a flexibilnú infraštruktúru, kombinuje verejné, poloverejné a súkromné priestory. Klientovi navrhol aj 4-podlažný 22-bytový nájomný dom s 2- až 4-izbovými bytmi, maloobchodnými priestormi na prízemí a podzemnou garážou, na ktorý sa pozrieme bližšie. (Rakúske sociálne bývanie funguje na princípe štátom dotovaného prenájmu, ktorý umožňuje nájomníkom odkúpiť si svoje byty po 10 rokoch.)Strecha domu je z ľahkého hliníka, podopretá útlymi oceľovými stĺpmi opretými o budovu. Balkóny upevnené k fasáde sú prefabrikované. Žiarivé farby, charakteristické pre Marka Macka, možno vidieť na fasádnych drevených paneloch pod oknami. Konštrukciu podláh a stien tvoria prefabrikované špeciálne laminované panely z pevného vždyzeleného dreva – materiál nazývaný KLH vyprodukoval miestny závod. Samotné steny sú vrstvené a prevetrávané: panely KLH zvnútra, neopracovaný smrekovcový obklad zvonka, tepelná izolácia a vzduchová medzera medzi nimi. Schodiská sú betónové s prefabrikovanými prvkami.
Projekt: Mark Mack, Jeff Alsbrook, Roland Hagmueller, Ariel Asken; Johann Riebenbauer
Ateliér MACK Architect(s), činný od roku 1985, je uznávaný vďaka nápaditej a elegantnej architektúre, čistote formy a farebnej jednoduchosti, jasnej konštrukcii i úcte k tradícii a prostrediu. Zameriava sa na obytné projekty v rôznych mierkach, navrhuje tiež múzeá, interiéry, reštaurácie, obchody a showroomy. Mark Mack študoval vo Viedni a od roku 1993 je profesorom na Fakulte architektúry a urbanizmu A.UD UCLA v Los Angeles, prednáša v Amerike, Európe i Ázii a všade má aj viacero architektonických realizácií. Je tiež publikačne činný.
Použitá literatúra
1.McLeod, Virginia: Detail in Contemporary Timber Architecture. London: Laurence King, 2009, s. 100 – 103, ISBN 978-1-85669-641-8.
2.Online: http://www.advantageaustria.org/ca/events/KLH.pdf.
3.Online: http://www.markmack.com/.
TEXT: Ing. arch. Lucia Benkovičová
FOTO: Manfred Seidl
-big-image-438x292.jpg)
-big-image-438x292.jpg)
-big-image-438x292.jpg)
-big-image-438x292.jpg)
-big-image-438x292.jpg)
-big-image-438x291.jpg)
-big-image-438x292.jpg)
-big-image-438x292.jpg)
-big-image.jpg)
-big-image.jpg)
-big-image.jpg)
-big-image.jpg)
-big-image.jpg)
-big-image.jpg)
-big-image.jpg)
-big-image.jpg)
-big-image.jpg)
-big-image.jpg)
-big-image.jpg)
-big-image.jpg)
-big-image.jpg)




