Dom z preglejky
Manželský pár, pán a pani Cornilleau, sa rozhodol vybudovať rodinný dom pre seba, svoje deti a vnúčatá. Základnou požiadavkou bolo, aby dom zapadol do existujúcej vidieckej architektúry francúzskej deinky Nabirat. Architekti sa preto rozhodli pre tradičné materiály – drevo, sklo a betón.
Zadávateľom projektu na rodinný dom Cornilleaus Hose bol manželský pár, ktorý pochádza priamo z francúzskej dedinky Nabirat ležiacej v departmente Dordogne v regióne Akvitánsko. Stavba má v budúcnosti plniť funkciu trvalo obývaného rodinného domu pre starnúce osoby a ak to bude potrebné, byť prístupný aj pre invalidný vozík.
Dom je situovaný vo vidieckej komunite, charakteristickej miestnymi kamennými budovami, sušiarňami tabaku a viacerými súčasnými domami so štandardnou konštrukciou. Cornilleau House sa nachádza na severnej hranici pozemku pred rozľahlou južnou záhradou.
Otvára sa na juho-západ smerom ku záhrade prostredníctvom vysokých otváravých zasklených okenných konštrukcií usporiadaných v nepravidelnom rastri, osadených v drevenej fasáde domu. Tieto otvory možno zakryť drevenými okenicami, ktoré sú súčasťou konštrukcie opláštenia. Okenice umožňujú dom úplne uzavrieť v čase, keď nie je obývaný a zároveň poskytujú ochranu proti prenikaniu priameho slnečného žiarenia do interiéru domu.
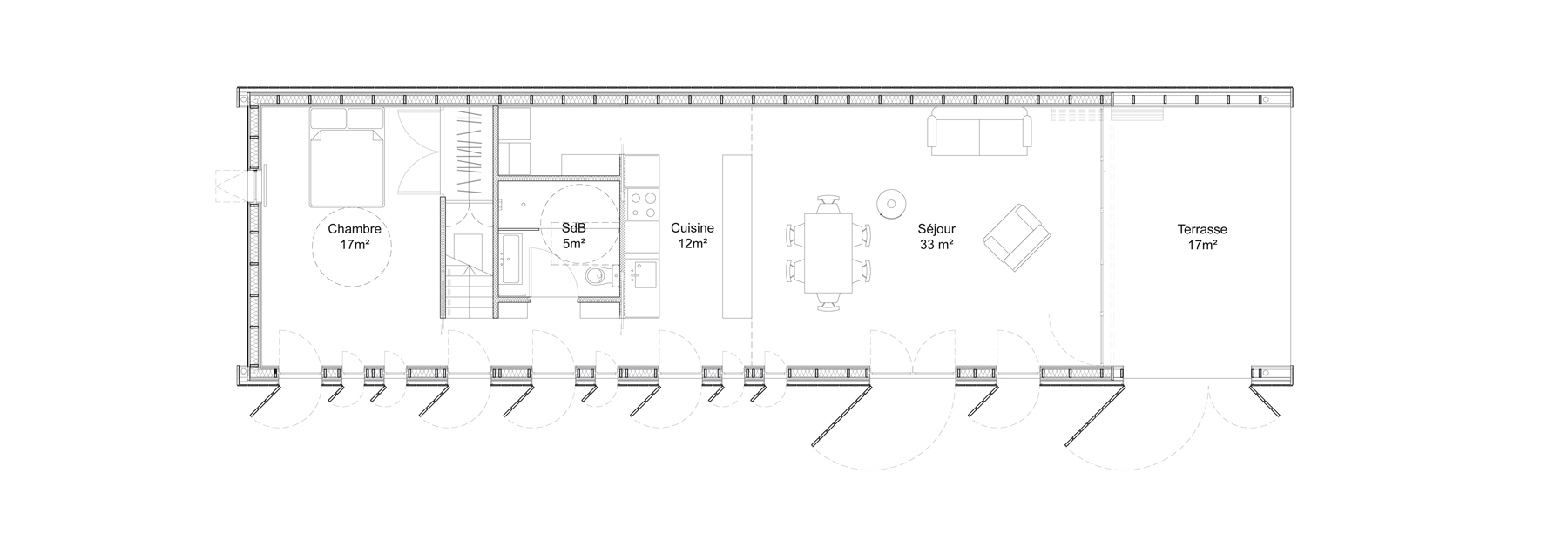
Tvar domu je daný vonkajšou líniou typickej sedlovej strechy s dvomi štítmi. Tento podlhovastý tvar vytvára veľkorysý vnútorný priestor. Vlhké zóny sú situované v srdci domu. V interiéri sa použili preglejkové panely, ktoré tvoria základ pre mezanín.
Podlahu tvorí doska z hladeného betónu vytiahnutá do exteriéru, kde plní funkciu terasy. Veľké zasklené okná prepájajú vnútornú chodbu s exteriérom. Na realizáciu vonkajšej obvodovej konštrukcie sa použili drevené hranoly z douglasky a panely z borovicovej preglejky.
Projekt: nová výstavba, realizácia
Klienti: pán a pani Cornilleau
Architektonické štúdio: CoCo architecture
Dátum realizácie: 2010/2012
Pôdorysná plocha: 90 m2
Cena realizácie: 140 000 € (bez dane)
Miesto realizácie: Nabirat (Francúzsko)
TEXT: CoCo architecture, wad
FOTO: © Edouard Decam|www.edouarddecam.com

















