Dom vo vinici
Len málo ľudí si môže dovoliť hostiť svojich priateľov na streche domu. Ak ju však architekti premenia na zelenú lúku, stane sa realitou aj strešné leňošenie v tráve.
Dom sa nachádza na najvyššom bode hrebeňa kopca Vinice na okraji českého mestečka Vysoké Mýto. Ako už napovedá názov, terasy vo svahoch sa v minulosti využívali na pestovanie hrozna. Výrazný horizontálny tvar domu cez celú šírku pozemku nadväzuje na terasovité usporiadanie terénu. Zasklené rohové okná odľahčujú hmotu domu a zároveň umožňujú dôležitý výhľad do okolitej krajiny.
Najkrajší výhľad však poskytuje strecha, pokrytá hustým trávnatým kobercom olemovaným atikou z kameňa. Zeleň prechádza na fasádu v časti, kde je nainštalovaná vertikálna stálo zelená fasáda.
Návrh vertikálnej fasády aj zelenej strechy je inšpirovaný profesiou klienta, ktorý pracuje ako profesionálny záhradník.
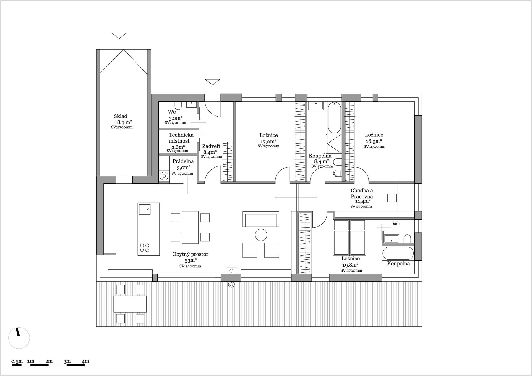
Vnútorné usporiadanie domu vychádza z jednoduchého konceptu hlavnej obytnej miestnosti s kuchyňou orientovanou na juh s výhľadom na Vysoké Mýto. Na hlavnú obytnú miestnosť nadväzujú zo severnej strany detské izby a spoločná kúpeľňa. Na západnej strane je cez chodbu – pracovňu prístup do spálne s vlastnou kúpeľňou. Na vstupe do dome zo severnej strany je umiestnená technická miestnosť a WC pre návštevy.
Názov projektu: Dům na Vinicích
Autori: MgA. Tereza Kučerová, MgA. Patrik Zamazal, MOLO ARCHITEKTI
Projekt: 2009
Realizácia: 2010 až 2012
Dodávateľ: Josef Novotný
Zastavaná plocha: 177 m2
TEXT: MOLO ARCHITEKTI, wad
FOTO: Sphaericus


















