Dom s ateliérom
„To miesto sa mi vždy páčilo. V slepej ulici, na stráni, s výhľadom do údolia. Navyše tu často povieva vietor, ktorý celé ovzdušie výborne prečisťuje. Keď som objavil zarastenú záhradku s napoly zrúcanou chatkou, bola to láska na prvý pohľad. Tak dlho som presviedčal majiteľku, až mi ju nakoniec predala. Po zhruba dvoch rokoch od začatia prác na projekte sme tu oslávili prvé Vianoce.“
Takto, priam idylicky komentuje zrod svojho domu majiteľ. Ostatne pokoj, vyrovnanosť či kontemplatívnosť sú prvými a najsilnejšími dojmami z návštevy v dome neďaleko hlavného mesta. Kým nás však majiteľ uvedie dovnútra, vyberme sa do záhrady. V nej dominujú staré stromy, ktoré odolali pílam a ťažkej technike – pôvodne spustošená záhrada trpela množstvom náletových drevín a nekultivovaných porastov.

Podobne prozaický bol aj spôsob, ako vlastne spolupráca medzi architektom a investorom začala: „Vojtěch v tom čase ešte študoval. V podstate sme príbuzní, takže keď som začal uvažovať o stavbe domu, zvolil som si človeka, ku ktorému mám predovšetkým ľudsky blízko a ktorému môžem dôverovať. A nepomýlil som sa. Mojou ambíciou totiž bolo získať moderný, ale pritom do značnej miery konformný dom. Netúžil som po žiadnych gestách,“ hovorí majiteľ. Stavbu samotnú teda navrhoval architekt, interiér majiteľ v spolupráci s architektom a jednotlivými remeselníkmi.

Trošku atypicky je hlavný vchod situovaný na medzipodestu, súkromné obytné priestory, spálňu a pracovňu nájdeme na hornom podlaží. Nemôže chýbať terasa prístupná zo spálne i pracovne a – už spomínaný unikátny priehľad do ateliéru.

Zaujímavosťou sú stropy: „Po dohode s investorom som navrhol atypickú trámovú konštrukciu s viditeľnými trámami, ktoré tvorí vždy dvojica fošní s priznanými oceľovými príložkami. Nechýba železobetónová, 60 mm hrubá doska. Konštrukcia stropov na poschodí je kombinovaná z fošní a oceľových I-profilov,“ charakterizuje ich architekt Jirsa. Zaujímavosťou sú aj zvody vedené v múroch alebo tepelné čerpadlo napojené na dva hlbinné vrty, dodávajúce teplo do podlahového vykurovania.
Netechnikov však zaujíma predovšetkým interiér. Majiteľ sa venoval najmä výberu materiálov a farieb, ich použitiu pritom nechýba logika. Aj keď – človek mieni… „Mám rád prírodné materiály. Podlaha je drevená v kombinácii s dlažbou. Túžil som po materiáli, ktorý bude zviazaný s prostredím – vybral som si kremenec, nakoniec som však zistil, že ho vozia z Číny.“ Sivé a krémové obklady kuchyne a kúpeľní sa striedajú v odtieňoch, podľa logiky svetla a tmy jednotlivých podlaží.

Interiér dotvárajú všadeprítomné umelecké diela – vybrané a rozmiestnené tak, aby neprekážali, ale aby každé dostalo priestor, aký si zaslúži. Dom s ateliérom je miesto umeniu priamo zasvätené, je však na hony vzdialené svätyniam uctievačov zberateľského fetišu. Vládne tu vkus, harmónia a už spomínaný pokoj. Ale to sa už pomaly rozsvecujú svetlá v ateliéri, neklamné znamenie, že návšteva sa končí a začína práca. Naposledy sa pokocháme pohľadom do údolia a zanecháme domáceho pána jeho múzam.
![]() |
![]() |
| Rezy | |
![]() |
![]() |
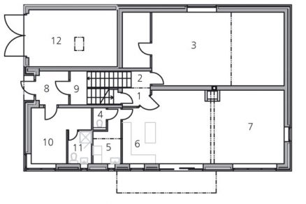
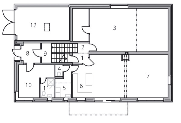
| Pôdorys vstupu a 1. NP
1 – pivnica, technológie |
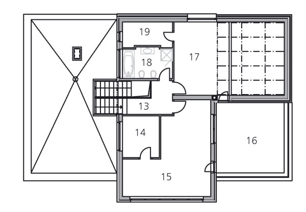
Pôdorys 2. NP
13 – chodba |
Matej Šišolák
Foto: Vasil Stanko















