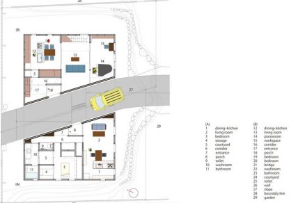
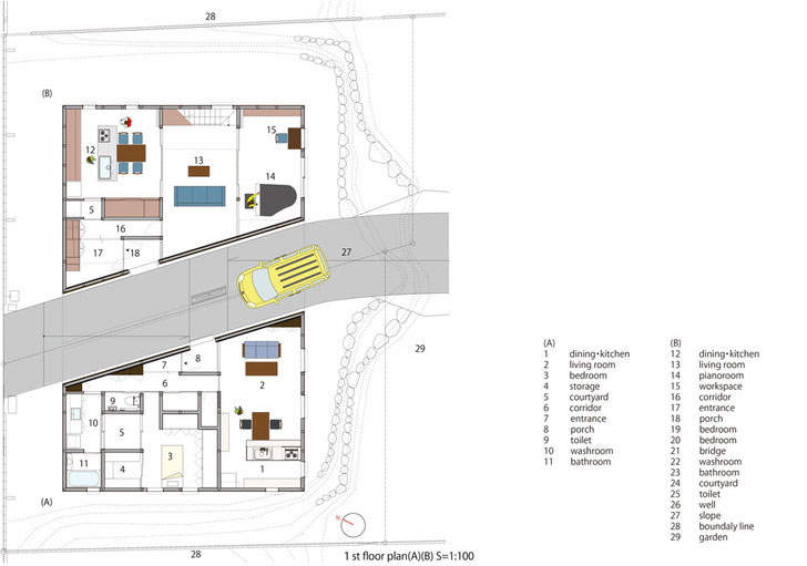
Dom rozdelený cestou na dve časti
Prejazd medzi dvoma objektmi nie je v prípade tejto dvojice stavieb žiadnym tajomstvom. Úzky pozemok si vyžiadal príjazdovú cestu medzi dvoma samostatnými domami. Niekoľko centimetrový predel na vrchu oblúku symbolizuje hlbšiu súvislosť – domy sú síce nespojité, ale zároveň obývané príslušníkmi jednej rodiny.
Oba objekty vytvárajú dojem jedného celku, no každý má svoj vlastný ráz a nie sú na pohľad identické. Dvojpodlažnú časť obýva rodina s jedným dieťaťom, v tej jednopodlažnej býva ich babička. Každý z nich má odlišné požiadavky na bývanie, ktoré boli pri stavbe zohľadnené.
Podľa noriem sa síce zakrivené strechy takmer dotkli, ale v tejto podobe s úzkou medzerou ide legislatívne o dva oddelené domy.
Krytá príjazdová cesta poskytuje určitý druh komfortu pre peších aj motoristov. Vstupy dovnútra sú orientované do priestoru chráneného pred dažďom.
Druhé podlažie robí z vyššieho domu dostatočne priestorné zázemie pre mladú rodinu.
Nenápadný predel spôsobil, že ide o dva objekty. Hranica medzi dvoma úsekmi sa nachádza na vrchole oblúka, kde je celková hmota najužšia.
Kompozičný návrh nesie v tomto prípade klasické črty architektúry od Akia Nakasu. Reaguje na svoje okolie a prvotné obmedzenia (napr. úzku parcelu s požadovaným prejazdom) sa snaží premeniť na prednosti.
Žiadne z okien nebolo orientované na sever a do rušnej ulice a dostatok prirodzeného svetla sa šíri zo strešných svetlíkov.
Neprehliadnite na www.asb.sk:
Záhradný domček priamo od architekta
Dokončený rodinný dom – ide to aj bez omietky
Revolučný fenomén v stavebníctve – pozitívny dom ako unikátny prefabrikát
Vysoký strop opticky zväčšuje priestory v jednopodlažnom dome. Spoločenská zóna – obývacia miestnosť s kuchynským kútom – tak menšiu podlažnú plochu kompenzuje priestrannosťou.
Zakrivenie stien nefunguje len na ideovom princípe. V mieste, kde sa nachádza v zaoblení ostrý uhol, boli vstavané skrine na uskladňovanie.
Južná stena má okná orientované do malej okrasnej záhrady v japonskom štýle.
Dĺžku parcely vymedzili z oboch strán dve cesty. Prejazd spojil obe komunikácie pre potreby obyvateľov tejto dvojice domov.
V dvojposchodovom dome napomáha presvetleniu miestností malé vnútorné átrium.
Jednoduché vybavenie interiéru malým množstvom nábytku robí aj malé miestnosti väčšími, pretože nie sú príliš zaplnené.
Obývacia miestnosť s dvojitou výškou stropu definuje dôležitosť tejto miestnosti pre rodinný život vo väčšom z domov.
Na obývaciu miestnosť nadväzuje zasklenou stenou pracovná miestnosť s klavírom.
Lávka nad obývacou izbou spája detskú izbu, spálňu rodičov a zázemie na poschodí.
Povrch zakrivenej steny je z keramickej dlažby. Jej lesklá plocha odráža rôzne druhy denného svetla v závislosti od toho, či svieti priame slnko alebo len preniká svetlo cez oblaky.
Zasklenie napomáha nielen šíreniu prirodzeného svetla. Miestnosti a ich užívatelia sú priehľadnými stenami viac zapojení do rodinného života. Oblúk zasa spája dva domy do jedného – trojgeneračného.
Viac na http://inhabitat.com
TEXT: Katarína Vankušová
FOTO: Naf Architect & Design





























