Doboška vo svahu
Na severe a severozápade od Brna sa krajina mierne dvíha do zalesnenej pahorkatiny. Vidiecka zástavba sa tu tradične zdržiavala na rovinatých pozemkoch a len kde-tu sa odvážila na úpätia svahov. Kto sa vyberie do niektorých dedín len desať-päťnásť minút cesty autom od ruchu mesta, ten zistí, že za posledné roky sa súčasná výstavba rozbehla aj do vyšších polôh. Výhľady na krajinu, blízkosť lesa a možnosť zaujímavého architektonického riešenia rodinných domov opretých do svahov prilákali mnohých mešťanov k životu na vidieku.
Majiteľ, autorizovaný staviteľ, si vlastnofiremne postavil dom v kopci ako pamätník svojho stavbárskeho života a azyl, ako on hovorí, „na staré kolená“. Vodičkovci sú už po tretiu generáciu verní stavbárskemu umeniu. Bol to jeden z dôvodov, prečo sa rozhodli pre murovanú stavbu.
Našťastie, podložie, na ktorom sa stavalo, malo priaznivé podmienky na zakladanie: „Po inžiniersko-geologickom prieskume sme vedeli, že aj keď budeme stavať na strmej parcele, súdržné podložie nám nebude stavbu zbytočne komplikovať.“

Nepatrí k vilám, ktoré ovládnu prostredie, v ktorom vyrástli. Postavili ju tak, akoby sa pred chvíľkou vysunula zo svahu a pritom ostala prikrytá lesom a lúkou. Zelená strecha, biely kubus reprezentačného podlažia, nižšie podlažie obalené lomovým kameňom, zelená terasa, vysunutý objem prízemia, modré linky zasklených plôch – architektonická doboška, naskladaná do pokojných vodorovných vrstiev a ochutená drevenými prvkami ako pripomienkou tradície tesárskeho remesla. Staticky a vzhľadovo príjemné sústo pre jeden z kopcov v Bobravskej vrchovine.
Strmý pozemok tu terasovito klesá až k prístupovej ceste. Od bieleho podlažia, ktoré sa vysunutými kubusmi vznáša nad okolím, cez priečelie prvého poschodia, ktoré ustupuje smerom k svahu až k predsunutému prízemiu, sa vila postupne usadila v kopci nad dedinou.
Stavba sa najmä tretím podlažím a veľkými zasklenými plochami najviac otvára juhu. Voľnú dispozíciu obývacej a jedálenskej časti spojili s kuchyňou a ukončili veľkorysým zasklením. Kút otvorenej dispozície spoločenskej časti poschodia ostal za sklenenou stenou, jeho plocha patrí terase, ktorá ostala vďaka posuvným dverám v priamom spojení s obývačkou. Okrem atypicky zaskleného kúta s odvážne predsunutým zastrešením a perfektne vyriešenou statikou voľných presahov objemného tretieho podlažia má stavba aj nezvyčajné spojenie so svahom.
Kde je mačka na rozpálenej plechovej streche?

„Zelené strechy majú za sebou viac ako tisícročnú históriu. Súčasné stavebné technológie a materiály im uľahčili návrat do modernej architektúry. Nie sú zaujímavé len pre zelený efekt, ale vďaka skladbe a vrstve pôdy s rastlinným porastom vytvárajú priaznivú tepelnú krivku. V interiéri pod takouto strechou sa udržiava príjemná mikroklíma: v lete strecha teplo pohltí a v zime zas zateplí konštrukciu budovy,“ vysvetľuje majiteľ. „ Ak sa záhrada na streche urobí poriadne, strecha zaizoluje a podľa potreby sa nasype pôda v 5 až 20-centimetrovej vrstve, mala by strecha slúžiť naveky. Samozrejme, že ako o všetko, aj o záhradu na streche sa treba starať. Treba ju občas vyplieť a zostrihať.“

„Drevený strop nad spoločenskou zónou, i keď je staticky a funkčne plnohodnotný, sme nechali pripevniť o železobetónovú stropnú dosku. Takto sa trámy ani po dlhšom čase neskrútia. Oceľou vystužené betónové dosky stavbu dokonale staticky zabezpečili aj v miestach, kde sa miestnosti vysúvajú z priečelia do exteriéru.
Záťaž od konštrukcie stropu sa prenáša oceľovými stojkami do prievlakov a znova do stojok, až dole do pásových základov domu,“ objasňuje statické súvislosti pán Vodička. V každom záreze a v každom mieste, kde sa jednotlivé podlažia zahĺbili do strmej parcely, našiel architekt dispozičné riešenia, ktoré naplno využili objem domu. Na prízemí sa do svahu opiera šatník, na prvom poschodí technická miestnosť s tepelným čerpadlom, o poschodie vyššie, hneď vedľa kuchyne, majú práčovňu a odvetranú komoru, ktorú by im mohli závidieť aj majitelia vínnych pivníc.
Počas chladných dní sa interiér zohrieva podlahovým vykurovaním: „Dobrého remeselníka nie je jednoduché dostať na stavbu. Máme nemilú spomienku na ukladanie podlahy, čo nie je záležitosťou pre amatérov. Nekvalitne nám ju zaizolovali, a keď som prišiel na kontrolu, ukázalo sa, že polystyrénové dosky a hadice podlahového kúrenia nesedia, dilatácie odflákli. Podlahu museli vybrať a urobiť nanovo. Cena pri výbere stavebnej firmy by mala byť až na treťom, ak nie štvrtom mieste. Dobrá stavebná firma nepodlieza cenou, ale rešpektuje normy a poctivú prácu.“
Zelený funkcionalizmus

„Návrh citlivo vychádza z princípov funkcionalizmu a zároveň vpúšťa do objektu trochu rustikalizmu. Všetko s mierou a len toľko, aby vzhľad budovy neskĺzol do nesúrodej zmesi štýlov. Architekt dohliadal na každý krok už len preto, že takýmto mixom sme lavírovali na hrane gýča, ktorý by sa mohol zvrhnúť na niečo násilné, čo nikto z nás nechcel. Viete, na začiatku sme za ním prišli s haldou časopisov s vilami v španielskom provinčnom štýle s oblúkmi a množstvom drevených prvkov.
Vyhlásil, že s tým za ním nemáme chodiť. Prvý návrh domu sme len ťažko predýchali, ale nakoniec sme sa vyladili do spoločnej predstavy o síce modernom, ale vďaka pohľadovým materiálom prírodnom dome,“ zaspomína pán Vodička, kým vchádzame z terasy pokrytej drevom bangkirai do obývačky. Biele steny sa dvíhajú z podlahy pokrytej dubovým drevom až k trámovému stropu. Drevené trámy prebiehajú celou konštrukciou.
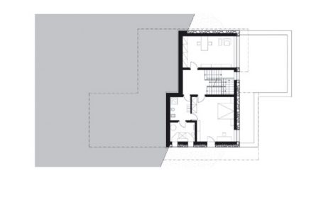
![]() |
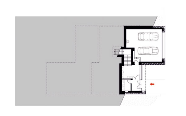
![]() |
| pôdorys suteránu | pôdorys 1.NP |
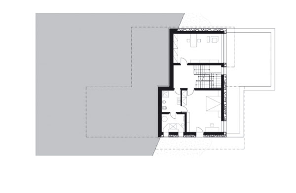
![]() |
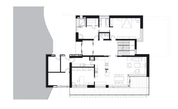
![]() |
| pôdorys 2.NP | pôdorys 3.NP |
Marína Ungerová
Foto: Robert Žákovič















