Ďalší príklad na tému dobrý rodinný dom
Rodinný dom stojí na konci západoslovenskej obce Rohožník v ulici V kútoch. Rovinatý pozemok veterného Záhoria je zo severnej strany chránený borovicovým lesom. Kompozícia hmôt domu kopíruje ochranný val lesa a v maximálne možnej miere sa otvára na juhovýchodnú stranu pozemku – do veľkej záhrady.
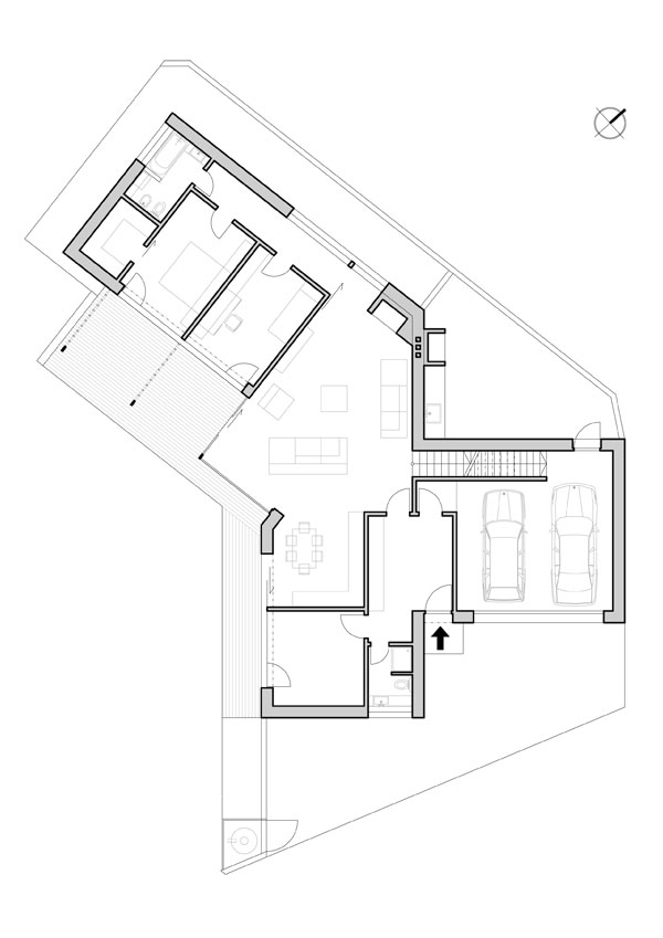
Pre finálnu hmotnú figúru trojpodlažnej veže (1 podzemné + 2 nadzemné podlažia) a jednopodlažného bungalovu bolo rozhodujúce, že investor sa dal presvedčiť architektom, aby vstupná časť do domu (peší vstup a garáž) ostala bez oplotenia, čo prinieslo do dovtedy ničím zaujímavej dedinskej ulice novú kvalitu verejného priestoru.![]() |
![]() |
![]() |
![]() |
V trojpodlažnej veži sa na prízemí nachádza garáž (s prepojením do domu, na zadný párty dvor s grilom a do suterénu s biliardom) a na poschodí knižnica s východom na terasu na streche bungalovu.
V prízemnom bungalove sú lineárne radené a do slnečnej záhrady orientované všetky obytné priestory (tri spálne a hlavný obytný priestor s kuchyňa a jedálňou). Z hlavného obytného priestoru a dvoch spální je východ do krytého átria so zasklenou strechou.
![]() |
![]() |
![]() |
Majitelia si od architekta priali jednoduchý dom (hoci každý z manželov mal o „jednoduchosti“ úplne inú predstavu). Architekt pôvodne navrhoval dom pre bezdetný pár, dnes v ňom bývajú šťastní rodičia dvojičiek.
Rodinný dom
Miesto: Rohožník, ulica V kútoch, Slovensko
Autor: Pavol Pokorný | Pokorny architekti
Spolupráca: Mária Richterová, Jozef Bátor
Investor: súkromná osoba
Projekt: 2007 – 2008
Realizácia: 2009 – 2010
Zastavaná plocha: 220 m2
![]() |
![]() |
![]() |
| Pôdorys podzemného podlažia | Pôdorys 1. nadzemného podlažia | Pôdorys 2. nadzemného podlažia |
Situácia
Foto: Dano Veselský






















