Bývanie s Prahou ako na dlani
Galéria(8)

Bývanie s Prahou ako na dlani

Pražská Hanspaulka je lokalita príjemná na bývanie – tichá štvrť s takmer nulovou dopravou, spojenie do centra zo stanice metra Dejvická je v pešej dostupnosti. Niet divu, že väčšina z rodinných domov, ktoré sa tu vlani aj tohto roku dokončili, má už svojich majiteľov. Platí to aj pre súbor troch vilových domov od architektonického ateliéru Ladislava Lábusa. Výhľady z nich sú úchvatné – zo striech vidieť pražské dominanty od Hradčian a Petřínskej rozhľadne cez Vyšehrad, Pankrác a Žižkovskú televíznu vežu. Vidieť aj rondel novej Národnej technickej knižnice v údolí.

Atraktivitu tunajších pozemkov vycítila spoločnosť ING Real Estate, ktorá tu nedávno postavila 45 rodinných domov. Projekt Hanspaulka – Nové vily dotvára nárožie ulice Na Míčánce a Šáreckej výstavbou troch vilových domov so štyrmi mezonetovými bytmi a troch rodinných domov. Na základe voľby klientov (z niekoľkých ponúkaných riešení) developer poveril návrhmi rodinných domov známe ateliéry – A 69, ADR, Johny Eisler Architects. Zákazku na celkové riešenie zástavby územia a realizáciu troch víl získal Ladislav Lábus.

Príprava projektu bola veľmi starostlivá. „Ponúkali sme niekoľko rôznych variantov vnútorných dispozícií, aby si záujemcovia mohli zvoliť, aká verzia im najviac vyhovuje. Nakoniec nie všetci klienti túto možnosť využili – vzhľadom na prieťahy so získaním stavebného povolenia sa realizačné projekty zhotovili v predstihu a flexibilita návrhu sa plne nevyužila,“ hovorí architekt Lábus. Variabilne bolo možné napríklad obývaciu izbu umiestniť do rôznych podlaží mezonetových bytov. Túto možnosť využil klient prostrednej vily a zároveň reštituent týchto stavebných pozemkov Zdeněk Šiman, ktorý vilu získal prakticky za pozemok a na želanie ktorého sa realizácia víl vyčlenila do samostatného projektu. Zdeněk Šiman mal zároveň ako jediný možnosť ovplyvniť dispozíciu pred spracovaním realizačných projektov. Dosiahol napríklad zmeny umiestnenia schodiska.

Realizáciu stavby o dva roky oddialili protesty rôznych miestnych iniciatív, ktoré sa zdôvodňovali výskytom chránených živočíchov. Protesty aktivistov na čas prerušili dokonca aj výstavbu vtedy už rozostavaných rodinných domov na vedľajšom pozemku.

„Tieto pozemky boli v územnom pláne určené na zastavanie, napriek tomu bol projekt opakovane napádaný, často z čisto formálnych dôvodov,“ pozastavuje sa Ladislav Lábus nad obštrukciami aktivistov, s ktorými sa už kedysi stretol pri návrhu informačného centra, ktoré sa plánovalo postaviť blízko unikátneho súboru avantgardných víl na Babe. A neskrýva svoju únavu zo zneužívania stavebného konania: „Ak stavbu sprevádzajú konflikty, každý krok dopredu je ťažký – stále musíte písať nejaké stanoviská, chodiť na rokovania a podobne. Skrátka musíte na to myslieť, čo berie energiu. Je to strata času, ktorý by sme mohli využiť na iné projekty.“

Altány na streche
V koncepte si autori vytýčili niekoľko základných podmienok: rešpektovať štruktúru okolitej zástavby a nadväzovať na charakter štvrte, navrhnúť prevádzkovo nenáročné a dostatočne reprezentatívne objekty, maximálne využiť výhľady na panorámu Prahy a jasne vymedziť verejné, spoluvlastnícke a vlastnícke plochy.

V každom dome sú štyri samostatné byty s vlastným vchodom. Dolné byty majú k dispozícii záhradu a horné byty sú zvýhodnené okúzľujúcimi výhľadmi na Prahu – či už z nárožných terás na druhom poschodí alebo z plochých striech, ktoré sú čiastočne zazelenené, majú terasu a navyše čiastočne zasklený altán. Nápad s altánom privítali aj developeri. Obývateľná strecha sa plánovala zámerne: „Sprístupnenie striech sa nesleduje iba z dôvodu ďalšieho zvýšenia komfortu vlastných bytov, ale používa sa aj ako motivačný prvok podnecujúci starostlivosť o tzv. piatu fasádu domu,“ píše sa v autorskej správe.

Tehly ako z manufaktúry

Nárožné terasy orientované na južnú a severnú stranu sú vďaka obnaženým rámom konštrukcie charakteristickým a esteticky najzaujímavejším exteriérovým prvkom obytného súboru. Ďalším výrazným prvkom je fasáda – presnejšie povedané primurovka – z neomietnutých tehál. Tehly v okolí sa často používajú na podmurovky plotov; na tej istej ulici nájdeme aj funkcio­nalistickú vilu s fasádou z rovnakých neomietnutých tehál – tie sú ale jednofarebné a hladké. „Nešlo nám o priamu inšpiráciu okolím, išlo nám skôr o rešpekt k charakteru miesta v jeho základných parametroch a hodnotách,“ hovorí architekt Lábus.

Autori hľadali typ tehál s čo najmenšou hĺbkou, ktorý by vyhovoval princípu zavesenej primurovky tvoriacej fasádu a zároveň by vyzeral prirodzene, nie ako továrenský produkt pôsobiaci v konečnom efekte ako obklad. Nakoniec našli belgickú tehlu s rozmermi 22 × 11 × 7,5 cm v jemnej červenej a krémovej farbe. Tehly na fasáde sa striedajú, a to na každej vile v odlišnom pomere. Navrhla sa kompozícia striedania farieb dopredu? „Nedá sa to predpísať; keď nad tým murár príliš premýšľa, nedopadne to dobre. Tam, kde sa na triedenie pristúpilo, bolo ťažké dosiahnuť prirodzený výsledok,“ konštatuje architekt.

Výraznými súdobými prvkami sú aj dosky z cortenu pri vstupných dverách a na záhradných domčekoch, ktoré tvoria hranicu medzi terasami dolných bytov a zároveň skladový priestor záhradného nábytku. Vstupné dvere s nadštandardnou výškou svojím formálnym detailom guľatých okien poukazujú na funkcionalistické tradície. Zaujímavosťou sú vonkajšie drevené rolety vo veľkých oknách na dolných podlažiach, ktoré sa dnes vyskytujú veľmi zriedkavo. V interiéri prevažuje drevo – schodisko aj zábradlie z masívu sa striedajú s elegantnými, antracitovo sivočiernymi kovovými prvkami zábradlia so sklenenou výplňou a s liatinovými vykurovacími telesami v sivočiernej farbe, ktoré výrazne kontrastujú s bielymi stenami.

V podobnom duchu je zhotovené oceľové točité schodisko vedúce na strechu a sivé rámy kovových častí okien. Tieto okná nemožno otvárať, čo na horných poschodiach môže kompli­kovať ich čistenie – čistiť ich možno iba cez časti okien, ktoré sa otvárať dajú. Zámerom bolo docieliť čo najväčšiu priehľadnosť veľkých zasklených plôch a zdôrazniť otvorenosť okenných otvorov z exteriéru. Otvárateľné časti okien majú drevené rámy vo svetlej farbe s odtieňom do oranžova.

Bez spoločných priestorov
Ako už bolo povedané, veľmi dôležitým bodom konceptu je dômyselné rozmiestnenie dispozícií štyroch bytov v týchto vilách. Architektom sa podarilo byty navrhnúť tak, že neexistujú žiadne spoločné priestory vnútri domu. Spoločné sú iba prístupové cesty pre automobily a garáž v jednej z víl. Všetko ostatné je rozdelené podľa jednotlivých bytov, každý byt má nielen samostatný vstup z terénu a do záhrady, ale napríklad aj vlastný plynový kotol.

Prístup do horných bytov sa riešil v niekoľkých alternatívach. Do nich sa väčšinou vstupuje po lávkach na bočných fasádach a ďalej cez zasklené zádverie nad garážou, ktoré slúži ako vstupná hala a zároveň ako priestor spájajúci byt so záhradou. Na želanie Zdeňka Šimana sa v strednej vile vyhradil vstup cez lávku dolným bytom a vstupná chodba do horných bytov sa zredukovala. „Išlo mi o to, aby dolné byty neboli o toľko menšie ako horné – daroval som ich totiž svojim vnúčatám a chcel som, aby sa plochy spravodlivejšie rozdelili,“ vysvetľuje pán Šiman. Priestor pod schodiskami medzi obývacou izbou a spálňou je obvykle zaslepený priečkou alebo masívom a dá sa využívať ako úložný priestor. Iba pri horných bytoch zaberá vyústenie schodiska z masívneho dreveného kvádra roh jednej miestnosti, čím trocha obmedzuje jej využitie – tak je to podľa architekta všade tam, kde si klienti zvolili riešenie so spálňami na poslednom podlaží a vyžadovali tu umiestniť tri spálne.

Dôležitá pozornosť sa v návrhu aj v realizácii venovala akustickej pohode susedov. Tá sa zaistila deliacimi konštrukciami s dostatočnými izolačnými vlastnosťami a špecifickými technickými prvkami, čo bolo pri vzájomnej priestorovej previazanosti oboch bytov nad sebou ťažké najmä na mieste schodiska. Technicky sa akustická separácia horných a dolných bytov navrhla tak, že schodiská z prízemia na prvé poschodia tvoria betónové prefabrikáty plávajúce na akustickej izolácii, položenej na šikmej nosnej železobetónovej doske. Byty sú v oboch prípadoch veľkostne nadštandardné: byty na prízemí a v suteréne majú úžitkovú plochu asi 110 m2, horné byty kategórie 5 + 1 majú úžitkovú plochu asi 170 m2. Príjemnou samozrejmosťou sú dve kúpeľne, niektoré so vstupom priamo zo spálne, a WC na každom poschodí.

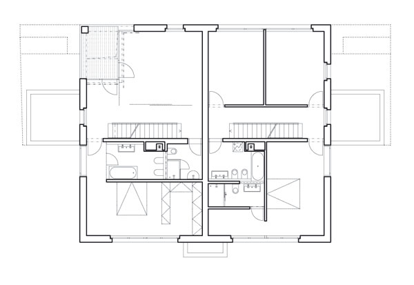
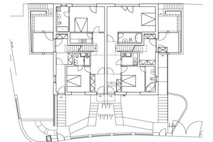
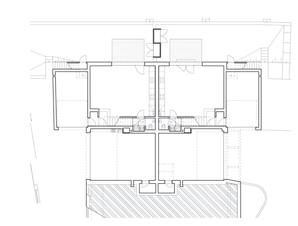
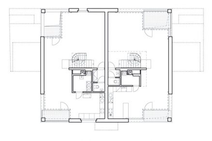
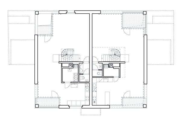
 Pôdorys suterénu  Pôdorys prízemia
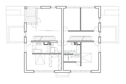
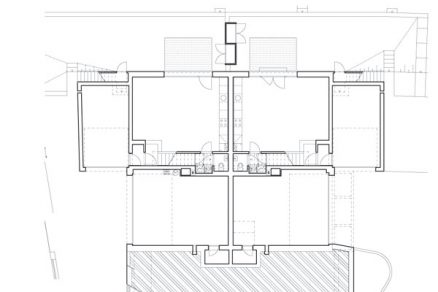
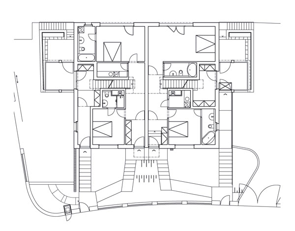
 Pôdorys 1. poschodia  Pôdorys 2. poschodia

Nové vily Hanspaulka
Miesto: Na Míčánce, Praha 6 – Dejvice
Developer: HNV, a. s.
Investor: HNV, a. s. (príprava), Podzimek reality, a. s. (realizácia)
Generálny projektant: Ing. arch. Ladislav Lábus AA – Architektonický ateliér
Autori: Ladislav Lábus, Norbert Schmidt, Vít Krušina, Tomáš Balej, Petr Cimbulka, Marek Nábělek, Martina Novotná
Statika: Němec Polák, s. r. o. – Milan Polák, Jan Valenta, David Hamerský
Ústredné vykurovanie, vzduchotechnika: WATÓ – Renata Rudolfová, Martin Šmolík
Zdravotechnika, plynovod: PRIMA – Milan Maštálka
Elektro: ELPROS – Pavel Šafařík, Stanislav Erhart
Komunikácie: AZA – Antonín Žižkovský, PROMIKA – Jaroslav Míka
Záhradné úpravy: Radmila Fingerová, Jakub Finger
Projekt: 2003 – 2006
Realizácia: 2008 – 2009
Generálny dodávateľ: Podzimek a synové, a. s.

(red)

Článok bol uverejnený v časopise ASB.