byvanie nad mestom
Galéria(8)

Bývanie nad mestom

Mesto ako na dlani, bývanie takmer v centre... Tieto výhody rodinného domu v Žiline vyvažujú pomerne zložitý menší pozemok s ťažším prístupom, ktorý je obklopený zástavbou a veľkými výškovými rozdielmi. Použité stavebné materiály v exteriéri sú založené na vzájomnom farebnom a povrchovom kontraste. Ušľachtilé materiály v interiéri zase vo výraznej miere odrážajú kultivovaný vkus majiteľov. Rodinný dom má svoju intimitu a materiálový charakter, ktoré definujú jeho výraz.

mg 7439 big image
2 big image
3 big image
4 big image
podorys big image
pohlady big image
byvanie nad mestom 6118 big image
Architekti pripravili v dispozícii aj vo vonkajšom výraze malú rafinovanosť – z ulice a od susedných pozemkov sa dom správa ako tichý introvert. „Samozrejme, bol to zámer. Absenciou akýchkoľvek okien či zasklení sme ho chceli dôsledne chrániť pred nežiaducimi rušiacimi pohľadmi, a tým zachovať intimitu rodiny,“ vysvetľuje autor projektu Ing. arch. Roman Klenovič. „Celkové riešenie a orientáciu jednotlivých priestorov v rámci domu sme prispôsobili výhľadu na mesto a na zvlnený horizont Strážovských vrchov na západnej strane. Tam sme umiestnili väčšie zasklené plochy. Dispozícia vychádzala zo základných požiadaviek majiteľov rodinného domu – komfortné moderné bývanie pre 5-člennú rodinu. Navyše, aj napriek menšiemu pozemku mal byť dom dostatočne veľký, pričom nemala chýbať záhrada.“

Tomuto fenoménu bol od začiatku tvorby domu prispôsobený aj celkový koncept. Funkčne sa dispozícia domu jednoznačne člení na dennú, nočnú a pracovno-prevádzkovú časť. Toto pôdorysné rozdelenie priestorov sa odráža aj v hmotovo-mate­riálovom poňatí domu.

Viacúrovňové riešenie
Zložitosť pozemku sa odrazila vo viacúrovňovom riešení domu. Vstupy od ulice reagujú na tvar a sklon prístupovej komunikácie. Garáž je v bezkolíznom výškovom prepojení na ulicu. Samotný vstup do domu je o pol podlažia nižšie, aby sa v rámci prízemia zabezpečil komfortný plynulý prechod do ďalších priestorov.

Znížená úroveň obývacej izby je reakciou na snahu o priblíženie sa k terénu záhrady. Viaceré úrovne v rámci domu pôsobia zaujímavo, vonkoncom nie sú rušivým elementom. V celkovom hmotovom riešení je výškovo zložitá dispozícia decentne zjednotená do kompaktného celku.

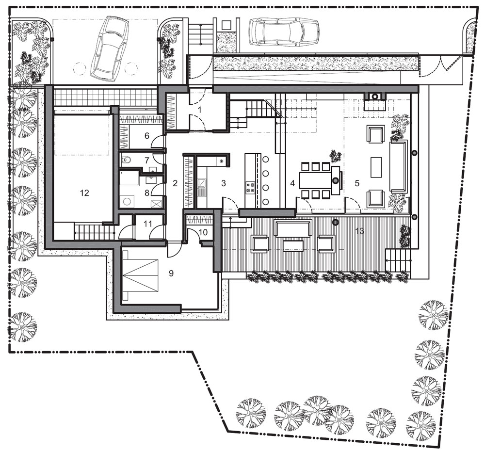
Prízemie
Prízemie domu je v klasickom radení priestorov. Od hlavného vstupu do domu je cez zádverie prístup do dennej a prevádzkovej časti dispozície. Prevádzková časť prízemia – severná časť domu – obsahuje spoločný šatník v blízkosti vstupu, kúpeľňu, WC, prechod do garáže a viac­účelovú miestnosť. Pôvodne bola táto miestnosť plánovaná ako izba pre hostí, časom sa však jej funkcia upravila na relax kútik a pracovňu panej domu.

V dennej časti prízemia je kuchyňa, jedálenský kút a obývacia dvojpodlažná hala s kozubom a vysokým zasklením. Jednotlivé priestory sú otvorené a vzájomne vizuálne poprepájané. Obývacia miestnosť s jedálenským kútom je situovaná o tri schodiskové stupne nižšie ako kuchyňa. Vertikálnosť dvojpodlažného priestoru podporuje zaujímavé zavesené svietidlo. Celkové pôsobenie interiéru obytnej haly bude časom dopovedané veľkorozmernými abstraktnými obrazmi, na ktoré sú v rámci domu vyčlenené viaceré vizuálne dominantné plochy stien.

–>–>

Rodinný dom
Miesto:  Žilina
Autori: Ing. arch. Andrea Klenovičová, Ing. arch. Roman Klenovič, A.R.K. ateliér, s. r. o.
Architektonická štúdia: 03/2006
Projek:  02/2007
Realizácia: 06/2007 – 11/2009
Zastavaná plocha:  230,80 m2
Obstavaný priestor:  1 811,78 m3
Obytná plocha: 111,94 m2
Celková podlahová plocha: 256,43 m2
Počet obytných miestnost:  7

Priestorový program: 
1. nadzemné podlažie: zádverie, šatník, WC, kúpeľňa, hospodárska miestnosť, kuchyňa, jedálenský kút, obytná hala, terasa
Medzipodlažie: garáž
2. nadzemné podlažie: detské izby, spálňa rodičov, šatník, WC a kúpeľňa, terasa
3. nadzemné podlažie: pracovňa, terasa

Poschodia
Poschodie domu je s prízemím prepojené vzdušným, zaujímavo riešeným schodnicovým schodiskom a galériou so zaskleným zábradlím. Zabezpečil sa tak vizuálny kontakt s dennou časťou domu a zaujímavé priehľady, ktoré sa neustále menia pod vplyvom svetla.

Na poschodí je „vláčik“ izieb radených v prísnom zástupe. Pre každého detského člena rodiny je k dispozícii samostatná, komfortná a veselo zariadená izba. Poslednou v zástupe izieb je spálňa rodičov so šatníkom a terasou. Súčasťou bloku nočnej časti je spoločná kúpeľňa a WC pre všetkých členov rodiny.

Samostatnou časťou je u detí obľúbená pracovňa pána domu. Útulná miestnosť, pracovne nazvaná „kapitánsky mostík“, je situovaná na zníženom treťom podlaží. Má samostatnú terasu a v tomto dome už štandardne zaujímavý výhľad na mesto.

Prelínanie interiéru s exteriérom
Vďaka nadštandardne veľkým plochám zasklení je v dome aj napriek skoro jednosmernej orientácii na svetové strany dostatok svetla a je zabezpečený príjemný vizuálny dotyk s exteriérom. Toto prelínanie interiéru a exteriéru podporujú veľkorysé terasy situované v rámci všetkých troch podlaží.
Najviac využívaná je rozľahlá terasa na prízemí, ktorá je prístupná z kuchyne a obývacej izby v priamom kontakte so záhradou. Aj napriek menšej záhrade je okolie domu vďaka svahovitému pozemku dostatočne vzdušné a slnečné.

Konštrukcia a materiály
Z konštrukčno-stavebnej stránky je dom poňatý v klasických materiáloch. Obvodové nosné konštrukcie a deliace priečky sú z murovanej tehly s hrúbkou 440, 300 a 115 mm. Stĺpy a stropné dosky sú železobetónové, monolitické.

Zaujímavé stavebné materiály sa použili v nevšednej kombinácii. Ako sme už spomínali, v exteriéri sú založené na vzájomnom farebnom a povrchovom kontraste. Nezvyčajne je skombinovaný tehlový obklad poschodia s pásom z obkladových fasádnych dosiek a omietanej časti prízemia.

V interiéri dominujú ušľachtilé materiály s atmosférou vkusnosti. Decentné doplnky vytvárajú pocit „ako doma“. „Interiér sme postavili na farebne zladených stavebných častiach,“ hovorí architekt Roman Klenovič. „Dvere, podlahy a schodisko sú z dreva wenge. Odtieň tmavohnedého wenge sa použil aj na časti nábytku v kombinácii so svetlokrémovou farbou. Jednotné farebné poňatie je narušené iba v detských izbách, kde sa použilo viacero farieb, odtieňov a geometrických tvarov. Každá z detských izieb je zariadená v odlišnej farebnosti.“

Technické vybavenie domu pozostáva z podlahového kúrenia v kombinácii s podlahovými konvektormi pred väčším zasklením, klimatizácie, vzduchotechniky, zabezpečovacieho systému a elektricky ovládaných vonkajších hliníkových veľkorozmerových žalúzií.


pôdorys

Ľudo Petránsky
Foto: Dano Veselský

Článok bol uverejnený v časopise ASB.