Bývanie ďalej od mesta a bližšie k rodine
Ľudia žijúci v uponáhľaných mestách často strácajú kontakt nielen s prírodou, ale aj s vlastnou rodinou a v konečnom dôsledku i sami so sebou. Podobne sa cítil klient, ktorý sa rozhodol postaviť nový domov v dedinke Oröd na juhu Švédska. Nové bývanie malo umožniť zblíženie rodiny a taktiež život vo väčšej harmónii s prírodou.
Medzi jazerom a štrkovou cestou
Územie, na ktorom sa pozemok na stavbu trvalo obývateľnej chaty nachádza, je výrazne svahovité s vrcholom uprostred. Nový dom stojí neďaleko tohto vrcholu. Smerom na západ je malé jazero, smerom na východ štrková cesta. Toto umiestnenie pomáha vytvoriť presvetlený interiér a poskytuje skvelý výhľad na les i jazero. Pri jazere sa nachádza stará chata zo sedemdesiatych rokov, kde mohli domáci počas výstavby nového domu prebývať, a tak mať všetko pod kontrolou.
Aký dom si želali?
Základnými požiadavkami boli jednoduchosť a funkčnosť. Dom mal však zároveň komplexne plniť potreby svojich obyvateľov, teda mal poskytnúť priestor na hranie, prácu, intímne zóny, ale aj miesta, kde by domáci mohli privítať viacerých hostí.
Južná fasáda je celá zasklená
Dom je charakteristický klasickým stodolovým tvarom a sedlovou strechou s presahom po oboch stranách. Fasáda je vytvorená z dreveného obkladu, dopĺňajú ju drevené okná a dvere, medené prvky a strecha pokrytá hliníkovou oceľou. Na východe a západe sú umiestnené veľké okná, zo severnej strany je fasáda takmer úplne uzatvorená, pretože neďaleko je susedný dom. Naopak, južnú stenu domu tvorí veľká sklená fasáda, kopírujúca sklon strechy. Sediac v týchto priestoroch na gauči, máte pocit ako vo voľnej prírode – uprostred lesa.
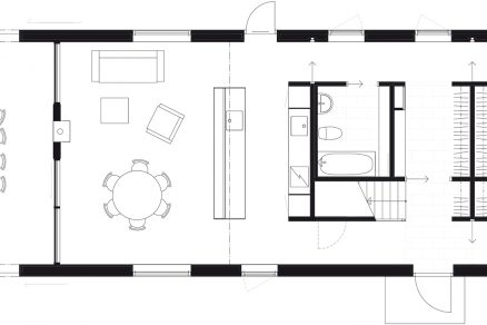
Spoločenská časť tvorí štvrtinu domu
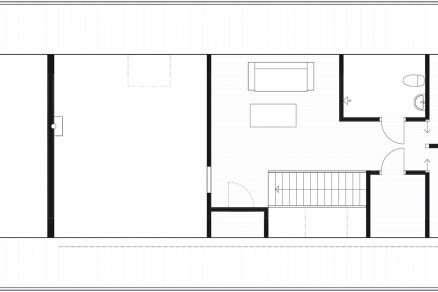
Tri štvrtiny domu tvorí súkromná zóna s uzatvorenými miestnosťami, štvrtina je riešená ako otvorená. Je to flexibilný priestor pre celú rodinu, na každodenné práce, relax, prípravu jedla a stravovanie, rodinné debaty, posedenia s priateľmi. V jednej polovici domu sa nachádza podkrovie, druhá je otvorená až po strechu. Zaujímavým prvkom je štvorcový výrez z podkrovia, cez ktorý môžu domáci komunikovať navzájom medzi podlažiami.
Preglejka a biele steny
Svetlo do spální a na schody privádzajú strešné okná. Interiér je presvetlený a harmonizovaný aj vďaka použitým farbám a materiálom – biele steny, preglejkou pokryté stropy, betónové podlahy. Samozrejme, najfascinujúcejšie je prostredie, v ktorom sa nový dom pre rodinu z mesta nachádza.
Oröd Lada v skratke
Architekt: Jonte Norin
Lokalita: Oröd, Skåne, Švédsko
Rok ukončenia: 2017
Zastavaná plocha: 180 m²
Sabína Zavarská
Foto: Jonte Norin

















