Bungalov z tehál
Galéria(7)

Bungalov z tehál

Výsledná podoba rodinného domu v Horných Počerniciach pri Prahe od architekta Michala Kunca vychádza z jednoduchej rovnice – poloha pozemku, požiadavka majiteľov na jednopodlažnú stavbu plus funkčná dispozícia rovná sa jednoduchý dom s jasnou koncepciou. Vďaka premyslenému použitiu materiálov a nápaditému prístupu k východiskovým podmienkam vznikla architektúra maximálne súčasná a rozhodne nie chladná.

Pozemok sa nachádza uprostred pomerne hustej zástavby rodinných domov z povojnového obdobia. Ide o starú záhradu, a to architekti aj investori chceli využiť – postaviť dom, ktorý by záhradu čo najmenej narušoval, zapadol do nej a stal sa jej súčasťou. Zvolili jednoduchý tvar domu, ktorý vychádza z vnútorných dispozícií. Výsledok pripomína drevené letné domčeky, azda preto dostala stavba prezývku bungalov, hoci je murovaná a obyvateľom slúži po celý rok.

Zvnútra von

„Vždy keď navrhujem rodinný dom, skúšam si v ňom predstaviť seba. Ako by sa mi bývalo, ako by som v ňom žil,“ približuje svoj prístup k práci architekt Kunc. „Začínam vnútornými dispozíciami, skicujem si jednotlivé miestnosti vedľa seba, s ich nadväznosťami a väzbami. Skladám pôdorys tak, aby jednotlivé prvky mali medzi sebou správny vzťah.“

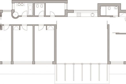
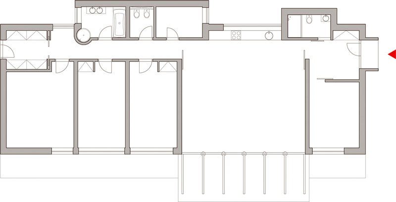
Dispozícia stavby vychádza z dvoch myšlienok: obytné priestory umiestniť na južnú stranu a čo najviac ich otvoriť do záhrady a, naopak, zázemie odsunúť na severnú stranu. Druhým kritériom je hierarchizácia priestorov. V praxi to znamená, že spoločenské miestnosti sú umiestnené bližšie k ulici a intímne priestory spální a kúpeľne zase ďalej od ulice. Severojužné rozdelenie je umocnené chodbou prechádzajúcou celou dĺžkou objektu, takže od vchodových dverí možno dovidieť až na záhradu na druhom konci. Chodba však nie je uzatvorená – v strede domu sa otvára do obývacej izby na jednej strane a kuchyne na strane druhej. V tomto mieste sa nachádza centrum rodinného života; prechádza ním jednak západovýchodná os chodby, jednak aj kratšia severojužná os. Kuchyňa obrátená do severnej záhrady je vybavená pásovými oknami, ale zároveň je po celej južnej strane otvorená do hlavného obytného priestoru, a teda aj do južnej záhrady. Že sa v tomto mieste nachádza centrum domu, poznáme aj z exteriéru. Objekt je vyvýšený o pás úzkych okien, ktoré presvetľujú interiér po celý deň. Vyvýšenie tiež eliminuje riziko, že jednoduchý kváder domu bude pôsobiť príliš fádne.

S podobným prvkom sa stretávame aj v interiéri. Sprchovací kút, navrhnutý ako valec vykladaný farebnou keramickou mozaikou, mierne vyčnieva do chodby a narúša tak jej optickú dĺžku. Jeho valcovitý tvar sa odráža aj na streche, kam ústi svetlík, ktorý presvetľuje kút i celú kúpeľňu.

Pôdorys

Projekt dostal od stavebného úradu výnimku – nebolo preto nutné zakomponovať garáž priamo do domu. „To nám umožnilo zachovať čistotu tvaru a dômyselnú dispozíciu,“ vysvetľuje Michal Kunc. Garážová kocka je odsunutá do južného rohu záhrady, ktorý sa primkýna k ulici.

Materiály, ktoré zvádzajú k dotyku

Dom je postavený zo systému Porotherm s odvetrávanou fasádou zo šedého Cembonitu. V mieste zvýšeného obývacieho priestoru sú do fasády vložené nosníky z lepeného dreva, ktoré nesú strechu a pergolu nad terasou. Tú uzatvára rám z prirodzene zhrdzavenej ocele. Pod ňou sa potom nachádza terasa z tropického dreva masarandruba, ktorá je na rovnakej úrovni s terénom záhrady a prechádza do vonkajšieho bazéna. Dom nie je podpivničený. Úžitkové miestnosti sú vysunuté na severnej strane domu na oboch koncoch. Neprekážajú tak v dispozícii domu a zároveň oživujú objemovú štruktúru.

Ako v exteriéri aj v interiéri kladie autor dôraz na použité materiály. „Dávam prednosť tým prírodným. Myslím si, že materiály by mali rozprávať. Mali by vo vás vzbudzovať chuť siahnuť si na ne, haptika je veľmi dôležitá…,“ vysvetľuje Michal Kunc. Šedi cembonitových dosiek konkurujú sýtohnedé drevené rámy okien. Na severnej strane farebnú škálu dopĺňa červená, ktorá zdôrazňuje vystupujúce časti prevádzkových miestností. Obytné plochy pokrýva tíková priemyselná mozaika. Tento typ parkiet získava v ostatnom čase na obľube. Pôsobí celistvým dojmom, avšak svojou skladbou z malých podlhovastých kúskov dreva, ktoré majú rôznu farebnosť v jednom tóne, vytvára i detail. Navyše sa dajú s výhodou použiť jeho optické vlastnosti – podľa toho, ktorým smerom sa mozaika položí.

Architekt sa na tvorbe interiérov priamo nepodieľal, ale rad prvkov, ktoré ich formujú, je zakomponovaný už v návrhu. „Ide napr. o vstavané skrine, dvere bez nadpražia až k stropu či vstavaný box kuchyne,“ vypočítava Michal Kunc.

Atelier Kunc týmto domom rozšíril počet svojich stavieb v Horných Počerniciach. Na vedľajšom pozemku totiž o niečo skôr vyrástli radové domy od rovnakých autorov. Podobný rukopis je viditeľný – dôraz na materiály, žiadny zbytočný prvok, absencia ornamentov. Objekty v okolitej zástavbe nevyčnievajú, ale rozhodne na prvý pohľad upútajú, minimálne toho, kto sleduje súčasnú českú architektúru.

Názov stavby: Bungalov
Miesto: Horné Počernice
Investor: súkromná osoba
Architekt: Atelier Kunc, s. r. o., Michal Kunc, Daniel Pospíšil, Lukáš Zimandl
Charakteristika: novostavba
Projektant: SK projekt, R. Stoklas, J. Pozděna
Dizajn, návrh interiérov: Michal Kunc
Generálny dodávateľ: Fora Studio, s. r. o.
Začiatok realizácie: 2004
Koniec realizácie: 2005
Funkcia: rodinný dom

Zaujímavosti stavby: jasne definovaný koncept – hierarchizácia priestorov podľa funkcie
Špecifiká stavby: dom zostavený z funkčných blokov, maximálna otvorenosť a prepojenie so záhradou
Detaily: mozaika povrchov a štruktúr jednotlivých materiálov – drevo, sklo, hrdzavý plech, cembonit, tráva

Technické údaje
Konštrukčné riešenie: základová doska železobetónová, steny Porotherm, železobetónová doska stropu
Materiály: obklad domu – cembonitové dosky na kovovom rošte, drevené okná, terasa – bankirai, brána – prírodne korodovaná oceľ
Murivo: Porotherm
Strešná krytina: skladba plochej nepochôdznej strechy, titánzinok, nasypané okruhliaky
Omietky: vnútorná omietka – jemná vápenná štuka
Okná: drevené smrekové, europrofil;  zasklenie – izolačné dvojsklo, protislnečné fólie Hitmirror
Svetlá: Halla – séria 21 (stropné pripevnené svetlá, kovový rámček, trafo)
Kúpeľňa: obklad – mozaika Butterfly
Kuchyňa: MDF doska
Dvere: atypické, bezfalcové, k stropu bez nadpražia, 3d pánty, morený dub
Podlahy: tíková, priemyselná mozaika

Hana Roguljič
Foto: Filip Šlapal, Tomáš Rasl, Julius Pufler