Biela vila s krídlami
Rovinatá krajina, lesy a polia tri kilometre za Ostravou, pokojná atmosféra dedinského prostredia, cyklotrasy, neďaleko klimkovické kúpele, turistické chodníčky, nádherné prechádzky. Na pomedzí dediny a šírych polí rozprestrela krídla pokojná biela architektúra ich nového domu. Obrátená chrbtom k civilizácii sa stala bezpečnou clonou pred ruchmi okolitého sveta...
„My sa zakaždým straaašne tešíme domov,“ pochvaľuje si ona a usádza nás na terasu v ohybe rozložitej vily hneď za zasklenými stenami haly a spoločenského priestoru. On nám nesie voňavú kávu a prikyvuje manželkinmu nadšeniu – keby ich to z času na čas neťahalo na potulky po cudzích krajinách, ich dom by im dokonale a celoročne nahradil rekreačnú vilu v ktorýchkoľvek kúpeľoch; a ešte si tu môžu dopriať aj dokonalé súkromie. To je čoraz vzácnejším úkazom pre mnohých majiteľov novopostavených rodinných domov, ktoré, čím bližšie k mestám, tým viac sa pritískajú k hraniciam susedných pozemkov. Majiteľom bielej vily za Ostravou vymodelovali súkromie podľa ich vlastného priania už v architektonickej štúdii – autor David Kotek v spolupráci s Václavom Kociánom, Janom Müllerom a s prispením majiteľky domu, ktorá mala úplne jasno, čo od vily i architektov očakáva.Hľadá sa parcela, hľadá sa architekt
Na zrealizovanie predstavy o bývaní na vidieku hľadali pokojné miesto s výhľadmi do krajiny: „Bol to prvý stavebný pozemok, ktorý sme si vyhliadli. Potom sme ešte rok obchádzali iné lokality, až napokon sme sa vrátili späť. Naskytla sa nám šanca prikúpiť ďalší pruh záhrady. Bolo to nevyhnutné. Museli sme získať dostatok priestoru na dom, ktorý sa mal stavať za okrajom sedemmetrového ochranného pásma pre vedenie vysokého napätia. Z pôvodných 1 400 m2 máme teraz 2 450 m2. Kúpu sme potvrdili, až keď sme mali úplnú istotu, že parcela bude vcelku. Aj architekta sme si vtedy vyhliadli. Ostravského. Chceli sme spolupracovať s človekom, ktorý má vzťah k regiónu, žije v ňom a sám k nemu patrí. Mysleli sme aj na to, že s miestnym architektom bude jednoduchší kontakt počas realizácie stavby,“ spomínajú manželia na začiatky spred štyroch rokov. On prehľadával internet, zisťoval referencie. Kým si vybrali, obišli štyri architektonické ateliéry.
Pre Davida Koteka sa rozhodli pri osobnom rozhovore: „Páčil sa nám jeho entuziazmus a mal podobný vkus ako my. V časopisoch sme si prečítali aj niekoľko rozhovorov s pánom architektom. Tie nás tiež zaujali,“ vysvetľuje ďalej ona, kým prechádzame do kuchyne. „Nakreslila som svoju predstavu. Mal to byť dom s pôdorysom v tvare písmena V, ale vzhľadom na pozemok a elektrické drôty, bolo v rukách Projektsudia, aby sa stavba prispôsobila podmienkam a obmedzeniam parcely. Od architektov sme chceli, aby sa dom zo strany ulice uzavrel a zneprístupnil. Pritom všetkom sme mali predstavu, že dom bude architektonicky pôsobivý. Súhlasili sme hneď s prvým návrhom, ktorý pre nás v ateliéri pripravili.“
![]() |
![]() |
Čarovanie s papiermi, povoleniami, financiami
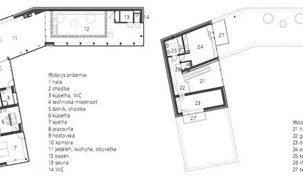
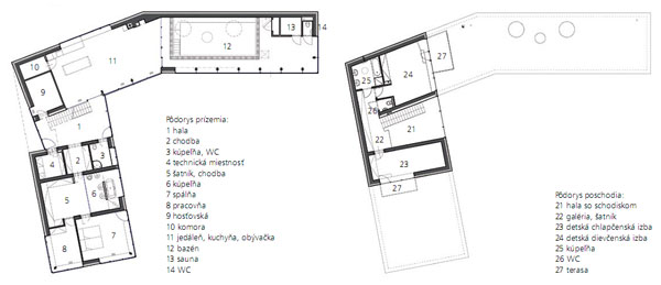
Navrhnutý tvar a dispozícia domu od začiatku majiteľom vyhovovali. Detské izby dostali svoj priestor na poschodí, každá z nich má svoju terasu vysunutú nad plochou strechou. Tú im vyhotovili ako jednoplášťovú, s hydroizolačnou a parotesnou asfaltovou vrstvou. Na nosnej stropnej železobetónovej doske (nad bazénom vyspádovanej) položili parozábranu z asfaltového pásu s hliníkovou vložkou a na ňu nalepili dvojvrstvový tepelnoizolačný materiál. Vrstva zelene, na ktorú si ešte nevydelili financie, bude raz kombináciou akumulačnej
a separačnej špeciálnej fólie, filtračnej geotextílie a vrstvy humusu v hrúbke asi desať centimetrov. „Pôvodne mali byť na dome aj zatrávnené plochy, ale, žiaľ rozpočet na zrealizovanie zelenej strechy by sa navýšil o ďalších 700 tisíc českých korún. Podobne nás financie zabrzdili aj pri vkomponovaní ďalších svetlíkov nad obývačkou,“ priznáva on a spomína, že nejaký čas váhal, či nebude východné krídlo kratšie o priestor vymedzený na vnútorný bazén. Nakoniec ho majú s rozmermi 7 × 3 m.
Firma, ktorá bazén stavala a prvý rok udržiavala, skrachovala, a tak sa majiteľ o svoj bazén stará sám: „Už mám pocit, že každý druhý deň trávim v technickej miestnosti a učím sa, ako zaobchádzať s technikou, aby sme udržali v bazéne hygienu. Ten si užívajú najmä deti. Nás to už natoľko nedrží i keď niekedy relaxujeme pri masážnych dýzach. Dá sa tu však plávať v protiprúde, a to je celkom príjemný tréning.“ No a ešte jeden nemilý zážitok: na vyhotovenie zasklenia stavebných otvorov a posuvných dverí si istá firma vzala zálohu niekoľko stotisíc českých korún: „Skrachovala a stavba sa o polroka zdržala. Našťastie, sa nás to napokon finančne nedotklo.“
![]() |
![]() |
Interiéry a ona
„S Davidim Kotekom som sa radila pri vyberaní materiálov, ktoré by najlepšie ladili s naším interiérom. Pri rozhodovaní mi veľmi pomohli vizualizácie, ktoré v Projectstudio pre nás v niekoľkých variantoch urobili. Nie je celkom jednoduché predstaviť si rôzne povrchy na väčších plochách bez toho, aby vám ich ukázal konkrétny návrh, aby som trebárs videla ako ladí kresba olivového dreva na kuchynskej linke s kamenným obkladom a veľkorozmernou dlažbou. Prešla som množstvo obchodov, samotná štúdia interiéru nám zabrala celý polrok,“ hovorí ona. Maľovala si a lepila výstrižky z interiérových časopisov, preberala svoje predstavy s architektom: „…a robila si domáce úlohy, ktoré od neho dostala,“ smeje sa manžel. Dispozíciu domu a základné rozmiestnenié nábytku určil architekt. „Navrhol aj výhľad cez priezor v severnej obvodovej stene hneď nad úrovňou kuchynskej linky. Linku, okenné parapety, stôl, schody, vstavané skrine, šatníky, obalenie schodiskových stupňov a veľa iných stolárskych prác urobil jeden človek. Bol fantastický! Keď mu nenadväzovala dyha, i keď my sme si nič nevšimli, stolár si kuchynské dvierka odviezol do dielne a sám prerobil. V kuchynskom štúdiu len technický kameň, ktorý sme použili na kuchynskú pracovnú dosku, a parapety nacenili drahšie, ako nás vyšli všetky spomínané práce a materiál u nášho výborného stolára,“ nedajú naňho obaja dopustiť.
![]() |
![]() |
![]() |
![]() |
Súkromný sektor
Zaviedli nás aj do svojho súkromného sektora: „Vaňu máme zabudovanú v takej úrovni, aby som mohla čučať do polí. Manželovi viac vyhovuje sprchovací kút,“ smeje sa a súčasne chváli vlastnosti benátskeho štuka. „Má povrch, ktorý je nielen efektný, ale sa aj ľahko udržiava. Kvapky vody po ňom bez stopy stečú a dokonca nezanechal nijaké škvrny ani môj kozmetický krém,“ dotýka sa steny, na ktorú pred nedávnom naaranžovala samolepiaci kvetinový ornament. Iné časti kúpeľňových stien im obložili keramickým obkladom s kovovými odleskami. Hneď vedľa si zariadili spálňu. Z lôžka majú panoramatický výhľad, občas sa im pod okná zatúlajú srnky. V lete si navečer okná roztvoria. V extrémnych horúčavách sa im síce južne orientované miestnosti prehrievajú, ale pre klimatizáciu sa zatiaľ nerozhodli: „I keď bol náš dom primárne navrhovaný ako dizajnový a stavba pre dobré bývanie, pričom sa natoľko nehľadelo na prísne dodržanie nízkoenergetických pravidiel, máme nainštalovaný rekuperačný systém výmeny vzduchu. Väčšiu časť roka to úplne stačí,“ dozvedám sa od majiteľa.
![]() |
![]() |
Len pri detailnejšej obhliadke spálne sme si všimli nosný stĺp s reflexným povrchom v jej zasklenom kúte. Aj tu majster stolár vyhotovil parapety z technického kameňa: „Čakáme ešte na nočné stolíky a dôstojný drevený piedestál pod televíznu obrazovku, ktorý kultivovane zakryje všetky prípojky. Myslím si, že kto má štýlovú dizajnovú posteľ a samostatnú miestnosť so šatníkom, nepotrebuje nijaké ďalšie skrine v spálni,“ hovorí ona, keď zatvára jedny z bezfalcových dverí. V chodbe si všímame pekný dekor na vstavaných skriniach a šatníku: „Materiál s motívom kvetov doviezol stolár z Nemecka, všetky dvere vyhotovil s dokonalou presnosťou a v jednotnom štýle. V šatni sa nám jeho zásluhou samo od seba rozsvieti bodové osvetlenie. Pán majster zohnal a skompletizoval aj všetky kovania a šatníkové systémy.“ Pýtam sa, či bol vôbec nejaký problém alebo zmena oproti architektonickému návrhu. „S architektom sme sa nezhodli na myšlienke celokovového schodiska. Neoslovilo nás, príliš by svojou hmotou zaťažovalo vzdušný priestor haly, Vymenili sme ho za opticky odľahčenú, ale bezpečnú zasklenú konštrukciu konzolovite votknutých oceľových stupňov. Inak spolupráca s architektom sa vydarila, a tak s ním pokračujeme aj pri zariaďovaní novej ambulancie v Ostrave-Porube.
TEXT a PRODUKCIA: Marína Ungerová
FOTO: Dano Veselský
Článok bol uverejnený v časopise Môj dom.






















