Betónová krásavica
Návrh rodinného domu v okolí Františkových Lázní určovali obyčajné dve slová: interiér a exteriér. Architekti z ateliéru A69 si však na stavbe, odbornej verejnosti známej ako Villa Lea, neoverovali svoj určitý teoretický predpoklad. Naopak hľadali, ako spracovať zadanie a východzie podmienky čo najfunkčnejšie a zároveň tak, aby stavba mala jasný a čitateľný koncept.
Extrovertné prízemie, introvertné poschodie
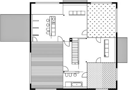
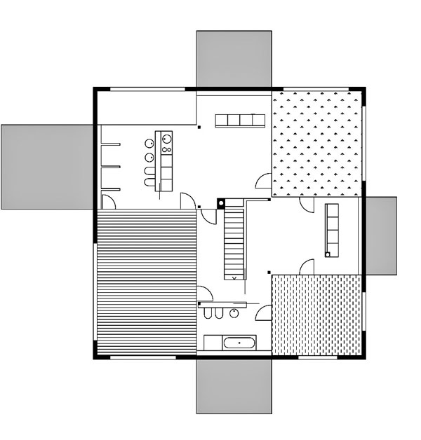
Stavba je dvojposchodová, nepodpivničená. Prízemie je maximálne prepojené s okolím. Veľké zasklené plochy sú vybavené izolačným dvojsklom s vonkajším a vnútorným bezpečnostným zasklením. Sklá sú prefarbené a z exteriéru pred slnečnými lúčmi chránené žalúziami. Priestor preteká medzi štyrmi pevnými prevádzkovými blokmi, v ktorých sa nachádza šatňa, bazén, kuchyňa a izba. Hlavný obytný priestor je o niečo znížený, tvorí akúsi chránenú dolinu. Je od ostatných priestorov oddelený schodíkmi či malou rampou. Nevýhodu konceptu nerovnakých úrovní, ktorý môže byť pri prevádzke nepraktický, by mal vyvážiť pocit intimity, ktorý takéto riešenie umožňuje.
Prvé poschodie má prísny pôdorys štvorca. Vzhľadom na prízemie je akoby pootočené, výsledná forma objektu je tak veľmi členitá. Nachádza sa v ňom spálňa a kúpeľne. Zo spální sú prístupné polouzatvorené átriá, ktoré vymedzujú výhľad do krajiny. Átriá sú malými záhradami, ktoré obyvateľom zaručujú kontakt s exteriérom a zároveň vysokú mieru súkromia. Ich nezasklené okná sa stávajú určitými obrazmi s premenlivým obsahom. Tam, kde stena spálne susedí s átriom, je presklená, okrem neho sa uzatvára. To zaručuje dostatok svetla pri minimálnom kontakte s priestorom mimo dom. Materiály podláh átrií rozlišujú ich charakter. Nájdeme tu triedené riečne okruhliaky, palubovky, ale aj trávu.
![]() |
![]() |
| Pôdorys prízemia a prvého poschodia | |
Konštrukcia a prevádzka
Architekti vo Villa Lea zdôrazňujú až prísnu jednoduchosť, čistotu tvaru a koncepčného riešenia. To sa odráža aj v použití materiálov v ich hrubej podobe. Nosné konštrukcie sú navrhnuté z pohľadového vodostavebného betónu, ktorý je zateplený zvnútra. Stropy nad prízemím tvoria krížom armované monolitické dosky s prerušovačmi tepelných mostov. Strecha je z drevených hranolov vkladaných do oceľových prievlakov. Tie sú k železobetónovej stene kotvené cez upravené prerušovače tepelných mostov. Ornamentom sú tu samotné materiály a detaily ich použitia. V prízemí je betón debnený do dreveného debnenia so zvýraznenou štruktúrou dreva, zatiaľ čo na poschodí do debnenia systémového s viditeľnými montážnymi prvkami. Okná sú zasklené bezrámovo, zvislé škáry sú iba zatmelené silikónovým tmelom a vystužené PUR tesnením.
Dom nie je navrhnutý ako energeticky úsporný, na to má príliš nekompaktný charakter, napriek tomu však architekti spolu s investorom otázku energií nevynechali. Ako hlavný zdroj tepla zvolili tepelné čerpadlo. Betón v interiéri funguje ako tepelný akumulátor a prispieva ku stabilite vnútorného prostredia. O teplotnú pohodu sa cez letné obdobie starajú vonkajšie screeny, čiže žalúzie. Dom je riadený inteligentným systémom Nikobus, ktorý v tomto prípade ovláda meranie a reguláciu tepla, žalúzie a samozrejme osvetlenie.
A la these
Dom bol medzi deviatimi novými parcelami realizovaný ako prvý. Jeho architektúra nie je reakciou na okolitú zástavbu, vychádza zo seba samej, z vnútorného konceptu. Takmer s istotou môžeme tvrdiť, že Villa Lea by vyzerala rovnako, aj keby vznikla ako posledná. Nemožno predbiehať, ale pravdepodobne bude medzi ostatnými domami unikum. A nielen medzi nimi. Miestni obyvatelia si myslia, že vila nie je ešte dokončená, čakajú, kedy sa omietne. Dôraz na jednoduchosť, premyslená dispozícia, ktorá sa premieta aj do osobitej estetiky, autorský prístup isto hovorí v prospech stavby vzhľadom k bohužiaľ bežnej architektonickej úrovni rodinných domov u nás.
Boris Redčenkov, Prokop Tomášek a Jaroslav Wertig si isto môžu pripísať ďalší úspech. Je tu však otázka, či sa nestratila hravosť, či nekompromisná čistota, strach z ornamentov nie je druhým extrémom. Villa Lea isto medzi architektmi a historikmi architektúry nájdeme viac zástancov ako odporcov. Má silnú myšlienku, je to stavba a la these. Čas neskôr ukáže, či sa architektom podarilo rozprúdiť v nej život, previesť ju z ideálneho stavu na papieri do našej rozporuplnej skutočnosti.
Názov stavby: Vila LeaMiesto: Františkovy Lázně – Slatina
Investor: súkromná osoba
Architekt: A69 – architekti, s.r.o.
Ing. arch. Boris Redčenkov, Ing. arch. Prokop Tomášek, Ing. arch. Jaroslav Wertig
Charakteristika: novostavba
Projektant: Ing. arch. Lenka Englišová, Miroslav Veselý, dipl. tech.
Realizácia: 2005
Zaujímavosti stavby: dom je riadený inteligentným systémom Nikobus
Špecifiká stavby: prízemie – maximálne prepojenie s exteriérom
poschodie – vďaka átriám komorná atmosféra pri maximálnom zasklení
Detaily: na poschodí viditeľné montážne prvky debnenia
Technické údaje
Konštrukčné riešenie: ŽB konštrukcia zateplená zvnútra
Materiály: ŽB, tehla; átria – štrk, palubovka, tráva
Murivo: pohľadový vodostavebný železobetón
vnútorné nenosné steny – tehly Porotherm
Omietky: vonkajšie – nie sú, vnútorné – vápenno-štukové
Okná: izolačné dvojsklo, zafarbené v hmote, bezrámové zasklenie
Vykurovanie: tepelné čerpadlo
Generálny dodávateľ: SKELET, s.r.o.
Hana Roguljič
Foto: Ester Havlová















