balansujuci dom od mvrdv
Galéria(10)

Balansujúci dom od MVRDV

Kto by chcel stráviť dovolenku obklopený modernou architektúrou, môže si vybrať z ponuky spoločnosti, ktorá oslovuje renomované architektonické štúdiá a následne nimi navrhnuté domy v turisticky zaujímavých oblastiach Anglicka prenajíma. Posledným prírastkom je balansujúci dom od rotterdamskej kancelárie MVRDV, na ktorého interiéri sa podieľalo dizajnérske a umelecké štúdio Makkink & Bey.

balansujuci 5 big image
materialy balansujuci dom 3 big image
balansujuci big image
balansujici dum big image
balansujuci 4 big image
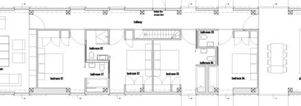
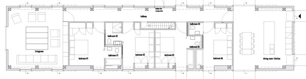
podorys big image
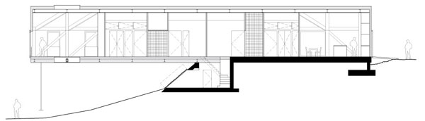
rez big image
balansujuci dom 5068 big image
Špičkovú architektúru spoznáme najlepšie tak, že v nej skúsime istý čas žiť. To si uvedomila britská spoločnosť Living Architecture a začala prenajímať domy od svetoznámych architektov. Propaguje tak kvalitné moderné stavby a vzdeláva širokú verejnosť. Spisovateľ, filozof a kreatívny riaditeľ tejto spoločnosti Alain de Botton preskúmal pojem living architecture (živá architektúra) už predtým vo svojej knihe The Architecture of Happiness (Architektúra šťastia); tento pojem ožíva v postupne realizovaných stavbách.

Modernú architektúru môže človek bežne zažiť v svetových múzeách či na letiskách, ale vďaka tomuto projektu si môže každý na vlastnej koži vyskúšať pôsobenie niekedy až prílišnej extravagantnosti. Domy na prenájom už navrhli napríklad architekti zo škótskeho štúdia NORD Architecture, nórski Jarmund/Vigsnæs Architects, Angličania Michael a Patty Hopkinsovci a tiež laureát Pritzkerovej ceny Švajčiar Peter Zumthor. Ten navrhol dom v Devone, ktorý je zatiaľ vo fáze projektu. V roku 2008 oslovila spoločnosť Living Architecture ­holandskú architektonickú kanceláriu MVRDV, aby navrhla dom na vidieku v Suffolku na východe Anglicka, neďaleko pobrežia Severného mora.

dom,svah,nízkoenergetický,chata

Vnoriť sa do kraja
Keďže stavba mala stáť na svahovitom pozemku, architekti sa rozhodli pre odvážne riešenie – navrhnúť dom, ktorý balansuje na hrane svahu. Nájsť investora, ktorý by sa rozhodol pre podobný projekt, by bolo možno ťažké, ale v tomto prípade mali architekti voľné ruky a nezvyčajný nápad sa páčil aj spoločnosti, ktorá dom v súčasnosti prenajíma. „Prázdninový dom by nemal byť nudný,“ hovorí jeden z autorov návrhu, architekt Winy Maas. „Keď sa pozriete na tento, napadne vás: Je to možné? Neodporuje to zákonu gravitácie? Usilovali sme sa presne vystihnúť moment, keď je stavba vysunutá čo najďalej, ale neprevažuje sa, čo pôsobí možno trochu znepokojujúco.“

dom,svah,nízkoenergetický,tepelné,čerpadlá

Koncept stavby sa však neodvíjal len od problematického pozemku, ale predovšetkým od úsilia vstúpiť do krajiny, čo najbližšie k pozorovaným lesom, kopcom, rastlinám a živočíchom, zároveň by však nebolo potrebné zastavať veľkú časť pozemku. „Dom má jednoduchý tvar, je to obyčajná stavba podobná stodole, akých je v okolí veľa. Chceli sme sa však dotknúť krajiny, stromov, prírody. Preto sme ju vysunuli nad svah, čo najbližšie ku krajine. A keďže v okolí rastú chránené druhy rastlín, nechceli sme sa ich fyzicky dotknúť, len sa k nim čo najviac priblížiť,“ hovorí Winy Maas.

dom,svah,nízkoenergetický,tepelné,čerpadlá

Koberec z trávy
Aj keď sa dom z príjazdovej cesty javí ako malá víkendová chata maximálne pre dve osoby, keď príde návštevník bližšie, uvidí jej nečakanú veľkosť. Tridsaťmetrový dom prečnieva celou svojou polovicou cez svah a akoby strmhlav sa vrhá do prírody. Jeho rovnováhu zaisťuje pevná konštrukcia. Tá balansuje na centrálnom betónovom jadre, ku ktorému je pripojená časť spočívajúca na zemi. Tú tvoria ťažšie materiály, levitujúcu polovicu, ­naopak, ľahšie.

Interview: Winy Maas of MVRDV on Balancing Barn 

Plášť domu tvorí reflexný plechový obklad, v ktorom sa odzrkadľuje okolitá príroda a meniace sa ročné obdobia, a ktorý – podobne ako šikmé strechy – reflektuje miestnu ľudovú architektúru.

„Keď vstúpite do domu, vojdete rovno do kuchyne. Potom prejdete okolo intímnej zóny so spálňami, až prídete do obývacej izby. A tam uvidíte koberec vyrobený zo skla, cez ktorý môžete pozorovať mach, kvety, žaby, motýle,“ opisuje s nadšením Winy Maas. Práve vďaka oknu v podlahe, veľkému strešnému svetlíku a ďalším oknám v stenách smerujúcim do troch svetových strán môže človek prežívať prírodu intenzívnejšie. Pozorovať nebo aj zem zároveň. Ako dodáva architekt: „Za daždivých dní poskytujú podlaha, strop a kozub zážitok všetkých štyroch prírodných živlov.“

dom,svah,nízkoenergetický,koberec,tráva

Balansujúci vidiecky dom
Miesto:  Thorington, Suffolk, Anglicko
Investor:  Living Architecture
Architekt:  MVRDV
Spolupráca:  Mole Architects
Krajinný architekt:
Konštrukcia:  Jane Wernick associates
Interiér:  Studio Makkink & Bey
Projekt:  2007   
Realizácia:  2009 – 2010
Podlahová plocha:  210 m2

dom,interiér
dom,svah,nízkoenergetický,interiér,historickýInteriér ako galéria
Interiér je založený na dvoch hlavných princípoch. Dom je archetypom domova dvoch osôb, no je predĺžený v tvare aj objeme, preto sa tu pohodlne ubytuje až osem ľudí. Dvaja sa nebudú v dome cítiť stratení a skupina nebude mať pocit stiesnenosti.

Druhým zo základných princípov dizajnu je materiál a vybavenie. Neutrálne nadčasové drevo je základom návrhu premysleného interiéru, ktorého autormi sú architektka Rianne Makkink a dizajnér Jurgen Bey z holandského štúdia Makkink & Bey. Tí vytvorili súbor nábytku, ktorý odráža architektonický koncept domu ako tradičnú vidiecku stavbu.

Drevené steny dotvárajú štúdie mrakov anglického romantického maliara Johna Constabla a vidiecka krajina portrétistu a krajinára Thomasa Gainsborougha. Tieto dve diela suffolských rodákov však boli niekoľkokrát zväčšené, rozpixlované a rozdelené na niekoľko častí náhodným, počítačom generovaným procesom. „Klasické maľby sme postupne premenili na abstraktné farebné elementy, obrazy pripomínajúce moderné umenie,“ vysvetľuje Jurgen Bey.

Obrazy fungujú ako prvky spájajúce historické a súčasné Anglicko a aplikovali sa nielen na steny vo forme papierových a textilných tapiet, ale aj na koberce.

Jednoznačne holandský nábytok jednoduchých tvarov a striedmej elementárnej farebnosti dopĺňajú prvky typicky anglické. Príbory a riad, ktoré dizajnéri takisto vytvorili osobitne pre tento dom, sú reminiscenciou na klasický anglický porcelán, ale zahŕňajú aj rýdzo súčasnú kolekciu, vďaka ktorej si každý vyberie a nakombinuje vybavenie kuchyne podľa svojho vkusu.

Dom je nízkoenergetický, izolovaný v hrubej vrstve, vetranie a vykurovanie zabezpečuje rekuperačný systém, prihrievaný zemným tepelným čerpadlom. S prenájmom tejto balansujúcej stodoly sa začalo na konci minulého roka.

MVRDV

MVRDV

Kateřina Kotalová
Foto: Edmund Sumner

Autorka je šéfredaktorkou časopisu ASB – architektura, stavebnictví, byznys.

Článok bol uverejnený v časopise ASB.