Architektúra domu nad Zlínom koncipovaná ako celok
Stretla som ju pri inej realizácii. Tiež na vidieku, rovnako na skok z väčšieho mesta. Objavila sa ako spoluautorka jedného z tých neokázalých domov, ktorých čaro pochádza z pokojnej formy a prirodzeného dotyku s prírodou. Bola som veľmi zvedavá, aký súlad sa dosiahne, ak sa pod autorstvo architektúry a zariadenia domu nad Zlínom podpíšu dvaja Eichlerovci – on a ona.
Morava, Brno, Ostrava, Kopřivnice, Zlín… Architekti a ich originálne realizácie, príjemné rozhovory o tom, ako tu rastú domy, a povedomie o architektúre, ktorej sa darí tam, kde sa objavuje vôľa a chuť odovzdať umenie kultivovanej obývateľnosti už pri návrhu novodobého obydlia. Takéto čerstvo postavené domy si ich obyvatelia zväčša zariaďujú spolu s architektom, s vkusom, nadčasovo a ľudsky. Tak si spomínam na cesty za zaujímavými stavbami na „blízky západ“. Ani teraz nám nebolo proti vôli vycestovať za prísľubom prívetivého, a pritom na výsosť moderného architektonického štýlu.![]() |
![]() |
Neomylná geometria
Stretli sme sa všetky tri. Architektka, majiteľka, redaktorka. V dobrom rozmare pricestoval, samozrejme, aj fotograf. Zahorúca sme vysŕkali kávu v zlínskom útulnom Art Cafe hneď pri kostole, obe nám vychválili dobré knihy v susednom kníhkupectve, chlapci Eichlerovci rozpustili posledný hlt zmrzliny a pobrali sa s mamou k autu. Čas a poobedňajšie slnko súrili. Málokedy sa spoľahnem, ale pred týmto výjazdom mi neprišlo na um, aby domáci poslali náhľadové obrázky. Verila som, že to bude dobré a že ľudia od fachu a k tomu pre vlastných príbuzných ani v tomto prípade nenavrhnú niečo odťažité a, nebodaj, neobývateľné.
Viezli sme sa dvomi-tromi zákrutami južne nad mesto, kým sa auto prudko nestočilo do úzkej uličky pomedzi zástavbu nových rodinných domov. Obzerám si ich jeden po druhom. Nie je to zlé, ale čakám predsa len o čosi viac. Chcelo by to možno elegantnú fasádu, nápaditosť formy, na ktorej nechám oči alebo aspoň osvedčený prízemný architektonický „reazanec“, ktorým sa nič nepokazí. Trochu sa zahniezdim, na chvíľu zneistiem. Asfaltka sa vystrie, domčeky poodstúpia od cesty aj od plotov. Vynorí sa oblúk lesa a pred ním, po ľavej strane na miernom svahu, sa objaví pravidelná geometria troch štvorcov, ktoré rovnomerne zostupujú priečne svahovanou parcelou. Priečelie bielo orámovala jediná neprerušovaná línia, ktorá stúpa a klesá spolu s kubusmi stavby. Tie sa dôstojne prispôsobili terasovitému pozemku. Od hlavného trojpriečelia bližšie k zadnej časti domu a k lesu vyrástol na členitej plochej streche ešte jeden, menší kubus. Otvára sa zasklenými plochami na juh a východ, rozhliada sa po krajine zvlnenej Vizovickými vrchmi a ďalej na východ Bielymi Karpatmi. Úľava na duši. Čoby len úľava, veľké zadosťučinenie za malú, zbytočnú obavu! Privítala nás nádherná stavba na parcele, za ktorou sú už len stromy a lúky a nehrozí ďalšia výstavba… Tešíme sa s fotografom, ktorý tasí fotoaparát skôr, ako sa brána odsunie dokorán.
![]() |
![]() |
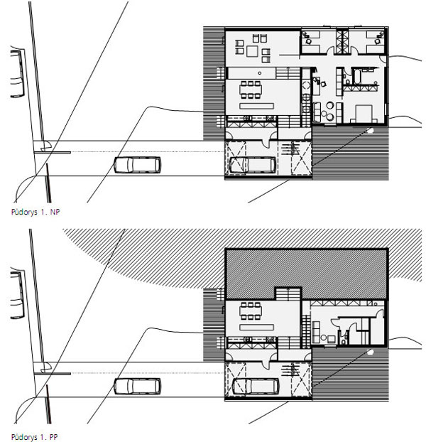
Priestorové fígle
Pohľadom prechádzam po trávnatom poraste. Po dvoch zastávkach pri minimalisticky rozvrhnutých kríkovitých porastoch sa zelený koberec celkom zastaví až pred dvojúrovňovou drevenou terasou. Medzitým už domáci prešli predsieňou a kuchyňou, aby napokon v obývačke odsunuli dvere a spojili už aj tak priestranné svetlé útroby domu so záhradou. Vďaka vnímavosti architektov sa preniesol tvar terénu aj do vnútorného priestoru domu. Päť schodov pred fasádou, päť schodov za fasádou. Rovnaký rytmus, podobnosť geometrických foriem a prírodných materiálov znásobuje pocit z voľnosti a ucelenosti vonkajšieho a vnútorného priestoru. Členitý pozemok, členité prízemie a výborná príležitosť na elegantné riešenie dispozície miestností bez použitia priečok. Vstup do domu a garáž sa ocitli v najnižšej časti pozemku, kuchyňa sa usadila na strednej úrovni a obývačka si vyárendovala najvyššie položenú terasu. Obývacia časť, na ktorú chodbou nadväzuje nočná zóna, nasáva denné svetlo nielen cez hlavné priečelie, ale vťahuje aj obrazy lesa za domom cez zasklenú zadnú stenu spojovacej chodby. Z nej vedú dvere do spálne rodičov, detských izieb, šatníkov a kúpeľní.
| Aké mali majitelia požiadavky a čo im v ateliéri navrhli „Chceli sme tradičný dom s podkrovím, saunu, malé okná, aby sme v nich mohli pestovať kvety, malé spálne, všetko malé, neokázalé… Nikdy sme predtým v dome nebývali, vlastnili sme byt v Zlíne. Nemohli sme s deťmi len tak vybehnúť do prírody. A keď áno, tak to bola procedúra chystania, obliekania a ešte nás znepokojovala blízkosť cesty. Túžili sme po dome s bezpečím vlastnej záhradky, v ktorej by sa deti mohli hrať. Do práce sme nechceli cestovať dlhšie ako desať minút. Aj prvé štúdie átriovej verzie domu, ktorá skončila v štádiu náčrtu akceptovali okolitú krajinu a výhľady. Až potom vznikli naše tri kocky, neskôr aj štvrtá menšia na poschodí. Našli sme zmysel v jednoduchých formách. Architekti pôvodne uvažovali o nadstavbe, a tak sa potešili, že jedného krásneho rozostavaného dňa sme na streche hlasovali za rozhľadňu. Architektom Eichlerovcom sa podarilo z malej zastavanej plochy doslova vytrieskať veľkú mierku s maximom priestoru a svetla. Okno nad schodiskom odľahčilo ťažisko domu a spolu s ním spojilo všetky priestory. Páči sa nám, že na priečelí sú zreteľné zasklenia až po strop a nad ich líniou sa v jemnom obryse ťahá subtílna atika.“ |
![]() |
![]() |
Levitácia priestoru
Ľahkosť sa sem vniesla veľkými zaskleniami, ktoré okrem južných obvodových stien odhmotňujú aj vnútorné priečky. Veľkorozmerné zasklenia striedajú na obvodových stenách francúzske okná, ktoré presvetľujú a opticky zväčšujú objem spální, detských izieb či spojovacích častí domu. Rovnako ako okná severnej a západnej fasády, aj všetky vonkajšie i vnútorné dvere sa dvíhajú od podlahy až celkom po strop. Dokonca aj kuchynská linka, ktorá je materiálovo a štýlovo zhodná so skrinkovým a policovým nábytkom v izbách, sa hlavou dotýka podhľadu. Keďže interiérové a exteriérové architektonické prvky sa vystreli, až pokiaľ im to len svetlá výška miestností dovolila, dom sa znútra i zvonku ukazuje o jedno-dve čísla väčší, ako ho v skutočnosti postavili.
Architektúru vnútorného priestoru nadľahčuje aj pohľad cez zasklenú priečku na drevené schodiskové stupne, konzolovite votknuté do nosnej steny. Možno nimi vystúpiť hore do „rozhľadne“, v ktorej postupne vzniká pracovňa, meditačný kútik, miesto nad iné miesta v dome, ktoré svojím výhľadom odľahčí myseľ a ktoré pôvodne domáci nemali v pláne: „Hrubá stavba bola hotová, vyšli sme na strechu a vtedy to v nás skrslo. Nemohli sme odtrhnúť oči od krajiny a nemohli sme ani nenadstaviť aspoň malú miestnosť s terasou.“
| Z čoho sa stavalo Na stavbu rodinného domu si vybrali a zachovali profil priečne svahovaného pozemku v tvare obdĺžnika s rozmermi 60 – 30 m. Základy sa prichystali v podobe železobetónových pásov, pričom základová škára terasovite klesá spolu s úrovňou terénu. Murovalo sa z keramických tvárnic Porotherm, stropné konštrukcie tvorí železobetónový monolitický systém. Dom je tvarovaný ako celok, jednotlivé kubusy nie sú dilatované. Súčasťou obvodového plášťa je kontaktný zatepľovací systém, miesta pod obkladom s drevenou dyhou zateplili minerálnou vlnou s odvetranou medzerou, zasklenia a hliníkové okenné rámy vyrobili na mieru, pri roletách nainštalovali osvetlenie, statici do detailov vyriešili „odskoky“ domu. Vnútorné priečky vymurovali z keramických tvárnic s vylepšenými zvukovoizolačnými vlastnosťami. Omietli ich štukovou omietkou. Tri kubusy, ktoré sú si veľmi blízke, kopírujú svažitý terén ako schody. Jednoduchá skladba hmôt prepojená spoločným vnútorným priestorom vytvára terasy, ktorým sú pričlenené jednotlivé funkcie v dome. |
![]() |
![]() |
Na poschodí, prízemí, ale aj v podzemnom podlaží so saunou vládne farebne umiernená atmosféra, nezahltená nábytkom, zdobená kresbou dreva a čistými líniami. Obrysy veľkorozmerných okien s tmavým rámovaním v kontraste s bielymi omietkami, skladba vonkajšieho dyhovaného obkladu, proporčne zakomponovaného do architektúry kubusov, pripomína zenový pokoj majstrovstva architektúry Ďalekého východu, ktorý akoby potvrdzoval štvorcový raster nábytku i fasády domu. „Navrhli sme výtvarne jednoduchý hranatý tvar, čistý výraz. Jednoduchú formu kubusov zmäkčuje drevo. Dom je osadený v prírode, na vidieku, takže drevené povrchy a prostý vzhľad domu majú svoje opodstatnenie v priamom vzťahu s prírodným prostredím.
O niekoľko rokov pohľad z dennej časti prízemia na plot, ktorý oddeľuje prístupovú cestu k pozemku od záhrady, zakryjú platany,“ vracia sa k začiatkom Eva Eichlerová, kým bosé prechádzame po tráve. Majiteľka zenového sídla pripomenie, že jedna z prvých štúdií ponúkala aj alternatívu átriového domu. Pred lesom a na okraji zástavby sa však nechceli uzatvoriť do dvora. Uprednostnili dom otvorený okoliu, s priehľadmi a svetlom, ktoré ho prestupuje skrz-naskrz alebo skôr skrz premyslene rozložené zasklenia na fasáde a vnútri domu. Napríklad aj kúpeľňa – zriekli sa v nej okna na úrovni pohybu ľudí a radšej nadvihli rovinu strechy ešte na jednom mieste, smerom od severnej atiky k stredu strešnej roviny, len aby presvetlili kúpeľňu rozptýleným denným svetlom, ale pritom tak, aby sa zachovalo súkromie.
„Susedia nás počas stavby chválili za pekné tri garáže a pýtali sa, že kedy už postavíme rodinný dom. Reči prestali, až keď sme dom omietli,“ smeje sa zo susedských žartov majiteľka. Má rada zvláštnu usporiadanosť fasády domu. Eva Eichlerová zas pripomenie: „Uprednostňujeme organickú prácu s geometrickými tvarmi, ktoré možno jednoducho postaviť. Viedla som stavebnú časť projektu a viem, že úspech závisí od súhry profesií. Doladenie projektu trvá vždy najdlhšie a my potrebujeme vedieť, aký bude návrh v detailoch.“
![]() |
![]() |
![]() |
![]() |
| Architekti o návrhu „Radi koncipujeme architektúru ako celok, rozmýšľame rovnako o záhrade, stavbe domu aj o interiéri. Ak má tvoriť ladný celok, vychádza z jednoduchého konceptu, ktorý sa postupne dotvára a vyvíja. Je však dobré ten jednoduchý princíp stále cítiť. Bez predsudkov či obmedzení sme sa snažili formulovať predstavu o dome v záhradnej krajine, o jednoduchých formách a prírodných materiáloch. Základným výtvarným konceptom je linka v teréne, čistá, biela, ktorá sa vyčleňuje v krajine. S okolitou prírodou záhradou potom harmonizujú ďalšie použité prírodné materiály, ako sú drevo, kameň a kov. Tak dom akoby vrastá do záhrady. Všetko, čo malo byť vyjadrené ako výtvarná forma domu, povedali biele steny. Zvyšok je o krajine, teda všetko ostatné je v prírodnom vyhotovení; drevo, kameň či betón, kov – tak znie odkaz brnianskych architektov. |
| Autori architektonického návrhu: EA architekti – Ing. arch. Zdeněk Eichler, Ing. arch. Eva Eichlerová, www.eichlerarchitekt.com, www.ea-architekti.cz Spolupráca – stavebná časť: Ing. arch. Dan Lukašík Spolupráca – interiér: Ing. arch Daniela Štefková Záhrada: Přírodní staby, zahradní architektura, www.zahradniarchitektura.cz Realizácia stavby: MADERA MORAVIA Zariadenie interiéru: L.E.V. |
![]() |
![]() |
TEXT: Marína Ungerová
FOTO: Dano Veselský
Článok bol uverejnený v časopise Môj dom.


























