Archa architekta Ferja
Súťažné návrhy rodinných domov a víl v minuloročnej súťaži Stavba roka ťahali za kratší koniec. Možno svojím objemom a preinvestovanými financiami nedočiahli na veľkých bratov v iných kategóriach, ale pozornému oku odbornej verejnosti neušlo niekoľko zaujímavých projektov. Za jedným z nich sme sa vybrali na východ našej krajiny.
Tehlovo červený koráb sa ťahá úzkou parcelou k ovocnému sadu. Na prízemí v útrobách priečne prestupujúcej časti domu sa usídlila jedáleň prepojená s kuchyňou. O poschodie vyššie si našla svoje miesto kapitánska pracovňa. Na rozhraní podlaží vyrástla knižnica, ku ktorej vedie galéria zabezpečená jednoduchým oceľovým zábradlím. Z nej sa otvára výhľad do obývačky na prízemí plnej denného svetla. Veľké zasklené plochy osadené v drevených rámoch tvoria tenkú hranicu medzi pokojnou atmosférou domu a voľnosťou krajiny.
![]() |
![]() |
|
| Rodinný dom vplával do mierneho svahu otočený čelom do záhrady. Odvážne sa ťahá úzkou parcelou až k sadu na jej konci. | Strohejšia fasáda prednej časti domu sa obracia k príchodzím tvarovo čistým riešením. |
Vnútorný priestor domu sa prirodzene mení v prelínaniach dňa a noci, vonkajšieho a vnútorného sveta. Premeny svetla a tieňa kreslia svoje obrazy na drevených prvkoch interiéru, hrajú sa s mäkkou farebnosťou, menia sa na povrchu kamenných obkladov. Napriek tomu, že dom nemožno jednoznačne zaradiť k funkcionalistickým stavbám, architekt vychádzal z ich princípov a nakoniec svoj návrh okorenil svojským výberom materiálov.
Niekoľko kovových prvkov či rytmus horizontálnych línií ešte nie sú dôkazom, že by malo ísť o typickú modernu, ktorá sa už stala bežnou súčasťou novej mestskej a neraz aj vidieckej zástavby. Naopak – tvar strechy nad čelom domu, omietky vystriedané štrukturovaným obkladom, zariadenie nepredpisovým nábytkom a uprednostnenie pocitov a predstáv členov rodiny pred výtvarnosťou interiéru ponechali domu domácku atmosféru.
Dominantou vnútorného členenia domu je otvorený priestor, ktorý vyrástol po výške celého objektu hneď za čelnou fasádou a dovolil tak vytvoriť veľkorysé prepojenie so záhradou. Spoločenský priestor, ktorý obsadil provu korábu, opticky nadväzuje na záhradnú terasu a v lete sa s ňou aj fyzicky prepojí.
![]() |
![]() |
Spálne a detská izba sa ocitli na hornom poschodí v dlhšej časti väčšieho kubusu. Pod nimi, na prízemí domu, je technické zázemie, šatníková miestnosť a garáž. Garážové dvere sa takto otvárajú na menej výpravnej fasáde domu, ktorú tiež prikryli atypickou strechou.
Fasáda udivuje miestnych svojou jednoduchosťou – veď celé veky sa domy obracali do ulíc svojou najozdobnejšou časťou a teraz si architekti zmysleli otáčať ich chrbtom k spoluobčanom. Nevídané, ale praktické. Túžba po súkromí a čo najjednoduchší prístup do domu pre ľudí i automobily vyhrali nad potrebou sebaprezentácie.
|
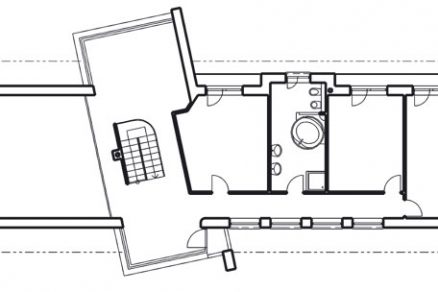
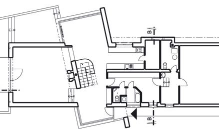
Orientácia a rozloženie hmoty domu
Dvojpodlažný nepodpivničený rodinný dom, riešený ako prienik dvoch kvádrov preložených a natočených cez seba, sa ocitol v zástavbe medzi inými rodinnými domami vo Vyšnej Šebastovej. Uhol natočenia je navrhnutý tak, aby stredová hmota objektu bola orientovaná v smere východ – západ. Dve hmoty domu oddelené zošikmeným múrom sa dostali pod rozdielne strechy: jedna má tvar šošovky, druhá patrí k plochým strechám. Zvislá nosná konštrukcia je z tehlál, vodorovná nosná konštrukcia medzi podlažiami je navrhnutá ako oceľobetónová platňa, konštrukcia krovu je zo zbíjaných priehradových väzníkov. Objekt je postavený v miernom svahu a výškovo sa delí na tri časti, dispozične sa delí na dennú a nočnú časť. Veľké zasklené plochy orientované od východnej až po západnú stenu domu využívajú slnečnú energiu na presvetlenie i dotemperovanie v prechodných obdobiach. |
![]() |
![]() |
|
| Pôdorys 1. podlažia |
Pôdorys 2. podlažia |
|
![]() |
![]() |
|
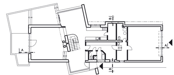
| Pohľad východný |
Pohľad západný |
|
![]() |
![]() |
|
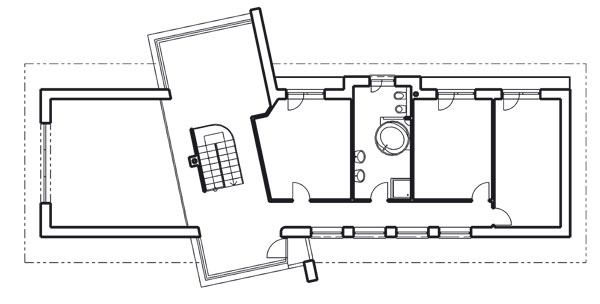
| Pohľad severný (od ulice) |
Pohľad južný |
Ako a z čoho postavil svoju archu architekt Marián Ferjo?
„Základovú konštrukciu domu uloženú do nezamŕzajúcej hĺbky približne 1 000 mm tvoria základové pásy so šírkou 500, 700 a 900 mm. Celý objekt sme postavili na troch výškových úrovniach. Hmota domu je osadená do svahu. Stúpanie terénu sme chceli zachovať, a tak sa jednotlivými úrovňami uskakovalo o 500 mm. Proti zemnej vlhkosti sme izolovali vodorovne asfaltovými pásmi a vo zvislom smere zas náterovou hmotou Shomburg – Aquafin 1K. Zvislé nosné konštrukcie vyrástli z tehál Porotherm 44 P+D; murovalo sa tepelnoizolačnou maltou. Na priečky sme použili tehly hrúbky 90 mm. Vodorovnú konštrukciu domu tvorí monoliticá železobetónová doska s hrúbkou 150 a 180 mm. Pod strešnými väzníkmi sme osadili železobetónový veniec a miesta rohových okien sme staticky zabezpečili železobetónovými prievlakmi.
Konštrukcia krovu vznikla vďaka zbíjaným dreveným priehradovým väzníkom v tvare šošovky na dĺžke 9,3 m. Krytinu so sklonom od 0 do 5 stupňov tvoria v tomto prípade lepené asfaltové pásy. Klampiarske výrobky som zvolil z medeného plechu a na výplne otvorov som objednal drevo meranti, do okenných a dverných rámov sme nainštalovali izolačné sklo. Na zateplenie obvodového múru bola potrebná minerálna vlna hrubá 50 mm, prirodzene pomohla aj dekoračná omietka. Sokel a šikmú stenu sme obložili umelým kameňom.
V interiéri na prvom podlaží sme položili podlahu zo žuly. V chladnejšom období príjemne hreje vďaka podlahovému vykurovaniu. Žulou je obložená aj podlaha kúpeľne na druhom podlaží a múr okolo schodiska, ktoré vedie otvoreným priestorom na galériu, k pracovni a spálňam na poschodí. Tu zasa podlahu tvoria dubové vlysky, morené vo farbe okien a dverí. Steny sú v celom dome omietnuté štukovou omietkou a stierkou. Na zateplenie atmosféry sme na poschodí s výnimkou kúpeľne nechali podhľad zhotoviť z tatranského profilu. V kúpeľni stačil sadrokartón. Konštrukcia schodiska je síce oceľová, ale stupne tvoria drevené dubové dosky; rovnaké drevo sa použilo na držadlá na zábradlí.
… a vaša inšpirácia?

Konečný návrh, ktorý je zhmotnený v súčasnej podobe domu, bol už v pôdoryse prienikom dvoch vzájomne sa pretínajúcich obdĺžnikov, z ktorých ten menší je otočený o 12 stupňov. V tomto prípade mi išlo najmä o dodržanie presnej orientácie sever – juh a východ – západ. V pohľadoch som kládol dôraz najmä na uličný pohľad obrátený na sever. Chcel som vytvoriť kompozíciu geometrických útvarov: štvorec, šošovka, obdĺžnik – ten je tiež mierne pootočený. Akcent na členenie objektu sa prejavil aj v materiáloch, ktoré sa použili na povrchové úpravy. Hmoty domu som odlíšil omietkou (štvorec), drevom (šošovka) a kameň (obdĺžnik).
Marína Ungerová
Foto: Daniel Veselský





















