Rezidencia Vinohrady
Menšiu polyfunkčnú budovu si investor a zároveň rezidenčný developer postavil najmä pre svoje vlastné potreby. Využil netradične tvarovaný pozemok uprostred obytnej štvrte, hneď v susedstve vlastných developovaných projektov.
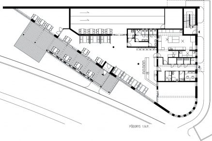
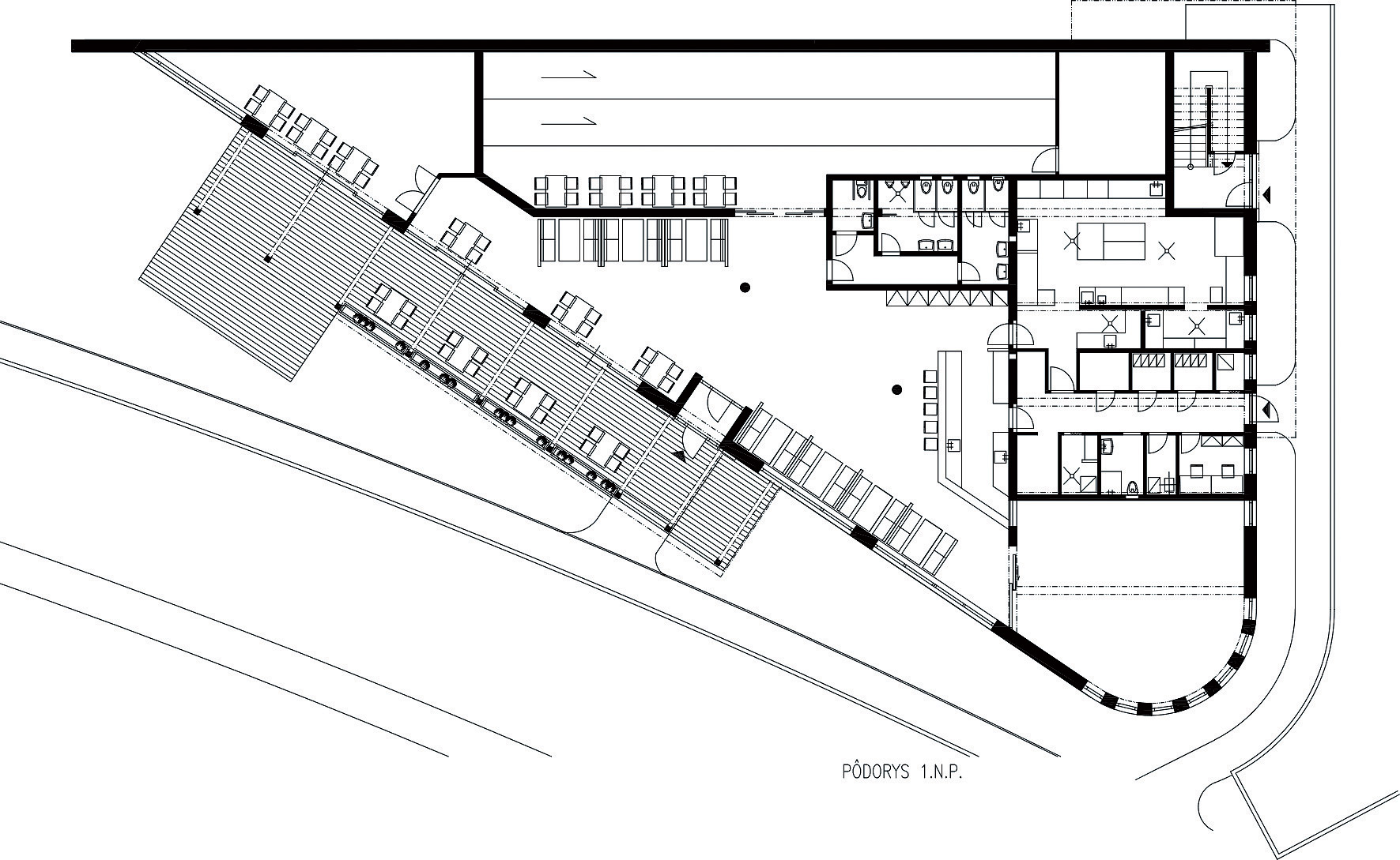
Mladý developerský tandem zo spoločnosti Rezidencia Vinohrady postupne sceľuje pozemky na okraji krajského mesta a buduje projekty, ktoré ponúkajú príjemné rodinné bývanie komunitného typu. Investičné plány má firma smelé, plánuje štvrť pre 1 500 obyvateľov, ale drží sa zároveň realisticky pri zemi, buduje postupne. Na parcele s nepravidelným tvarom, ktorá ostala bokom hneď vedľa novopostavených radových domov, sa majitelia rozhodli postaviť dvojpodlažnú polyfunkčnú budovu. Tvar pozemku a budúce priestory ovplyvnili aj konečný objem a architektonické riešenie budovy.
Nízke prevádzkové náklady
Dvojpodlažná stavba je na prvý pohľad výrazovo prostá. Až s poznaním vnútorného členenia je možné pochopiť aj časť akcentov a modelovanie fasád. Hoci investor umiestnil na poschodie svoje sídlo, zaberá len menšiu časť budovy. Skôr než na výraz kládol architekt dôraz na úsporné technické a technologické riešenia, a to všetko s ohľadom na obmedzené stavebné aj prevádzkové náklady.
Budova je postavená v A štandarde. 20 cm hrubá tepelná izolácia z polystyrénu zabezpečuje vhodnú klímu interiéru v zime aj v lete. Okná v celej kancelárskej časti sú otváravé a dostatočne veľké, aby sa do pracovných priestorov dostal dostatok čerstvého vzduchu aj prirodzeného svetla. O primeranú pohodu pri nadmernom oslnení sa postarali nastaviteľné exteriérové žalúzie, ktoré zároveň dodávajú fasáde charakteristický vzhľad. Prevádzkovej ekonomike budovy pomáhajú aj slnečné kolektory na streche, ktoré zabezpečujú dostatok teplej úžitkovej vody aj teplú vodu na kúrenie.
Jednoduché, ale efektívne stavebné riešenie si majitelia pochvaľujú, úspora nákladov na réžiu objektu predbehla ich očakávania. Časť priestorov na poschodí teda patrí investorskej firme, časť si prenajímajú projektanti či architekt, s ktorým spolupracujú na svojich projektoch, a zvyšok drobní živnostníci. Vstup do kancelárskej časti na podlaží je z bočnej strany budovy, je v podstate nenápadný, hoci je mierne akcentovaný fasádnym obkladom tehlovočervenej farby.
Funkčná a fungujúca reštaurácia
Dominantnou funkčnou náplňou objektu je reštaurácia na prízemí. Vyplnila dieru na trhu, do obytnej štvrte priniesla vítanú službu, ktorá je využívaná naplno. Cez pracovné dni na rýchle biznis obedy či firemné školenia, neskôr popoludní, večer a cez víkendy jej priestory zapĺňajú najmä obyvatelia novej štvrte či starousadlíci z okolitých ulíc. Interiér reštaurácie navrhla Edita Cimrová a podarilo sa jej do jedného fungujúceho a útulného celku skĺbiť vkus s požiadavkami rôznorodých hostí.
Podľa developera Tomáša Váleka víta novovznikajúca komunita rodín s malými deťmi veľkorysý detský kútik aj záhradu s detským ihriskom, ktorú od hluku aj prachu z hlavnej komunikácie oddeľuje gabionový plot. Pri plánovaní priestorov sa myslelo aj na dospelých, nielen na deti. Reštaurácia ponúka rôzne typy sedenia vonku na terase aj vo vnútri a príjemným bonusom sú bowlingové dráhy s kvalitným odhlučnením.
Architektúra akcentov
Exteriér okrem spomínaného pravidelne opakovaného rastra vonkajších žalúzií osviežuje kombinácia jednoduchej bielej fasádnej omietky s tehlovočervenými plochami vždy na protiľahlých koncoch budovy. Sekunduje jej rovnako sfarbený obklad, ktorý akcentuje vstupy, najmä ten reštauračný. Aby objekt nepôsobil príliš stroho, zmäkčil architekt objemové línie zaobleným nárožím.
Vždy je lepšie jedenkrát vidieť na vlastné oči, než si prehliadať objekt na fotografiách z rôznych uhlov pohľadu. Treba priznať, že keby architekt ubral na konzervatívnosti a pridal nejaké sympatické súčasné tvorivé gesto, dostala by sa stavba o úroveň vyššie. Nič by to však nezmenilo na fakte, že kvalitná stavebná realizácia s fungujúcimi funkciami priniesli do okrajovej mestskej štvrte vítané osvieženie.
Polyfunkčný objekt – Rezidencia Vinohrady
Miesto: Trenčín-Zlatovce
Investor: REVINVEST, s. r. o.
Hlavný inžinier projektu: Ing. arch. Juraj Krajčovič,
Interiér reštaurácie: Ing. Edita Cimrová
Ukončenie výstavby: 2015
Exteriérové a interiérové tienenie: K-system, spol. s r. o.
Trenčín
Text: Mária Nováková
Foto: Miro Pochyba
Dokumentácia: Rezidencia Vinohrady
Článok bol uverejnený v časopise ASB 08-09/2016.
















