rekonstrukcia penzionu v ziline
Galéria(10)

Rekonštrukcia penziónu v Žiline

Objekt sa nachádza na ulici J. M. Hurbana v Žiline. Ide o približne 70-ročnú stavbu, ktorá prešla niekoľkými prestavbami a úpravami. Pôvodný trojpodlažný a podpivničený dom bol v roku 1944 zbombardovaný a následne upravený na dom so sedlovou strechou a o podlažie znížený. Vzhľadom na pôvodný objem a tvar, sa autori Martin Bišťan, Juraj Záhorec a Gonzalo Elias Basurto z ružomberského ab atelieru po dohode s klientom rozhodli vrátiť stavbe pôvodnú podlažnosť.

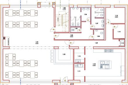
02 pza prizemie a4 100 big image
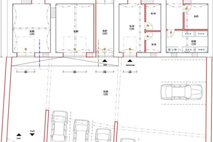
01 pza suteren a3 100 big image
f00 big image
f01 big image
f02 big image
f03b big image
f04b big image
f05b big image
Pred realizáciou bol objekt s veľavravným názvom HONEY BUNNY značne schátraný, krov, plechová strecha aj  inžinierske siete boli poškodené.

Riešený objekt sa nachádza na pravej strane ulice J. M. Hurbana v jej severnej časti. Ulica tu klesá smerom k centru. Objekt je situovaný na rohu súkromnej uličky, ktoré pokračuje do dvora a na súkromné parkovisko. Budova má značné predpolie s veľkou priestorovou rezervou a s možnosťou parkovania v suterénnych priestoroch. Zadná strana budovy je obrátená do veľkého dvora s piatimi lipami. Tento lukratívny priestor v tichej zóne odporúčajú architekti využiť ako letnú terasu reštaurácie, celú situovanú v zeleni. Prístup, zásobovanie a prevádzka penziónu vytvoria v tejto časti mesta atraktívny objekt s možnosťou bývania a stravovania na vysokej úrovni.

Na vytvorenej terase, ktorá prekrýva suterénny priestor, budú môcť parkovať návštevníci a zároveň tu vznikne aj terasa reštaurácie obrátená na ulicu. V suteréne navrhli architekti technické zázemie objektu, sklady kuchyne a parkovanie. Na 1. NP je situovaná reštaurácia s kapacitou 60 stoličiek s barom s recepciou penziónu, priestorom pre zamestnancov a s východom do zadnej záhradnej terasy pod drevenou pergolou s kapacitou 60 stoličiek. Na 2. NP sú navrhnuté štyri izby a dva apartmány a na 3. NP v podkroví dva luxusné apartmány. Lôžková kapacita penziónu je spolu 26 lôžok.

Architektúra rešpektuje pôvodnú sedlovú strechu. V nej je vytvorená štvorica vikierov na obe strany budovy. Celé podkrovie má drevenú konštrukciu a krov je zo systému KONTRAKTING. Vikiere sú obložené tmavosivým predzvetraným titánzinkom a strecha má strešnú krytinu zo systému CEMBRIT v tmavosivej farbe. Fasáda je sčasti omietnutá smotanovou omietkou a horizontálne obložená termodrevom. Celý objekt je zateplený systémom BAUMIT Profesional.

–>–>