rekonstrukcia kosickych kasarni na kulturpark
Galéria(5)

Rekonštrukcia košických kasární na KULTURPARK

Rekonštrukcia košických kasární a ich premena na Kulturpark, kultúrne centrum, je najväčším investičným zámerom projektu Košice – Európske hlavné mesto kultúry 2013. Ide o revitalizáciu rozsiahleho areálu, vytvorenie novej kreatívnej, vzdelávacej a oddychovej štvrte neďaleko historického centra mesta. Inštitúcia poskytne priestor na tvorbu a prezentáciu súčasnej kultúry a umenia v oblasti hudby, vizuálneho umenia, literatúry, filmu, divadla a tanca.

27 so 03 e3 2 aa 27  311011 pohchodn big image
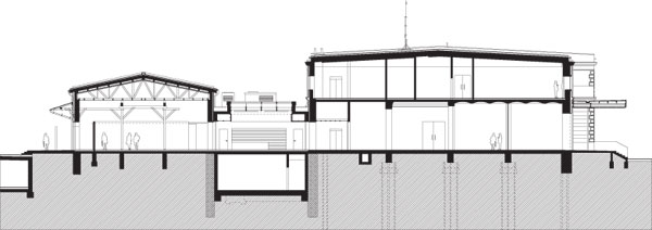
so01 e1 2 aa 13 01112011 rp ns rez a a m200 big image
celkova situacia 4 big image
rekonstrukcia kosickych kasarni na kulturpark 6293 big image
Urbanistické riešenie
Historický areál kasární pochádza z poslednej dekády 19. storočia. Povahu vojenského komplexu odráža aj spôsob označovania budov znakmi vojenskej abecedy, napr.: A – alfa, B – bravo, C – charlie, D – delta a podobne. Prvým a zásadným krokom je otvorenie komplexu smerom k mestu odstránením pôvodného múru po celom obvode areálu. Vytvorí sa verejná urbánna plocha ako priestor interakcie navrhovaného komplexu a okolitých mestských štruktúr.

Hlavný vstup návštevníkov dovnútra areálu bude vedený v severojužnom smere pozdĺž západnej hrany centrálnej budovy a kontroluje ho objekt informačného centra. Vstup zamestnancov, účinkujúcich a technická obsluha sa budú realizovať cez vstup kontrolovaný objektom bezpečnostnej služby na severovýchodnom okraji parku. Tento objekt okrem funkcie vertikálneho komunikačného jadra je súčasne ďalším infobodom pre návštevníkov Kulturparku.

Historický park vnútri areálu je priestorom s mimoriadnymi kvalitami a novovytvorená urbánna plocha je jeho doplnením. Figúry historických budov sú rozhraním medzi týmito dvoma verejnými priestormi. Hmotou na juhovýchodnom okraji autori dopĺňajú konfiguráciu bloku.

Celé územie bloku mapuje strategická mriežka ako odpoveď na striktnú, geometrickú povahu vojenského komplexu rakúsko-uhorského vojska. Je smernicou pre lokalizáciu novej vrstvy objektov, ktorá sa uplatňuje v oboch prostrediach, teda na urbánnej ploche, ako aj v parku. Základné rozmery mriežky sú 8,0 × 8,0 m, ďalej sa bude členiť na menšie celky až do rozmeru 4,0 × 4,0 m. Solitéry drobnej mierky vytvárajú jasne definovanú a odlíšiteľnú štruktúru rozvinutú v celom komplexe. Mriežka určuje lokalizáciu 3D objektov s konkrétnym architektonickým programom, rovnako ako 2D plochy pódií, platforiem pre rôzne udalosti a aktivity.

Objekty
Centrálnym objektom areálu je Alfa. Obsahuje sálové priestory na kultúrne podujatia s príslušným technickým zázemím. Dopĺňajú ich výstavné časti a menšie sály na záujmovo-umeleckú činnosť a tvorivé dielne.
Bravo, centrum podpory kultúry a kreativity, je lokalizované na juhozápadnom okraji areálu. Štyri nadzemné podlažia ponúknu plochy pre ateliéry, dielne, štúdiá a učebne. Súčasťou bude aj Dom autentickej kultúry zameraný na etnografický výskum a školu ľudového tanca.

Objekt Charlie, galéria, je situovaný na severozápadnom okraji areálu. Výstavné plochy na prvom až treťom nadzemnom podlaží sú vzájomne prepojené prostredníctvom otvorov v stropných doskách a poskytnú celkovú výmeru 900 m2. Štvrté nadzemné podlažie predstavuje samostatný výstavný celok s výmerou 410 m2. Bývalú vodáreň so studňou, ktorá bola v havarijnom stave, nahradí Papa, pavilón služieb. Vďaka strategickej polohe v centre parku poslúži ako miesto stretnutí ľudí pôsobiacich v jednotlivých budovách komplexu, rovnako ako návštevníkov parku. Ďalšie pavilóny November, Echo, Lima, Foxtrot vytvoria zázemie pre umelcov s dennými miestnosťami s hygienickým zázemím či tvorivú dielňu vo väzbe na objekt Bravo.

Rekonštrukcia bývalých kasární – KULTURPARK, Košice
Miesto: Košice, Kukučínova ul. 
Investor: Mesto Košice
Hlavný inžinier projektu: Ing. arch. Irakli ERISTAVI, autorizovaný architekt
Autori: zerozero, Ing. arch. Irakli Eristavi, Ing. arch. Silvia Šillová, Ing. arch. Pavol Šilla, Ing. arch. Milan Vlček
Celková plocha riešeného územia: 36 853 m2
Zastavaná plocha podzemnej garáže: 3 340 m2
Celková úžitková plocha: 15 352 m2
Úžitková plocha – rekonštruované objekty: 11 287,79 m2
Úžitková plocha – novostavby: 4 456,63 m2
Úžitková plocha spolu: 15 744,42 m2
Začiatok výstavby:  jún 2012
Ukončenie výstavby: 2013


Pohľad východný, budova Bravo

Architektonické riešenie
Vstup novej funkcie, programov, aktivít, vstup nových ľudí do pôvodne uzavretého areálu autori navrhujú riešiť účelne a civilne s rešpektom k pôvodným objektom aj stromom v parku. Pôvodné budovy sú hlavnými figúrami na šachovnici, nová štruktúra – plejáda „figúr s nižším kalibrom“ – obsadzuje nové pozície. Vrstva nových objektov ponecháva priestor na ďalšie vstupy v podobe, ktorú prinesie budúcnosť.

Pavilóny sú novou architektonickou komplementárnou vrstvou a ide o jednopodlažné objekty ako orientačné body. Ich architektonické stvárnenie je lapidárne, transparentné plochy ich fasád zviditeľňujú procesy v interiéri, reflexné plochy z vysokolešteného antikora odzrkadľujú okolie.

Pod urbánnou plochou bude situované podzemné parkovisko ako nevyhnutná infraštruktúra potrebná na prevádzkovanie celého komplexu. Celý projekt má silný environmentálny rozmer, najmä z hľadiska využitia alternatívnych zdrojov energie a minimalizovania prevádzkových nákladov, čo by malo prispieť k trvalej udržateľnosti nového kultúrno-spoločenského komplexu.


Rez objektom Alfa


Situácia
1 – Alfa – centrálna budova, 2 – Bravo – centrum podpory kultúry a kreativity, 3 – Charlie – mestské výstavné priestory, 4 – Delta – infocentrum, 5, 6, 7 – Echo, Foxtrot, Oscar – workshopové pavilóny, 8 – Lima – zázemie umelcov, 9 – Kilo – podzemné parkovisko, 10 – November – pavilón knihy, 11 – Papa – spoločenský pavilón, 12 – Uniform – pavilón bezpečnostnej služby, 13 – X-ray – technické zázemie, 14 – Yankee – informačná pergola, 15 – Zulu – navigačný bod

Mária Nováková
Dokumentácia a vizualizácie: zero zero

Článok bol uverejnený v časopise ASB.